Architekti.sk - Pinus restaurant

Reštaurácia na úpatí Nízkých Tatier, v rodinnom rezorte budovaného výlučne z dreva, mala byť postavená vo veľmi krátkom čase. Uskutočniť túto požiadavku bolomožné vďaka modulárnym prvkom, ktoré boli vyrobené v hale a zložené na mieste ako stavebnica. Jedná sa o pilotný projekt väčšieho rozsahu, kde bol použitý modulárny systém buniek, na vývoji ktorých pracujeme niekoľko rokov.
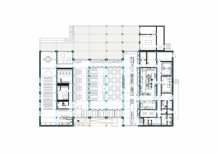
Objekt je jednopodlažný, v centrálnej časti je zvýšený svetlíkom. Ten slúži na lepšie presvetlenie a komfortnejšie odvetranie priestorov. Nachádza sa tu aj salónik s denným barom a veľký detský kútik. Srdcom priestoru v zime je panoramatický krb, ktorého miesto v lete preberá rozľahlá terasa plávajúca nad jazierkom.
- Autoři: Matúš Polák, Martin Rezník, Juraj Makový
- Spolupráce: Tomáš Justinič
- Země: Slovensko
- Město: Liptovský Mikuláš
- Ulice, číslo: Demänovská cesta 584
- Datum projektu: 2019
- Realizace: 2019
- Užitná plocha: 708.97m2
- Zastavěná plocha: 986.14m2
- Plocha pozemku: 3 610.70m2
Související architekti
Mohlo by vás zajímat

1/41

Pinus restaurant, Matúš Polák, Martin Rezník, Juraj Makový
Foto: Tomáš Manina
2/41

Pinus restaurant, Matúš Polák, Martin Rezník, Juraj Makový
Foto: Tomáš Manina
3/41

Pinus restaurant, Matúš Polák, Martin Rezník, Juraj Makový
Foto: Tomáš Manina
4/41

Pinus restaurant, Matúš Polák, Martin Rezník, Juraj Makový - objekt recepce
Foto: Tomáš Manina
5/41

Pinus restaurant, Matúš Polák, Martin Rezník, Juraj Makový - objekt recepce
Foto: Tomáš Manina
6/41

Pinus restaurant, Matúš Polák, Martin Rezník, Juraj Makový
Foto: Tomáš Manina
7/41

Pinus restaurant, Matúš Polák, Martin Rezník, Juraj Makový
Foto: Tomáš Manina
8/41

Pinus restaurant, Matúš Polák, Martin Rezník, Juraj Makový
Foto: Tomáš Manina
9/41

Pinus restaurant, Matúš Polák, Martin Rezník, Juraj Makový
Foto: Tomáš Manina
10/41

Pinus restaurant, Matúš Polák, Martin Rezník, Juraj Makový
Foto: Tomáš Manina
11/41

Pinus restaurant, Matúš Polák, Martin Rezník, Juraj Makový
Foto: Tomáš Manina
12/41

Pinus restaurant, Matúš Polák, Martin Rezník, Juraj Makový
Foto: Tomáš Manina
13/41

Pinus restaurant, Matúš Polák, Martin Rezník, Juraj Makový
Foto: Tomáš Manina
14/41

Pinus restaurant, Matúš Polák, Martin Rezník, Juraj Makový
Foto: Tomáš Manina
15/41

Pinus restaurant, Matúš Polák, Martin Rezník, Juraj Makový
Foto: Tomáš Manina
16/41

Pinus restaurant, Matúš Polák, Martin Rezník, Juraj Makový
Foto: Tomáš Manina
17/41

Pinus restaurant, Matúš Polák, Martin Rezník, Juraj Makový
Foto: Tomáš Manina
18/41

Pinus restaurant, Matúš Polák, Martin Rezník, Juraj Makový
Foto: Tomáš Manina
19/41

Pinus restaurant, Matúš Polák, Martin Rezník, Juraj Makový
Foto: Tomáš Manina
20/41

Pinus restaurant, Matúš Polák, Martin Rezník, Juraj Makový
Foto: Tomáš Manina
21/41

Pinus restaurant, Matúš Polák, Martin Rezník, Juraj Makový
Foto: Tomáš Manina
22/41

Pinus restaurant, Matúš Polák, Martin Rezník, Juraj Makový - objekt recepce
Foto: Tomáš Manina
23/41

Pinus restaurant, Matúš Polák, Martin Rezník, Juraj Makový - objekt recepce
Foto: Tomáš Manina
24/41

Pinus restaurant, Matúš Polák, Martin Rezník, Juraj Makový
Foto: Tomáš Manina
25/41

Pinus restaurant, Matúš Polák, Martin Rezník, Juraj Makový
Foto: Tomáš Manina
26/41

Pinus restaurant, Matúš Polák, Martin Rezník, Juraj Makový
Foto: Tomáš Manina
27/41

Pinus restaurant, Matúš Polák, Martin Rezník, Juraj Makový
Foto: Tomáš Manina
28/41

Pinus restaurant, Matúš Polák, Martin Rezník, Juraj Makový
Foto: Tomáš Manina
29/41

Pinus restaurant, Matúš Polák, Martin Rezník, Juraj Makový
Foto: Tomáš Manina
30/41

Pinus restaurant, Matúš Polák, Martin Rezník, Juraj Makový
Foto: Tomáš Manina
31/41

Pinus restaurant, situace, Matúš Polák, Martin Rezník, Juraj Makový
32/41

Pinus restaurant, půdorys, Matúš Polák, Martin Rezník, Juraj Makový
33/41

Pinus restaurant, pohled a řez, Matúš Polák, Martin Rezník, Juraj Makový
34/41

Pinus restaurant, pohledy, Matúš Polák, Martin Rezník, Juraj Makový
35/41

Pinus restaurant, pohled a řezy, Matúš Polák, Martin Rezník, Juraj Makový
36/41

Pinus restaurant, schéma, Matúš Polák, Martin Rezník, Juraj Makový
37/41

Pinus restaurant, schéma, Matúš Polák, Martin Rezník, Juraj Makový
38/41

Pinus restaurant, schéma, Matúš Polák, Martin Rezník, Juraj Makový
39/41

Pinus restaurant, schéma, Matúš Polák, Martin Rezník, Juraj Makový
40/41

Pinus restaurant, schéma, Matúš Polák, Martin Rezník, Juraj Makový
41/41