ATELIER 38 - BD Krásnopolská

Bytové domy se nachází na hranici dvou socioekotonů. Na výrazné terénní depresi mezi zástavbou rodinnými domy na ulici Krásnopolské a technologickým parkem přiléhajícím k areálu VŠB. Bytové domy, myslíme, jsou fajnym přechodovým prvkem. ÚPD nepracuje s pojmem ekoton, zná jen ostré hranice. A tak se v očích dotčených závazných a aktivních "povolovačů" stáváme nechtěnými, trpěnými a jen podmíněně přípustnými v ploše rodinné zástavby. Držíme maximální podlažnost a sklony střech podkroví, na centimetr vzájemné odstupy, na decimetr čtvereční maximální zastavěnou plochu jedním objektem a na metry čtvereční celkovou zastavěnou plochu...
Příjezd na pozemek je z ulice Krásnopolské z východní strany bytových domů, kde jsou umístěna parkovací místa, některá krytá pod bytovými domy. Vstupy do objektů jsou ze severní strany, před každým vstupem je vysazený strom, snad se objeví i lavička. Bytové domy tvoří přechod mezi veřejným prostorem na východní straně a o patro níže umístěným komunitním prostorem na západní straně. Komunitní prostor se ponechává k dobudování, ke ztvárnění obyvateli. Byty s přímou vazbou na terén mají předzahrádky.
Domy se skládají ze dvou třípodlažních hmot s pultovou střechou propojených vertikálním komunikačním jádrem. Jsou orientovány kolmo k vrstevnici, hmoty jsou navzájem výškově posunuty o patro. Toto hmotové řešení se měřítkem přizpůsobuje rodinné zástavbě, zároveň se v dálkových perspektivních pohledech hmoty do sebe zamykají a doplňují tak hmoty objektů technoparku.
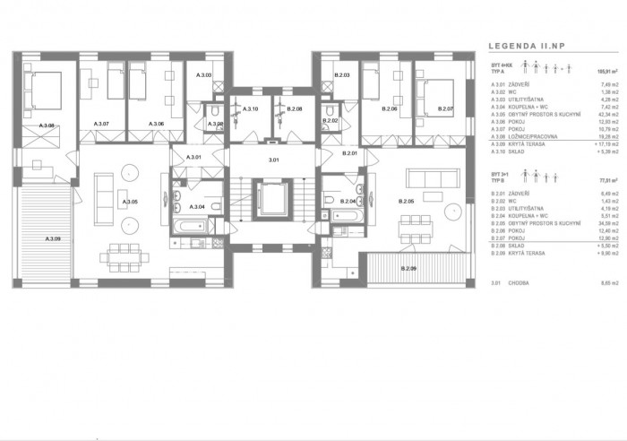
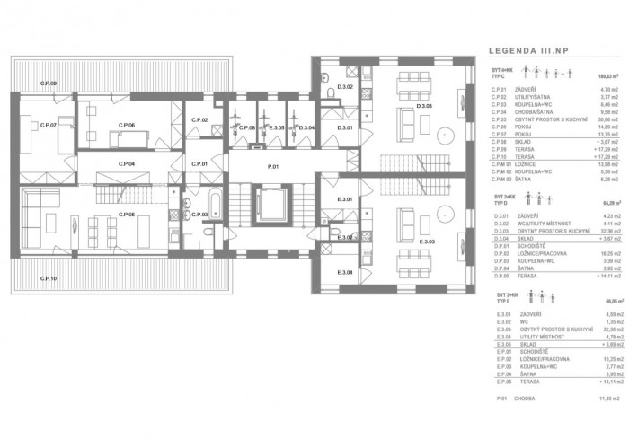
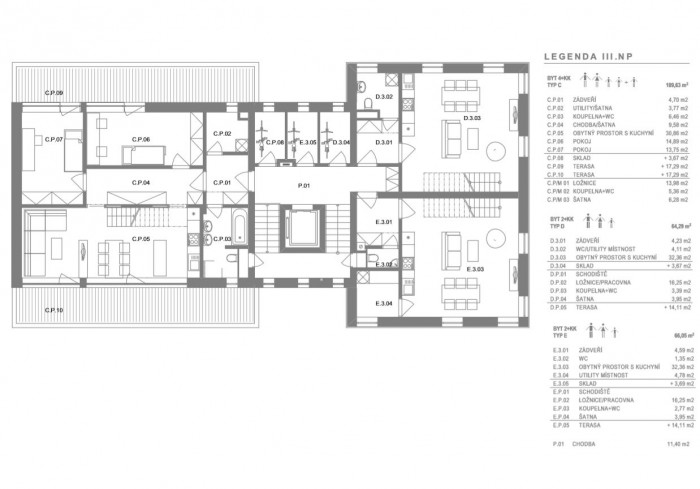
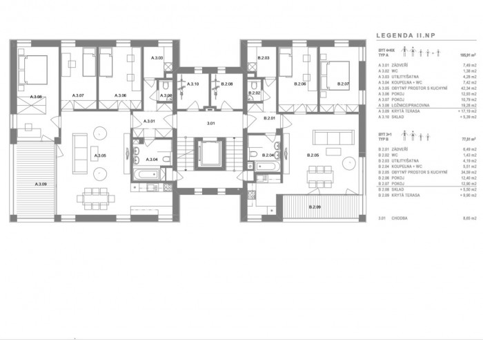
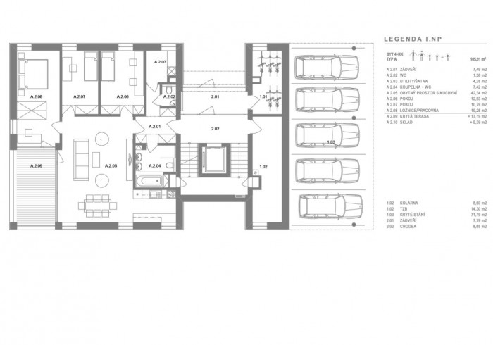
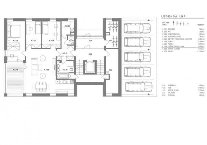
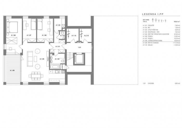
V každém domě je sedm bytů, každý s terasou s dálkovými výhledy. Skladebnost bytů je 2 x 2+kk, 1 x 3+kk a 4 x 4+kk, byty jsou jednoúrovňové, v podkroví mezonetové.
Domy jsou založeny na vrtaných pilotech a základových roštech. Svislá nosná konstrukce kombinuje sloupový železobetonový systém s vyzdívaným keramickým stěnovým. Konstrukce s nosným sloupem uprostřed dispozice umožňuje variabilu bytů, téměř každý byt doznal dispozičních změn dle individuálních potřeb majitelů. Konstrukce podkroví je dřevostavbou. Stropy jsou železobetonové monolitické. Okna jsou plastová s vnějším stíněním žaluziemi a skleněným zábradlím. Zábradlí teras je ocelové pozinkované.
Vytápění bytů je teplovodní podlahové, zdrojem je centrální plynový kotel umístěný v kotelně, který slouží i na centrální přípravu TUV.
Mohlo by vás zajímat
























