Atelier ADR - Restaurace Baroque U Tří růží
Atelier ADR se již dlouhodobě podílí na postupné revitalizaci areálu broumovského kláštera a snaží se citlivým přístupem navázat na mistrné dílo jeho stavitelů, mezi které se řadí i barokní mistři Kryštof Dietzenhofer a jeho syn Kilián Ignác. Po rozsáhlých úpravách klášterních zahrad, zahrnujících stavbu multifunkčního kulturního objektu Dřevník, přes realizaci kavárny Dietzenhofer, přišla další výzva na revitalizaci Růžového dvora, návrh nového Návštěvnického centra a především návrh restaurace U Tří růží do jižního křídla barokního komplexu.



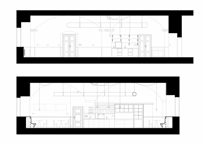
Samotnému interiéru výrazně dominují ladné křivky původních klenutých konstrukcí. Koncept složení materiálu pro interiér se odvíjel od možnosti repasování původní prkenné podlahy a jejímu dalšímu využití například pro obklad barových pultů. Dalším výrazným prvkem je odhalení původních vrstev výmaleb, které tvoří po obvodových stěnách restaurace přirozenou patinu. Mezi restaurací a kuchyní je pomocí tradičního strukturovaného zasklení s tabulkovým členěním možnost lehce nahlédnout do útrob kuchyně. Interiér dále lokálně doplňují repasované prvky jako například původní kamna, kamenná ostění, kompozice různých malých okének a dvířek tam, kde by je nikdo nečekal. Na chodbách je položena teracová dlažba české výroby ve výrazném šachovnicovém vzoru. Hygienické boxy jsou do klenutých prostor vloženy formou nízkých vestaveb, aby původní klenby zůstaly vzdušné a čitelné. Výrazným prvkem v interiéru je zachování původních špaletových oken a kazetových dveří s masivní obložkovou zárubní. Historicky cenné prvky jsou repasované a ostatní vyrobeny nově jako repliky. Osvětlení a další nezbytné pohledové prvky technického vybavení bylo navrženo tak, aby do prostoru vizuálně vstupovalo co nejméně výrazně. Interiér dále střídmě doplňují prvky z mosazi. Obložení stěn a sedací nábytek je volený v nenápadné světle šedé barvě doplněný dřevěnými dubovými stoly. Kontakt se dřevem a vychutnání pohledu do vzdušných střídmě zařízených klenutých prostor, může zprostředkovat návštěvníkům příjemný zážitek při vychutnání tradiční místní kuchyně.





- Země: Česká republika
- Město: Broumov
- Ulice, číslo: Růžová 2
- PSČ: 55001
- Datum projektu: 2016
- Realizace: 2018
- Užitná plocha: 542.00m2
- Klient: Agentura pro rozvoj Broumovska a.s., Baroque - place with taste s.r.o
- Spolupráce: Konzultant, zpracovatel projektové dokumentace: AED project a.s.
Mohlo by vás zajímat