Atelier RAW - Polyfunkční objekt DORN

Polyfunkční dům Dorn se nachází v jižní části městského centra v těsné blízkosti brněnského hlavního nádraží a nákupní galerie Vaňkovka.
Základní architektonickou kompoziční myšlenkou bylo vytvořit dynamický štíhlý objekt, v kolmé poloze na brněnský „ring“, s fasádou a detailním zpracováním komunikující s kontextem stávající industriální architektury 19. století - Vaňkovy slévárny. Administrativní část je vystavěna na půdoryse dvou k sobě přiléhajících, středově souměrných, pravoúhlých lichoběžníků. Podélně je orientována k centru města a konzolovitým vyložením nad nárožím s hlavním vstupem vytváří dynamický prvek celé kompozice, umocněný nízkými pásy oken v kosoúhlých částech.
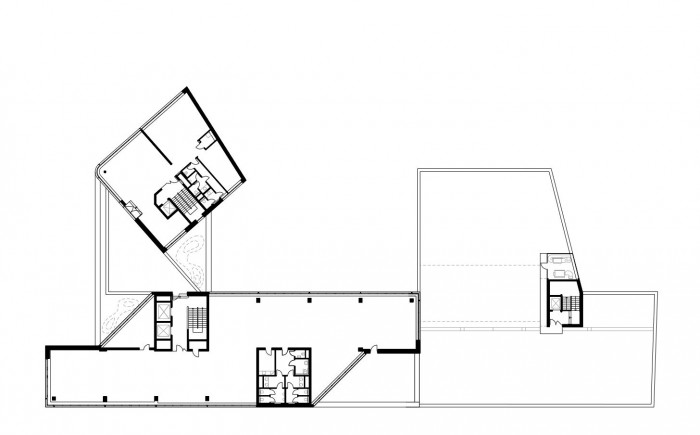
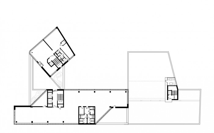
Stavba je rozdělena do dvou stavebních objektů. Administrativní budova s obchodními jednotkami v 1. np, parkováním a technologickým zázemím v 1. pp přiléhá k parkovacímu objektu. Hlavní vstup do administrativy se nachází na nároží při ulici Plotní. Druhý vstup ke komunikačnímu jádru pětipodlažní části se nalézá na ulici Dornych. Pět obchodních jednotek je umístěno v parteru budovy a jsou přístupné přímo z chodníku. Vjezd do podzemních garáží je umístěn z ulice Dornych po obousměrné rampě. V budově jsou dvě komunikační jádra se schodištěm a výtahy.
V dvanáctipodlažní části je počítáno se dvěma výtahy, v pětipodlažní s jedním. Na jádra ve společné třípodlažní podnoži a pětipodlažní části navazují vnitřní chodby, kolem kterých jsou umístěny kancelářské prostory, hygienické zázemí a technické místnosti. Devět nejvyšších podlaží nárožní věže je navrženo jako open-space kanceláře, s možností dělení příčkami dle přání nájemníka.V podzemním podlaží je umístěno 23 parkovacích míst. Parkovací objekt je navržený systémem D'Humyho ramp. Na čtyřech párech nadzemních půlpodlaží a jedné dvojici podzemních půlpodlaží je k dispozici celkem 130 parkovacích míst.
Fasáda celého objektu je z lícových cihel s jemnými valéry v intenzitě vypálení. U parteru byl kladen důraz na kvalitní řemeslné zpracování detailů nerezových leštěných zasklívacích rámů a ocelových výkladců. Kompozici výkladců doplňují pásová okna vyšších podlaží a podélné větrací otvory parkovacího domu. Okna administrativní části jsou řešena jako dvojitá s třetím zasklením, za nímž jsou umístěny stínící žaluzie. V interiéru objektu je použit světlý travertinový obklad, který se uplatňuje především na schodištích a ve vstupních halách. Před objektem na nároží je navržen široký pás chodníku s kruhovou zatravněnou plochou. Součástí prostranství je i nová litinová kašna, upomínající na jména významných průmyslníků 19. století - zakladatelů průmyslové slávy města Brna.
- Autoři: Tomáš Rusín, Ivan Wahla
- Ateliér: Atelier RAW
- Spolupráce: Bořivoj Čapák, Lukáš Vágner
- Země: Česká republika
- Město: Brno
- Ulice, číslo: Dornych - Plotní
- PSČ: 60200
- Datum projektu: 2008
- Realizace: 2016
- Užitná plocha: 6 652.00m2
Související projekty
Související architekti
Související ateliéry a firmy
Mohlo by vás zajímat





























