Atelier Štěpán - Kostel bl. Restituty Brno - Lesná

Místo, na kterém má kostel stát, je pro občanskou stavbu plánováno již od samotného vzniku tohoto urbanisticky kvalitního sídliště. Přesně na toto místo pro kostel poukázali autoři sídliště František Zounek a Viktor Rudiš.  Poprvé se o jeho stavbě uvažovalo v roce 1967, ale dodnes tady kostel chybí. Zajímavé je, že jsem na návrhu začal pracovat jíž v roce 1991 v rámci svého diplomního projektu. 

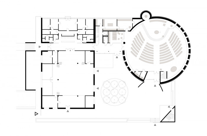
Kostel zde nemůže konkurovat okolním stavbám bytových domů svou velikostí. Proto je stavba kostela výrazově jednoduchá a čitelná. Zvolená minimalistická forma je však dostatečně silná  i ve svém nevelkém objemu a vytváří dominantu jiné úrovně.  Architektonická kompozice se skládá ze  tří základních hmot – kostela, věže a stávajícího Duchovního centra P. Martina Středy. Ty  stojí na mírně vyvýšeném pochozím platu s hájem, které slouží jako nástupní prostor. 

Foto: EARCH

Tvar kruhu pro kostel je zvolen i z dalších důvodů, kruh je tvarem plnosti,  je tečkou v prostoru  sídliště, je jeho duchovním úběžníkem, jako místo zastavení, spočinutí či usebrání. Kruh je zároveň blízký současné liturgii v kostele, která je obrazem společenství apoštolů s Ježíšem  kolem stolu při Poslední večeři. Svou formou tak předjímá vnitřní ztišení člověka, který do něj vstupuje. 

Interiér kostela je  jednoduchý, soustředěný a usebraný. Měkké a strohé křivky stavby vytvářejí odhmotněný vnitřní prostor tvarovaný světlem z horního kruhového okna. Cílem je nepřímé měkké denní osvětlení z jediného velikého okna, při němž nedochází ani k přesvětlení prostoru, ani netvoří kontrastní stíny.  Na tomto 80 metrů dlouhém okně je ztvárněna duha jako symbol smlouvy Božíhu lidu s Hospodinem. Kruhovou duhu je možné opravdu vidět při pohledu shora z letadla letícího ve velké výšce. Světlo se zde stává prvkem, který naznačuje, že je něco za hranicí hmotné skutečnosti, našimi smysly hůře vnímatelné. 

duhaFoto: EARCH

Odděleně stojící trojúhelná věž je dominantou, k níž směřují pohledy z blízkého okolí, byť i ta se svými 31 metry není vyšší než přiléhající panelový dům. V kubické lucerně věže je umístěna zvonohra. Na vrcholu věže bude také vyhlídka na město přístupná širší veřejnosti. 

Stávající duchovní centrum autora Zdeňka Bureše bude po výstavbě sloužit ke společenským účelům. Bude zde víceúčelový sál, knihovna, učebny a zázemí. Bude zde možné uspořádat výstavu nebo koncert, hrát divadlo nebo třeba ping-pong.  Obdobně fungují například středisko při kostele v Brně - Žabovřeskách nebo Ostravě - Zábřehu. 

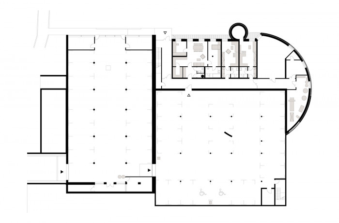
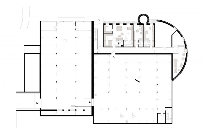
V suterénu pod kostelem, platem i stávajícím centrem bude prostor pro parkování aut. V novém podzemním parkovišti bude 22 nových stání, celkově v prostorách podzemního parkoviště bude 38 parkovacích stání pro osobní automobily. Příjezd ke kostelu včetně sjezdu je stávající z ulice Nezvalovy. Provoz automobilů se předpokládá obdobný současnému, protože již nyní zde mše probíhají v duchovním centru. Přístup na plato je možný ze dvou míst – směrem od parkoviště bezbariérově a přímo v ose nástupu do kostela schodištěm. Stavba bude vhodně doplněna výsadbou zeleně.

kostelFoto: EARCH

Materiál stavby navazuje na materiály používané na sídlišti. Stavba bude provedena z betonu v kombinaci s výraznými barvami a barevným prosklením.  Kostel by měl být na přání farníků ohleduplný k životnímu prostředí a spotřebovávat minimum energie. Proto bude pro jeho vytápění použito tepelné čerpadlo země-vzduch a uvažuje se se slunečními kolektory na střeše. Suterénní spodní stavba je založena na pilotech a provedena jako bílá  betonová vana, prostor pro parkování je proveden jako skelet,  v místě pod kostelem přenášející kruhovou geometrii horní stavby kostela.  Strop nad garážemi je pojízdný. 

Kruhový objekt kostela má svislou nosnou konstrukci z železobetonu s vnitřní akustickou přizdívkou a vnějším zateplením. Konstrukce kůrů jsou betonové s obráceným průvlakem v zábradlí. Střecha kostela je asymetrická betonová kupole. Krytina je fóliová, při okraji přitížená kačírkem. Okna jsou s hliníkovými, místy skrytými rámy. Věž má nosnou konstrukci z pohledového betonu, je nezateplená.

V architektonické konkurenci se postupně v průběhu let sešlo na Lesné celkem 36 návrhů kostela. Konečným rozhodnutím Biskupství brněnského s doporučením mezinárodní komise byl vybrán návrh moravského architekta  Marka Jana Štěpána. Jeho návrh vybrán podruhé, poprvé to bylo při soutěži v roce 1991. O návrhu se pozitivně vyjádřil i autor sídliště Brno – Lesná architekt Viktor Rudiš. Nyní probíhá stavba kostela, která je financována výhradně ze sbírek.

lesnaFoto: EARCH

Generální partner
Hlavní partneři