Atelier38 - RD Hrabyně II.

Na palubě, v podpalubí.
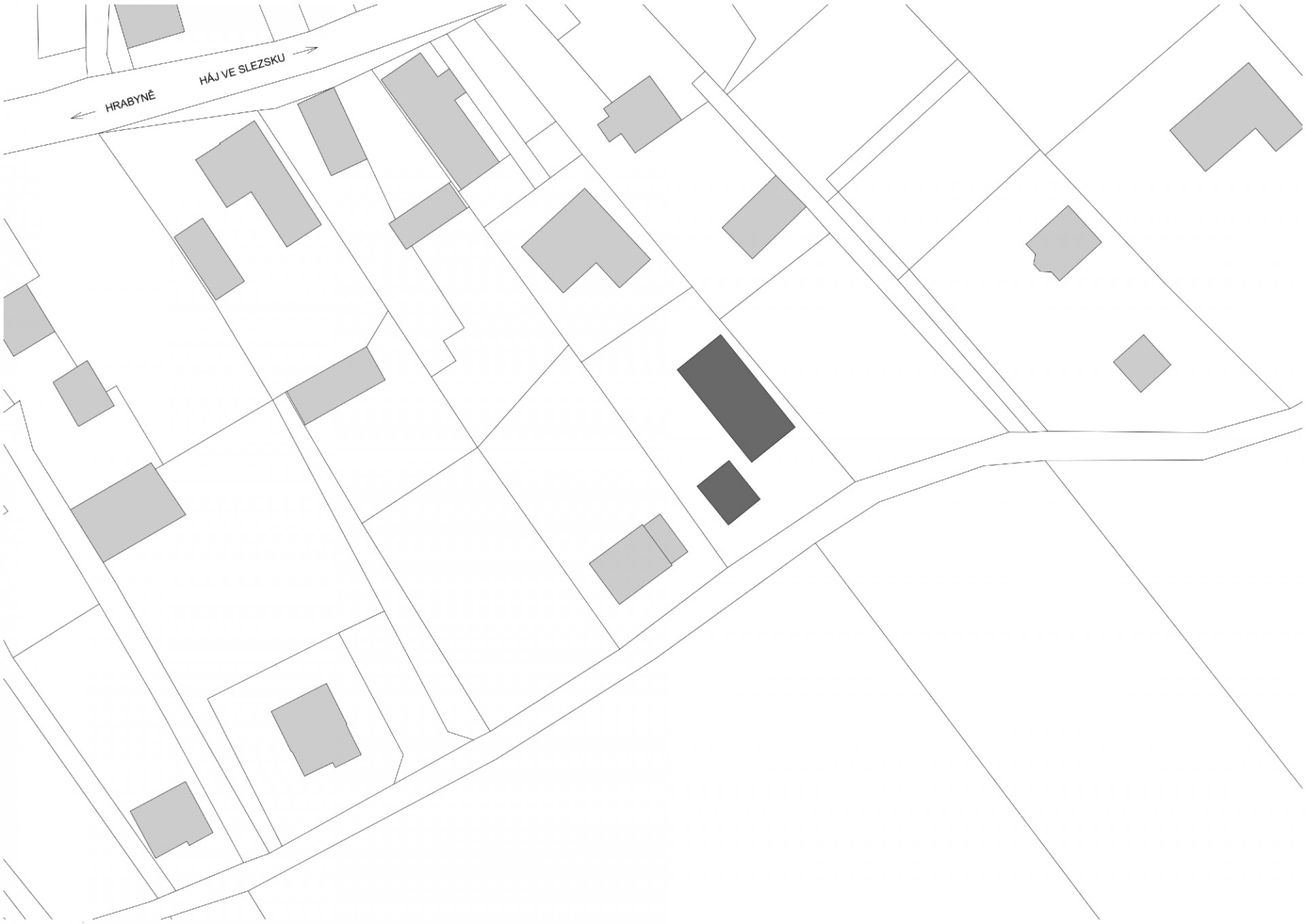
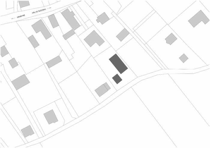
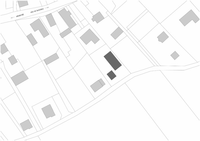
Severní svah s výhledem na vesnici s věží kostela. Původně podlouhlý pozemek se záhumenní cestou na jižní straně, hranice mezi kulturou a naturou.
Namísto výměnku pro rodiče vznikla v zadní části u záhumenní cesty novostavba rodinného domu pro děti. Dům má dva vstupy. V patře ze záhumenní cesty a v přízemí ze zahrady od rodičů. Je navlečeným korálkem na niti pradávného pohybu mezi životem v obci a prací na poli.
Samostatně stojící dvojgaráž spolu s domem člení pozemek na část poloveřejnou - terasa s jižním výhledem do krajiny a na část soukromou - zahrada přimykající se k identitě vesnice.
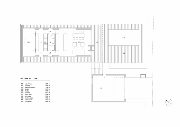
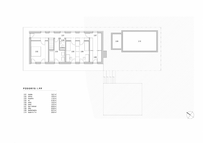
Morfologie terénu, světové strany a výhledy daly vzniknout konceptu paluby - společenského patra s bazénem, levitujícího na podnoži ložnicové části podpalubí. Uspořádání paluby umožňuje volný pohyb, prolínání interiéru s exteriérem a výhledy všemi směry. Volně plynoucí prostor, který se dá členit posuvnými stěnami.
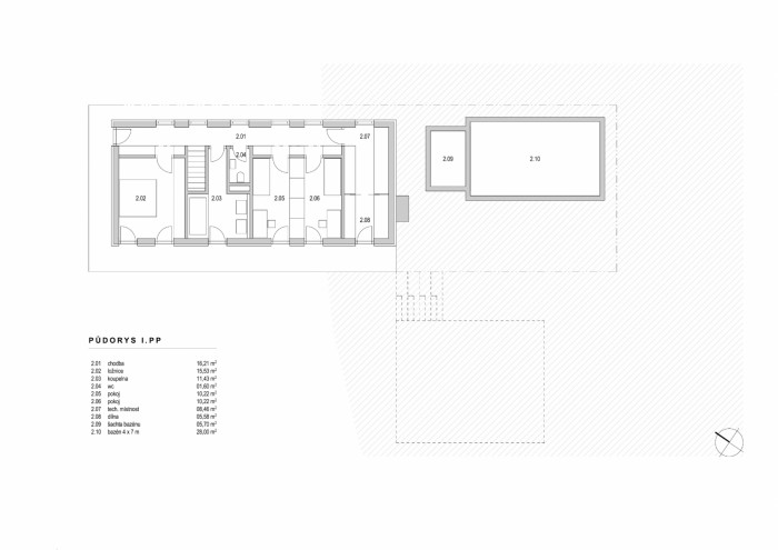
Kajuty pod hladinou ponoru, doslovně i v přeneseném slova smyslu intimity, jsou přes anglický dvorek orientovány do soukromé části zahrady.
Svislé nosné konstrukce jsou z keramických tvarovek. Stropy jsou železobetonové monolitické. Dům je vytápěný tepelným čerpadlem vzduch – voda. Kromě možnosti přirozeného větrání zajišťuje výměnu vzduchu rekuperace.
Projekt vznikl s využitím ARCHICADu.
- Autoři: Tomáš Bindr, Pavlína Harazimová
- Země: Česká republika
- Datum projektu: 2009
- Realizace: 2012
Související projekty
Související architekti
Mohlo by vás zajímat

















