Atelier38 - Restless
Školka N.P. Galena ze sedmdesátých let minulého století- zapomenuté vzpomínky z dětství, všudypřítomné vzrostlé stromy bývalého hřbitova, zavazující velikáni architektury Leopold Bauer a Bohuslav Fuchs v sousedství.
Školku tvořil dvojpodlažní objekt 4 tříd spojený obslužným krčkem s jednopodlažními objekty varny a kotelny.
Konstrukce montovaného MSOB skeletu naplnila při přestavbě a nástavbě Le Corbusierovy teze funkcionalismu. Okouzleni tímto zjištěním, co nejvíce jsme se snažili respektovat podstatu stávajících objektů, jen mírně vymazávat a mírně přidávat. A do nekonečna korigovat proporce.
Pokles počtu narozených dětí v 90 letech minulého století a privatizace státních podniků zapříčinil zánik mnoha institucí předškolního vzdělávání.
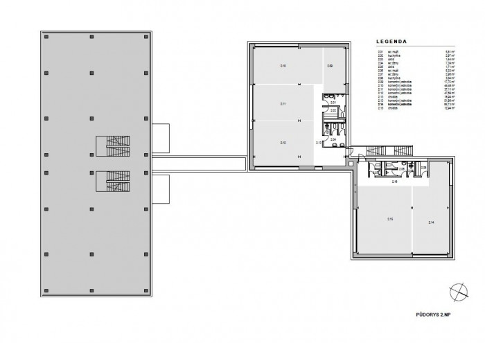
Budovu koupil soukromý investor a začala se proměňovat v živé centrum společenského života, komunitního i celoopavského. V současné době v budově sídlí šicí dílny, sochařský ateliér s veřejným barem, kosmetika, kadeřnictví, fitness. Peče se tady pizza, v nástavbě II.NP jsou administrativní sídla.
V první fázi byla přestavěna dvoupodlažní budova, byl vybouraný propojovací krček a byly částečně řešeny zpevněné a travnaté plochy. Ve druhé fázi byla realizovaná přestavba varny, kotelny, byla provedena nástavba II.NP a dokončili se zpevněné a travnaté plochy.
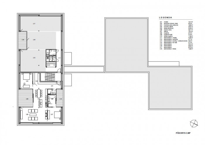
V součastné době se připravuje nástavba III.NP s administrativou a bytem majitelů. I na pátou tezi - střešní terasu- nakonec dojde.
- Autoři: Tomáš Bindr, Petr Doležal
- Ateliér: Atelier 38
- Země: Česká republika
- Město: Opava
- Ulice, číslo: Náměstí sv. Hedviky
- Datum projektu: 2010
- Realizace: 2011
- Zastavěná plocha: 959.00m2
Související projekty
Související architekti
Související ateliéry a firmy
Mohlo by vás zajímat