bod architekti - Městská hala Modřice

CELKOVÉ ŘEŠENÍ A UMÍSTĚNI STAVBY V ÚZEMÍ
Urbanistické řešení a měřítko
Měřítko městské struktury města Modřice není příliš velké, domy v Benešově ulici jsou jednopodlažní, dvoupodlažní, zcela výjimečně trojpodlažní. Nový objekt sportovní haly ctí tento princip a výšku okolní zástavby i přesto, že hala má světlou výšku v rozmezí 9 - 11 metrů, což je výška trojpodlažního domu. Vyhrazený prostor pro stavbu haly je klín mezi železničním koridorem a základní školou, což může zlepšit hlukové poměry pro budovu školy, ale zároveň zhoršit poměry světelně technické v učebnách. Proto je budova haly situována na samé hranici území směrem k trati. Původní objekt – dnešní restauraci – vnímáme jako historickou vrstvu, která je pro území kvalitou. Paměť místa je něco, co má vysokou hodnotu i když těžko kvantifikovatelnou. Obyvatelé se často jen velmi těžko vyrovnávají s demolicí takových objektů, naopak vnímají tato místa jako něco původního, neměnného a uklidňujícího.
Předprostor budovy tvoří nástupní plocha dlážděná drobnou žulovou mozaikou různých odstínů, která zdůrazňuje význam budovy oproti okolní zástavbě. Aby nedošlo k zastínění budovy školy, je proti ní situován jednopodlažní obslužný trakt sportovního centra.
KOMPLEXNÍ ARCHITEKTONICKÉ ŘEŠENÍ STAVBY
Architektonické řešení
Objekt sportovní haly má ambici a potenciál stát se i centrem komunitním. Architektura domu by proto měla vyjadřovat solidnost, vážnost a vzbuzovat klid. To od takového domu bude pravděpodobně očekávat i veřejnost. Stavba je proto navržena jako klidný dům pevně stojící na zemi.
Hmotové řešení
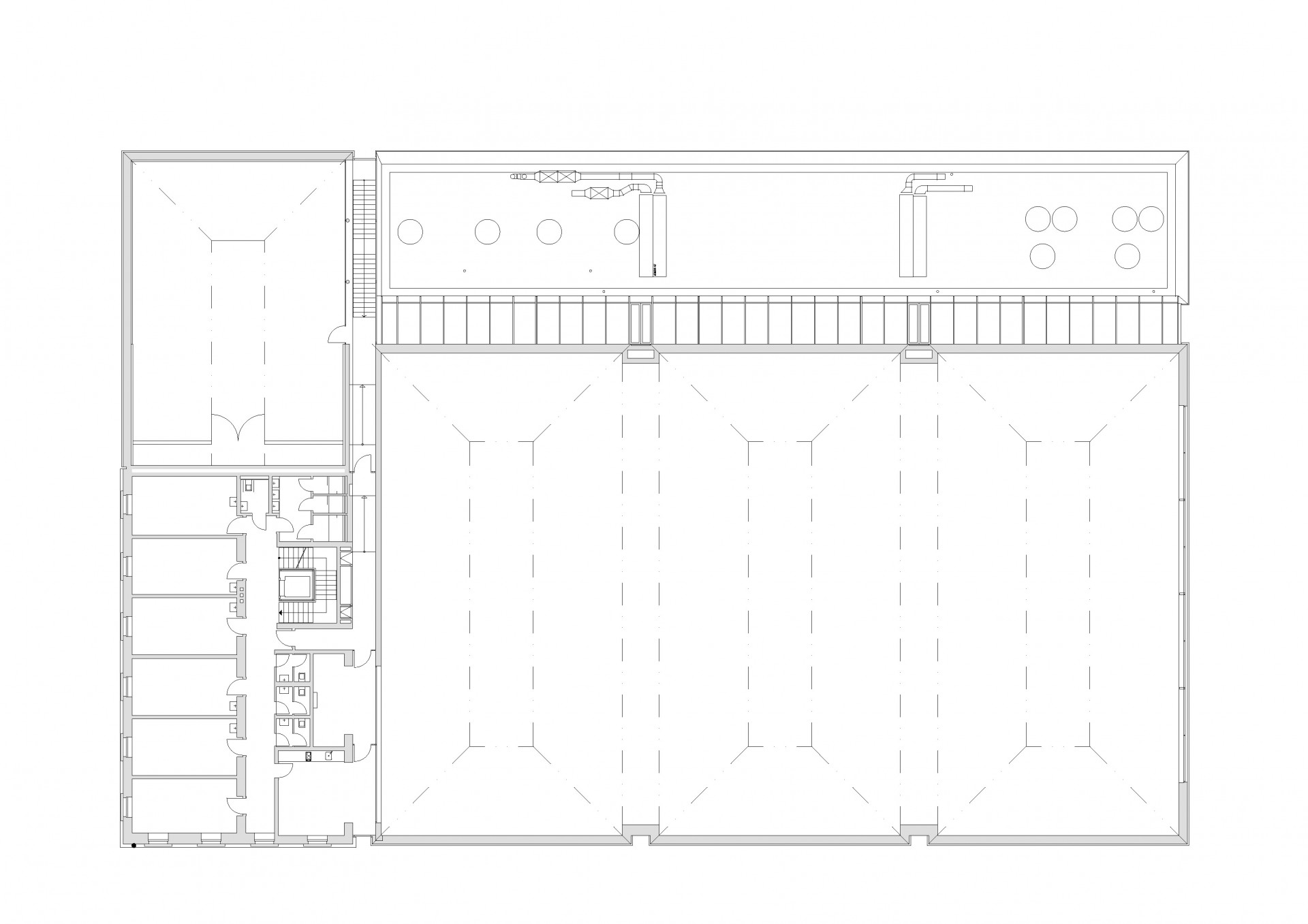
Prostorový koncept se vyrovnává s drobným měřítkem okolní zástavby. Velký objem haly je potlačen rozčleněním do tří stejných hmot. Toto členění odpovídá vnitřnímu provozu - velká hala obsahuje velké hřiště, které lze rozčlenit na tři hřiště nohejbalová/volejbalová. Původní objem historického objektu restaurace U Brázdilů se stal hmotovým vzorem, jeho opakováním je vlastně zdůrazněna jeho existence. Zároveň tím nedochází k vytvoření hmotového novotvaru, který by mohl při vzájemné konfrontaci s historickým objektem působit cizorodě a škodlivě. Uliční fronta je dokončena objemovým otiskem sokolovny, domem, který má do Benešovy ulice jen jeden otvor - hlavní vstup.
Úroveň podlahy velké haly je zapuštěna o 3 metry oproti vstupu do foyer. Díky tomu se celkově sníží výška objektu nad terénem, zlepší se tepelná bilance objektu a úroveň hlavní římsy se srovná s úrovní hlavní římsy původního objektu. Prostory okolo haly u zahrádky jsou oživeny průhledy do sportovní haly, které je možné zaclonit předokenními roletami.
Interiér
Interiér domu je komponován tak, aby měl případný návštěvník prostorový zážitek a v objektu se orientoval intuitivně. Průhledy do hlavní sportovní haly z foyer vedou příchozí na tribunu. Cestou na tribunu příchozí míjejí prosklenou stěnu oddělující tribunu a posilovnu. Posilující jsou vlastně aktéry obrysového divadla pro příchozí a naopak. Členění interiéru domu často vychází z nosné konstrukce, kterou estetizuje. To je případ velkých průvlaků v hale, které ji zároveň rytmizují a slouží i jako úkryt pro dělicí opony jednotlivých hřišť v hale. Podlaha haly a akustické obložení stěn je dubové, stěny jsou z pohledového betonu a podhled světlíků je akusticky upraven. Přístupový ochoz na tribunu má prosklenou střechu, která prosvětlí částečně i halu a přisvětluje skrze prosklenou stěnu posilovnu. Osvětlení velké haly a zrcadlového sálu je řešeno formou stropních světlíků. Aby bylo zamezeno vnikání přímých slunečních paprsků do haly, je pod zasklením světlíků umístěna difúzní vrstva, která odstraní pro sport nežádoucí kontrasty a celkově změkčí světlo v hale a v zrcadlovém sále.
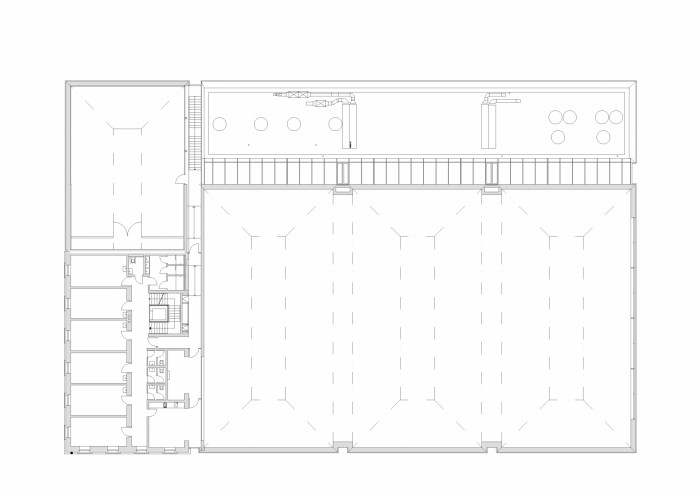
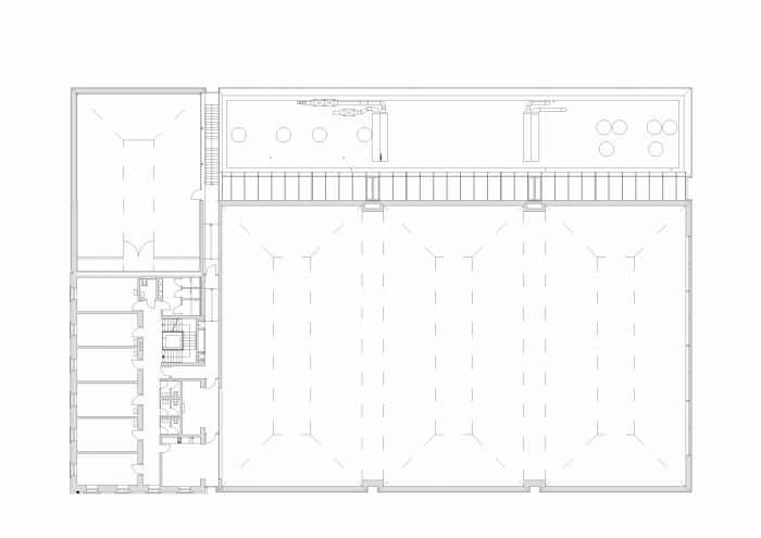
Suterénní prostory slouží převážně pro šatny k velké hale a bazénu. Ten je situován na samém konci obslužného křídla. Díky svažitosti pozemku, která na délku budovy činí zhruba 1,5 metru, je možné bazén prosvětlit přirozeně. Okna do bazénu jsou na úrovni terénu, parapet čelního okna tvoří nízké široké stupně, které slouží jako místo pro odpočinek nebo místo pro posezení dětí při výuce plavání. Součástí bazénu je i relaxační whirlpool.
Prostory posilovny a bazénu nejsou provozovány městem, ale jsou pronajímány a provozovány soukromníky.
Fasáda
Fasádu nových částí domu tvoří omítka profilovaná do horizontálních říms trojúhelníkového průřezu. Toto členění dodá velkým plochám detail a lidské měřítko. Lze ho pokládat i za určitou reminiscenci bosáže, která člení fasádu sokolovny.
Fasáda původního objektu restaurace U Brázdilů byla zrekonstruována do podoby, kterou ilustruje pohlednice ze začátku 20. století, byla obnovena bosáž v přízemí a zrenovovány ozdobné šambrány se suprafenestrami.
Provozní a dispoziční řešení
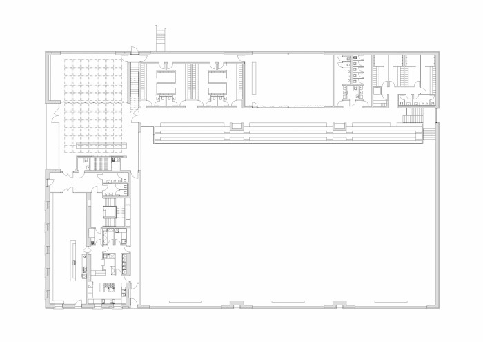
Dispozičním uzlem domu je vstupní foyer, z něho je přístupný ochoz velké haly (přístup na tribunu, do šaten pro posilovnu a zrcadlový sál a šaten pro venkovní kurty), který vytváří jakýsi komunitní prostor, místo kde se může potkat divák a sportovec. Z foyer je zároveň možné sejít do obslužné části šaten pro velkou halu a bazén. Šatny sloužící pro obě tyto funkce nejsou striktně vymezeny, aby mohlo dojít k funkční zastupitelnosti podle aktuálních kapacitních požadavků.
Poloha recepčního pultu umožňuje vizuálně kontrolovat vstup z Benešovy ulice i vstup od kurtů, který bude používaný v souvislosti s vytížením zadního parkoviště a v souvislosti s přístupem ke kurtům od šaten. V případě konání společenské akce v hlavní hale, sportovní šatny ve vstupním patře zastoupí šatny v suterénu, to umožní souběžně provozovat zrcadlový sál a posilovnu. Z foyer přístupný sdílený klubový prostor lze využít třeba i pro výstavy. Na vstupní halu je napojena sokolovna s ubytováním a restaurací. Oba dva domy je však možné oddělit v případech, kdy to bude nezbytné prostým zamčením dveří.
Sportovní hala je propojena se sousedící základní školou podzemní chodbou. Tato spojovací chodba pod úrovní okolního terénu je napojena do krčku mezi starší a novější budovu školy. Děti ze školy podzemní chodbou vstupují do sportovní haly v úrovni hrací plochy hlavní haly, kde jsou také šatny a bazén, nemísí se tak s případnou veřejností v 1NP.
První patro sportovního centra zaujímá zrcadlový sál s horním osvětlením a ubytování v historickém objektu. VIP salonek a TV kabinu, obě dvě místnosti s výhledem na hrací plochu je možné obsloužit z restaurace nebo po nových schodech z foyer. Ubytování nižšího standardu je určeno spíše pro sportovní oddíly.
Podkrovní prostor sokolovny slouží jako ubytovací kapacita formou dvou velkých nocleháren pro celý sportovní oddíl.
Konstrukční a technologické řešení
Nosnou konstrukci domu tvoří železobetonový monolit, který zůstává z velké části z interiéru pohledový. Nosná konstrukce světlíků je ocelová, průvlaky v hale betonové lité.
Celý dům tedy tvoří těžký obvodový plášť s tepelnou izolací. Částečné zapuštění haly zlepšuje její klima v extrémech vysokých i nízkých teplot. Okenní otvory jsou minimalizovány, nejen s ohledem k tepelným ztrátám i ziskům, ale i z důvodu horního osvětlení hal, které přináší výrazně kvalitnější světlo. Vzduchotechnická jednotka pro halu zaujímá prostor pod vstupní halou, bazén má svou vlastní vzduchotechnickou jednotku. Pod bazénem se nachází technické patro, ve kterém se filtruje a upravuje voda do bazénu a whirlpoolu.
Střecha novostavby haly je plechová, tónovaná v barvě omítky. Střecha původního objektu je z pálených tašek – „brněnek“. Nízká část se šatnami, posilovnou a bazénem má plochou střechu a je pokryta extenzivní zelení.
Řešení okolí
Prostranství před sportovním centrem je vydlážděno tak, aby působilo jako skutečný městský prostor. Mezi halou a školou vznikla nová ulice se stromy a parkováním pro návštěvníky dlážděná tvárnicemi, které umožní prorůstání trávy. U stávajících kurtů vznikla dvě nová hřiště, jedno víceúčelové, které je v zimním období možné přeměnit na ledovou plochu a jedno antukové pro trénování nohejbalu. Velké stromy u zahrádky restaurace zůstaly zachovány a v letních měsících tvoří velmi příjemný prostor pro trávení volného času. V tomto místě se nyní buduje také venkovní taneční parket a dětské hřiště.
- Autoři: Vojtěch Sosna, Jakub Straka, Jáchym Svoboda
- Ateliér: bod architekti
- Spolupráce: Karolína Urbánková, František Bosák
- Země: Česká republika
- Generální dodavatel: Sdružení firem SYNER, s.r.o. a MORAVOSTAV Brno a.s.
- Město: Modřice
- Ulice, číslo: Benešova 274
- PSČ: 664 42
- Suma: 189 000 000.00
- Měna: CZK
- Datum projektu: 2015
- Realizace: 2020
- Zastavěná plocha: 2 375.00m2
- Plocha pozemku: 6 483.00m2
- Rekonstruovaný objekt restaurace s ubytováním: 660 m2
Související architekti
Související ateliéry a firmy
Mohlo by vás zajímat













































