Chládek architekti - BD Kvítková
Místo stavby bytového domu je ve Zlíně v blízkosti centra. Veřejný prostor této části města je tvořený kompaktní blokovou zástavbou doplněnou o několik solitérních staveb.
Navržený dům o čtyřech nadzemních podlažích sleduje stávající stavební čáru a je rozložen na celou šířku parcely. Římsa objektu ve třetím nadzemním podlaží navazuje na hranu římsy vedlejšího polyfunkčního domu, stejně jako hloubka ustoupení posledního čtvrtého podlaží.
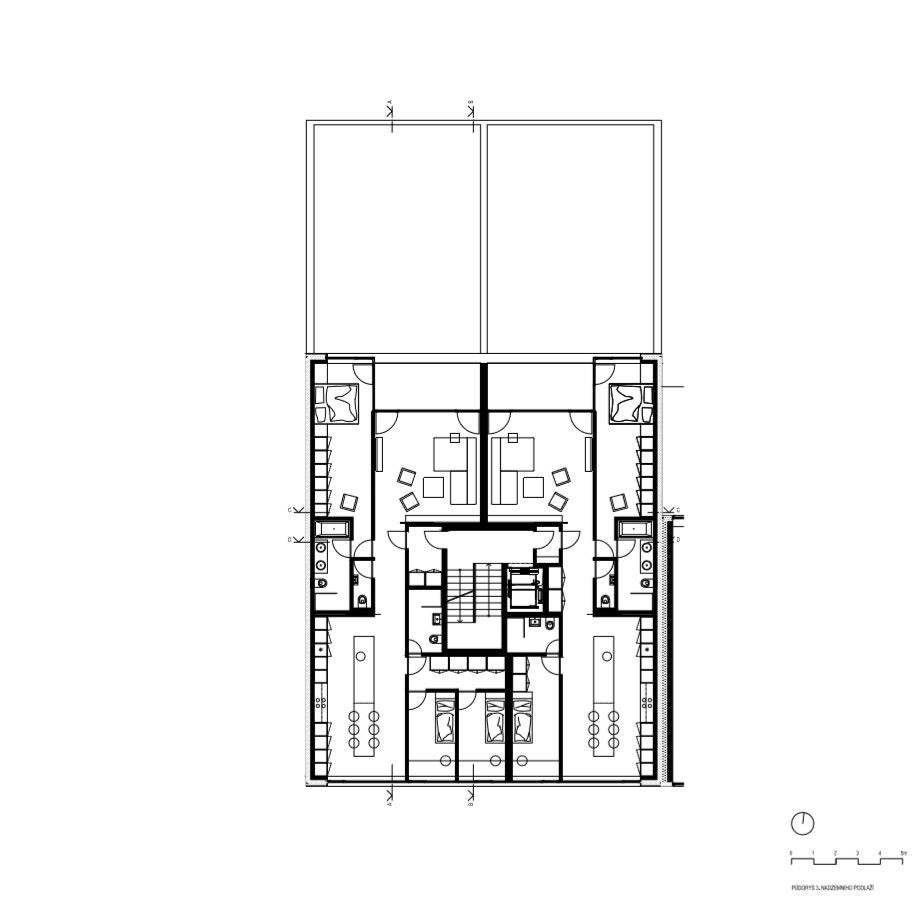
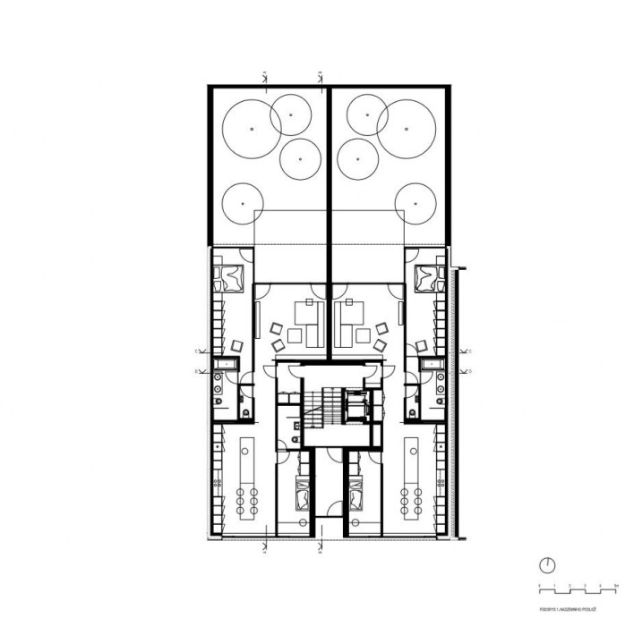
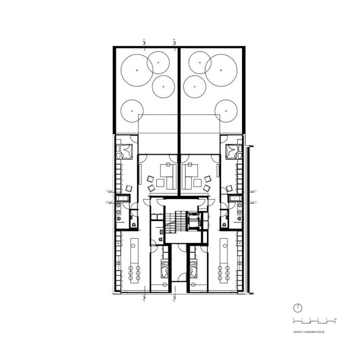
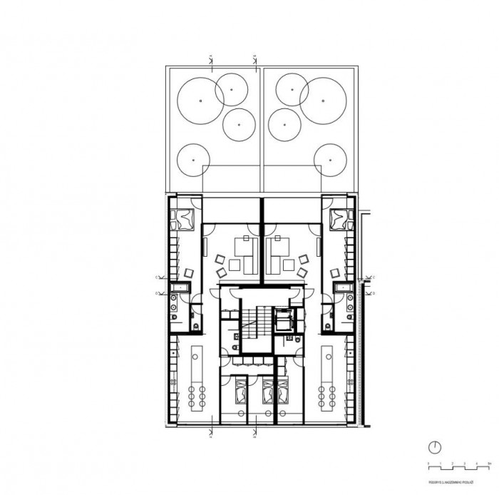
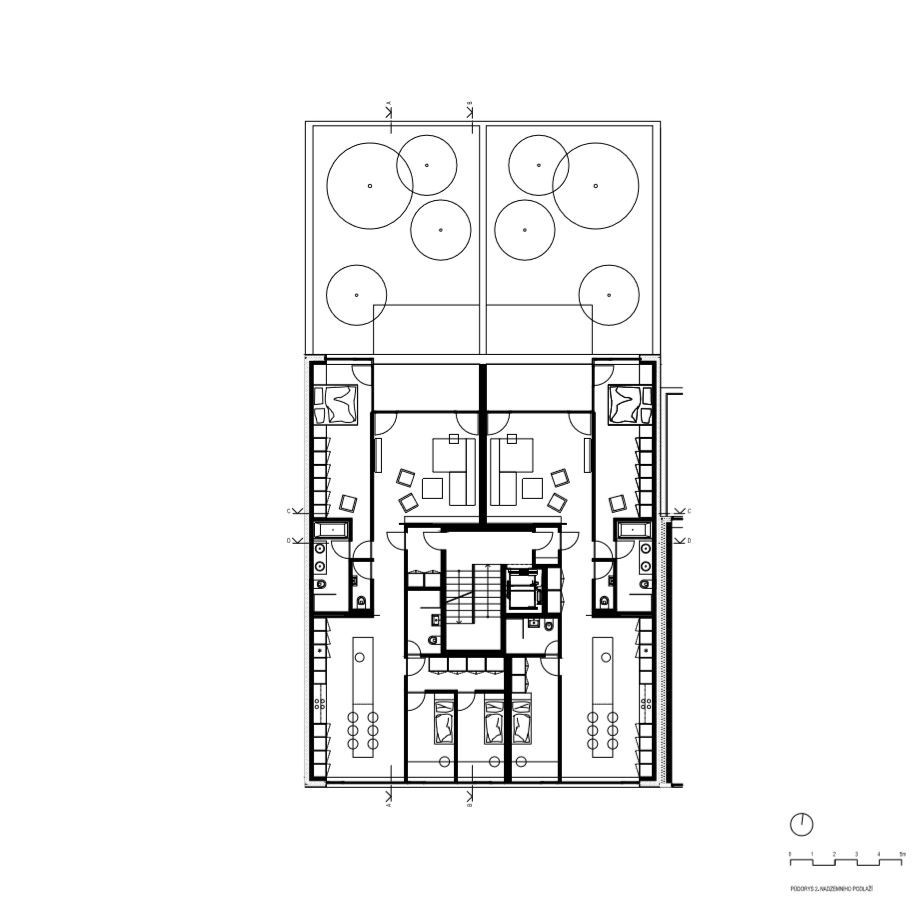
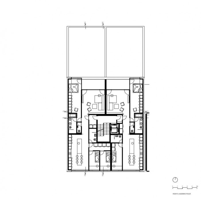
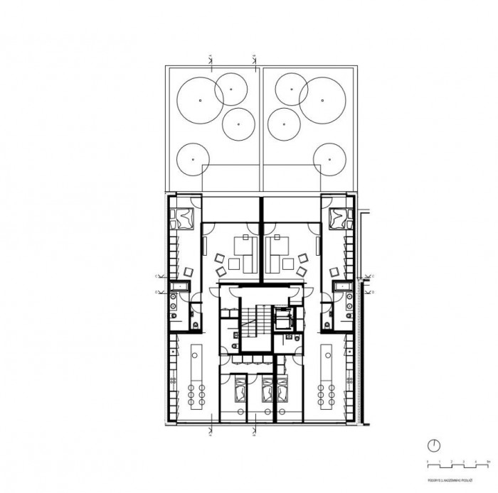
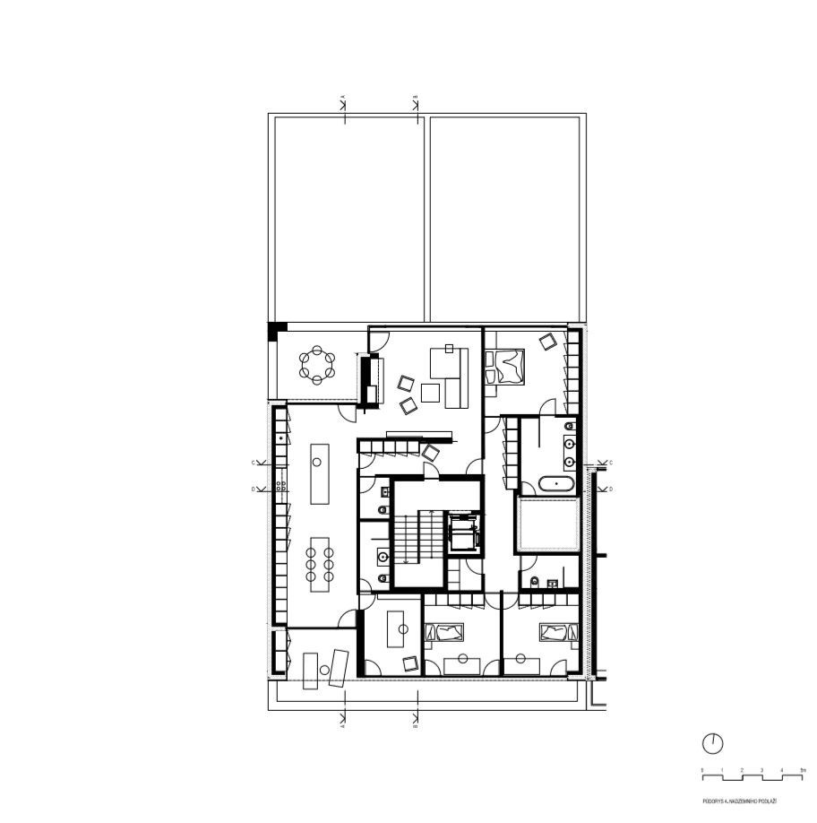
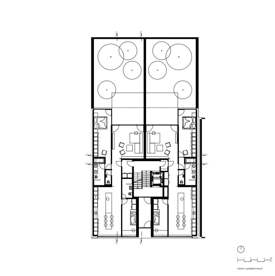
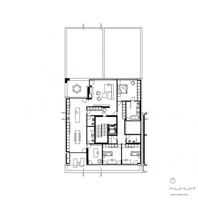
Podzemní podlaží je rozloženo na celou velikost parcely a tvoří je parkování přístupné z vedlejšího polyfunkčního domu, sklepní kóje a technické zázemí objektu. Zvýšené přízemí domu sestává ze dvou bytových jednotek o velikosti 4+kk doplněných o zahrady zřízené na ploše nad podzemním parkováním. Druhé a třetí nadzemní podlaží sestává vždy ze dvou bytových jednotek o velikosti 5+kk a 4+kk. Poslední ustoupené podlaží sestává z jednoho bytu o velikosti 6+kk doplněného o dvě střešní terasy a jedno atrium.
Rozvržení všech bytů vychází ze severojižní orientace domu a nabízí obytný prostor rozložený na celou hloubku půdorysu objektu. Kuchyně s jídelnou jsou orientovány na jih do ulice Kvítková, obývací pokoje na sever do klidnějšího vnitrobloku. Vertikální komunikace jsou navrženy v těžišti dispozice.
Fasádu objetu tvoří černé lícové zdivo, společné prostory objektu jsou ponechány v pohledovém betonu.
- Autoři: Pavel Chládek, Barbora Jochcová
- Ateliér: Chládek Architekti
- Země: Česká republika
- Město: Zlín
- Ulice, číslo: Kvítková, 7148
- Datum projektu: 2014
- Realizace: 2017
- Zastavěná plocha: 478.00m2
Související projekty
Související architekti
Související ateliéry a firmy
Mohlo by vás zajímat