CMC architects - Rustonka
 
                                
                                Motto
Trojúhelníková parcela. Tři strany, tři domy.Rafinovaná geometrie tří solitérních objektů.Náměstí s průhledy. Zeleň. Fontány. Socha.Stíny, světlo, ranní opar, západ slunce.
Místo
Administrativní komplex je zrealizován na ploše bývalých Pražských akciových strojíren, dříve Ruston a spol., známý pod zlidovělým názvem Rustonka. Trojúhelníková parcela je vymezena ulicemi K Olympiku, Sokolovská, Rohanské nábřeží a U Rustonky, poblíž sídliště a stanice metra Invalidovna a hotelu Olympik.
Koncept
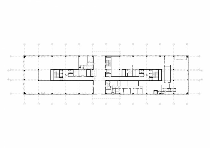
Velkorysé jednoduché objemy administrativních budov jsou na pozemku umístěny zdánlivě nahodile. Ve skutečnosti finálnímu řešení předcházelo nespočet variant výpočtů ploch a úhlů, rozmístění a velikost jednotlivých hmot, a zkoumání jejich vzájemných vazeb. Výsledkem je pečlivě zkonstruovaná geometrie tří stejných objemů a volného prostoru mezi těmito objemy.
Architektura
Architektonické řešení odkazuje na původní industriální charakter lokality a její genius loci. Velké hmoty, sedmipodlažní kancelářské budovy, vybavené špičkovou technologií, stroje na práci. Industriální cihelná fasáda v barvě černé a hnědé, štíhlá vysoká okna s výraznými šambránami a venkovními žaluziemi. V přízemí obchodní plochy, kavárny, restaurace. Velkorysé vstupní lobby s výraznou markýzou. Střešní krajina, plná technologií, s terasami, krytými vysokou atikou a žaluziemi.
Veřejný prostor
Návrh veřejného prostoru mezi budovami se stal pro autory samostatným tématem. Spoluautorem celkového konceptu rozvržení terénu a zpevněných venkovních ploch je krajinářský architekt Martin Barry. Základní geometrie se v návrhu dělí a rozpadá na jednotlivé linie, prvky, materiály. Celková kompozice je horizontálně i výškově rozdělena na jednotlivé široké chodníky podél objektů, propojených rampou a schody, poblíž centrálního náměstí jsou umístěny dvě fontány. Rostlý terén je od zpevněných ploch oddělen opěrnými stěnami. Na zatravněné ploše jsou atypické lavice k sezení. Divoký charakter zeleně, odkazující k industriální historii místa, vznikl v úzké koordinaci autorů s krajinářskou architektkou Janou Pyškovou.
Umění
Na piazzettě mezi budovami se autoři, ve spolupráci s investorem, rozhodli umístit nepřehlédnutelné umělecké dílo s názvem „Vista Mars“ od sochaře Jiřího Příhody, laureáta ceny Jindřicha Chalupeckého v roce 1997. Futuristická ocelová otáčející se spirála s leštěným nerezovým povrchem, s panoramatickým snímkem Marsu na velkoplošné obrazovce, s možností vstupu dovnitř objektu.
- Autoři: Vít Máslo, David Richard Chisholm, Evžen Dub
- Ateliér: CMC ARCHITECTS
- Země: Česká republika
- Město: Praha 8 - Karlín
- Ulice, číslo: Sokolovská 690/115
- Suma: 1 500 000 000.00
- Měna: CZK
- Datum projektu: 2010
- Realizace: 2019
- Užitná plocha: 40 500.00m2
- Zastavěná plocha: 7 000.00m2
- Investor: White Star Real Estate
- developer: J&T Real Estate
- architekt a HIP: Miroslav Peterka
- architekt: Aneta Všechovská Zadáková
- krajinářský architekt, celkový koncept řešení a projekt: Martin Barry
- krajinářský architekt, návrh zahradních úprav: Jana Pyšková
- umělecké dílo – architektonický koncept: CMC ARCHITECTS
- objekt Vista Mars – autor: Jiří Příhoda
- Statika: NĚMEC POLÁK
- Generální dodavatel: Sdružení Geosan – Bak
Související projekty
Související architekti
Související ateliéry a firmy
Mohlo by vás zajímat
 
				 
				 
				 
				 
				 
				 
				 
				 
				 
				 
				 
				 
				 
				 
				 
				 
				 
				 
				 
				 
				 
				 
				 
				 
				 
				 
				 
				 
				 
				 
				 
				 
                             
                             
                             
                             
                             
                                 
                             
                             
                             
                             
                             
                             
                             
                             
                             
                             
                             
                             
                             
                             
                             
                             
                             
                             
                             
                             
                             
                             
                             
                             
                             
                     
                     
                     
             
             
             
             
            		 
            		 
            		 
            		 
            		 
                                                                                                             
                                                         
                                                         
                                                                                                             
                                                         
                                                         
                    