ČTYŘSTĚN - Sociální byty obce Bílovice nad Svitavou
Zadáním bylo vytvořit obecní sociální byty – jednoduchý, levný objekt s přibližně šesti bytovými jednotkami na místě původní staré truhlárny.
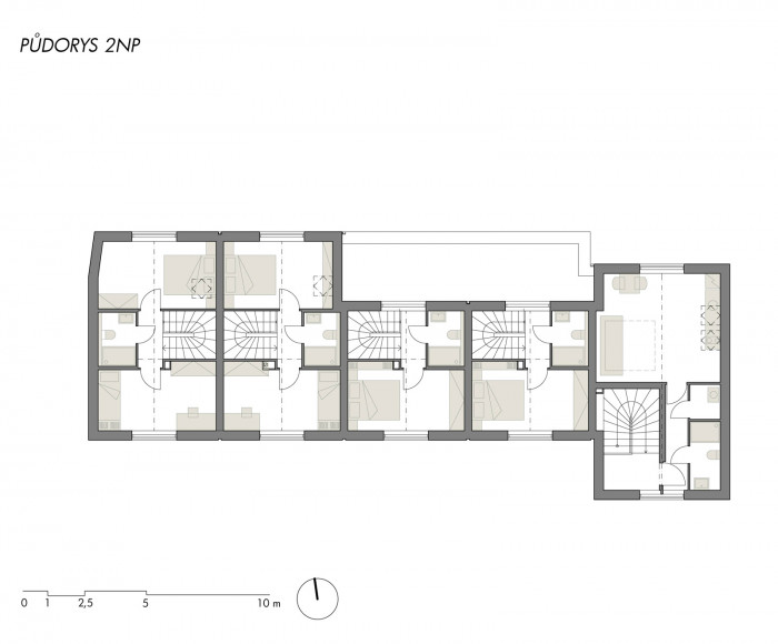
S respektem k charakteru lokality má objekt sedlové střechy, tvar, který se vyskytuje všude v okolí. Drobnějšího měřítka jsme dosáhli otočením jednotlivých domů štíty do ulice. To jednak umožnilo dostat střešními okny slunce do zadních, horních místností a tím zajistit nutné proslunění bytů a zároveň dalo celému souboru dynamiku a přívětivý charakter. Jednotlivé byty - domy jsou logicky členěny i navázány na pavlač. U venkovního schodiště jsou větší, dva třípokojové byty, uprostřed menší, dva dvoupokojové (s budoucí možností rozšíření pokoje na terasu) a v koncové části jsou nad sebou dvě garsoniéry. Tím se na pavlači logicky rozmělňuje provoz i pohyb osob.
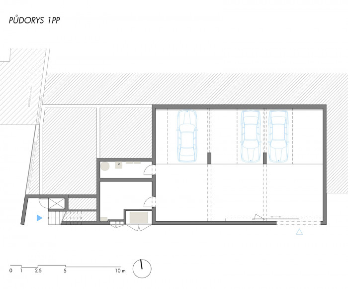
Do polozapuštěného suterénu přístupného z ulice jsme umístili technické zázemí a garáže. Z této platformy vyrůstají jednotlivé domy - byty ustoupené o pavlač. Tuto pavlač jsme záměrně rozšířili a vytvořili z ní nejen komunikaci k jednotlivým vstupům do bytů, ale i poloveřejný prostor, který slouží k vzájemné interakci mezi obyvateli jednotlivých bytů. Obyvatelé se zde mohou setkávat se svými sousedy a vytvořit tak vzájemné vazby a vztahy. Interakci podporují i u vstupů umístěné lavičky s květinovými truhlíky, které si obyvatelé mohli sami osázet. Zároveň tyto bloky vytváří odstup od oken z kuchyní, orientovaných do pavlače.
Vnitřní dispozice jednotlivých bytů je minimální, ovšem ne na úkor provozu či komfortu. Všechny prostory jsou maximálně využitelné a funkční. V prvním patře je zádveří, záchod, kuchyně propojená s obývacím prostorem proskleným do dvorní části (zahrady). Orientace na sever umožňuje větší otevření prosklených ploch bez hrozby přehřívání vnitřního prostoru a zároveň zajišťuje dostatek denního světla. Středem dispozice prochází schodiště do patra. Zde jsou umístěny ložnice a minimální koupelny.
Použité materiály jsou běžné, odolné a zároveň levné. Suterén - podnož garáží a technické zázemí je betonové (z bednících tvarovek), opatřených stěrkou. Strop nad suterénem monolitický, železobetonový. V jednotlivých bytech skládaný z předepjatých železobetonových panelů. Horní patra jsou zděná z cihelných tvárnic, zateplená tepelnou izolací a omítnutá. Veškeré výplně otvorů, ocelová zábradlí, stříšky tvořící závětří nad vstupem a venkovní svítidla jsou antracitové. Venkovní dřevěné treláže jsou z nehoblovaných modřínových latí bez povrchové úpravy.
- Autoři: Milan Joja, Karel Kubza, Tomáš Págo
- Ateliér: ČTYŘSTĚN
- Spolupráce: Martina Fojtíková, Pavel Matonoha, Martin Urubek
- Země: Česká republika
- Město: Bílovice nad Svitavou
- Ulice, číslo: Husova 148
- Datum projektu: 2017
- Realizace: 2019
Související architekti
Související ateliéry a firmy
Mohlo by vás zajímat