Atelier RAW - Bytový dům Šumavská v Brně

Bytový dům Šumavská je dobrá adresa – pět minut městskou hromadnou dopravou od centra a pět minut volné chůze od městského parku Lužánky. Stojí v klidné části Králova Pole s jednou fasádou orientovanou směrem k areálu Univerzity obrany, kterou tvoří komplex budov z 19. století a druhou, jižní fasádou do klidného zeleného vnitrobloku.
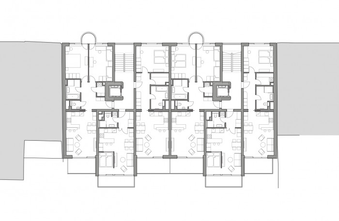
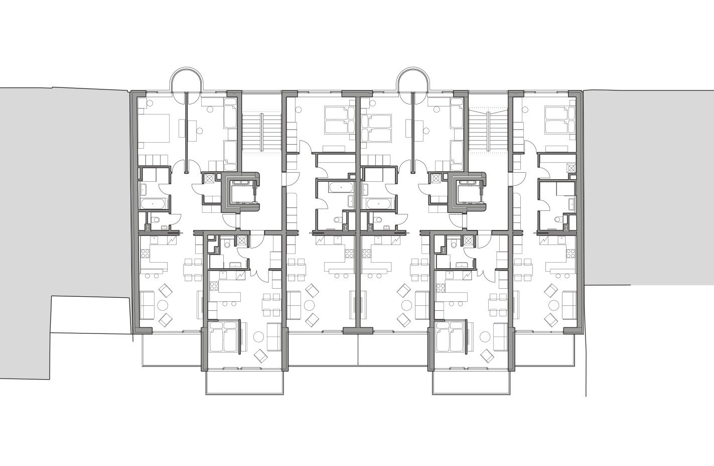
Dům má sedm nadzemních podlaží a dvě komunikační jádra opatřená schodištěm a výtahem. V každém z pater jsou navrženy tři byty různých velikostí. Každý byt má směrem na jižní stranu do vnitrobloku prostornou hlubokou terasu, umožňující umístění např. jídelního stolu nebo lehátka. Směrem do zeleného vnitrobloku je fasáda na terasách otevřená formou posuvných oken. Ložnice větších bytů jsou pak orientovány na sever a některé jsou opatřeny balkonem. Byty mají prostorné vnitřní haly, koupelny a komory. Všechny pokoje mají dostatečné rozměry, umožňující umístění potřebného nábytku. V přízemí jsou k dispozici dvě pronajímatelné jednotky s možností využití pro služby nebo ateliéry. Každý byt má v podzemním podlaží stání a sklepní kóji. Vjezd do podzemních garáží je navržen pomocí komfortní jednopruhové rampy z ulice Šumavské. Součástí domu je i ozeleněný vnitřní dvůr, přístupný ze vstupních hal prvního nadzemního podlaží, sloužící k rekreaci obyvatel domu.
Materiály použité při stavbě domu vycházejí ze shodné filozofie developera i architektů používat vysoce kvalitní výrobky s patřičnou trvanlivostí a efektem. Jedná se především o použití přírodních kamenů, skla, vysoce kvalitní omítky, nadstandartních keramických dlažeb a obkladů, hliníkových okenních rámů, kvalitních podlah, dveří a zařizovacích předmětů.
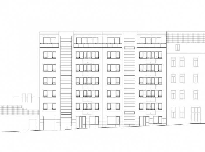
Architektonické řešení domu navazuje na to nejlepší z tradice výstavby bytových domů v 30. letech 20. století, kdy bytové domy v městě Brně stavěli špičkoví funkcionalističtí architekti, jakými byli Fuchs, Wiesner, Kuba, Dvořák. Detaily použité na fasádě domu tak navazují na brněnskou tradici použití přírodních kamenů – v tomto případě travertinu na špaletách oken a na parteru objektu, výrazné použití prosklených stěn na schodištích a kvalitní atypické zámečnické detaily na výkladcích parteru. Fasáda domu směrem do ulice Šumavské je traktována půlkruhovými balkóny, které celému objektu dávají až nautický výraz a jsou výrazným a nezaměnitelným výtvarným akcentem. Velkorysé terasy směrem na jih do vnitrobloku jsou opatřeny zábradlím z čirých skel, umožňujících dostatečný průnik světla a výhled do zeleně.
Výsledkem by měl být krásný dům, který obstojí ve zkoušce časem tak, aby i po delší době stále vykazoval vysokou estetickou a užitnou laťku, nasazenou v jeho počátku. Kvalitní městský dům, harmonicky komunikující se svým okolím, v kterém se jeho obyvatelům dobře žije.
- Autoři: Tomáš Rusín, Ivan Wahla, Lukáš Vágner
- Ateliér: Atelier RAW
- Země: Česká republika
- Stavebník: MAGNUM Etos, s.r.o.
- Město: Brno
- Ulice, číslo: Šumavská 618/3a
- Realizace: 2020
Související projekty
Související architekti
Související ateliéry a firmy
Mohlo by vás zajímat






















