Atelier RAW - Bytový dům Spolková v Brně

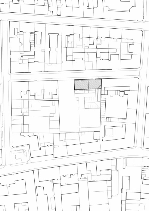
Bytový dům Spolková v Brně stojí v proluce navazující na bývalý Dělnický dům. Dělnický dům byl realizován ve dvou časových úsecích a to uliční již neexistující část v letech 1897 a dvorní, zcela zdevastovaná část v letech 1929 podle projektu arch. Göttlichera. Komplex nebyl předchozími vlastníky udržován po dobu posledních cca 30 let, což se podepsalo fatálně na stavu jeho stavební substance.
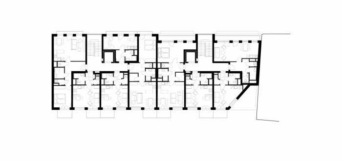
Nový bytový dům je první etapou zástavby proluky. Na již zrealizovanou uliční část bude v budoucnu navazovat nižší část dvorní a bude doplněna další uliční část. Dům má sedm nadzemních podlaží a dvě komunikační jádra opatřená schodištěm a výtahem. V každém z pater jsou navrženy čtyři byty různých velikostí. Každý byt má směrem na jižní stranu do vnitrobloku balkon. Ložnice větších bytů jsou orientovány na sever a jsou opatřeny úzkým průběžným balkonem. V přízemí jsou k dispozici tři pronajímatelné jednotky s možností využití pro služby nebo ateliéry. Každý byt má v podzemním podlaží stání. Vjezd do podzemních garáží je navržen pomocí jednopruhové rampy z ulice Spolkové. Součástí domu je i ozeleněný vnitřní dvůr, přístupný ze vstupních hal prvního nadzemního podlaží, sloužící k rekreaci obyvatel domu.
Uliční fasáda domu je opatřena pravidelným rastrem francouzských oken, střídajících se s vertikálním zasklením schodišť. Po délce fasády jsou v patrech navrženy průběžné úzké balkony. Fasáda je obložena červenými cihelnými pásky, ukončenými bílými špaletami kolem oken. Sedmé patro je ustoupené. Směrem na jih do vnitrobloku je navržena jednoduchá fasáda s balkony opatřená bílou omítkou. Vstupní haly jsou obloženy keramickým obkladem navozující optický klam. Po dostavbě druhé etapy vznikne komplex s širokou nabídkou bytů v klidném prostředí, přinášející do již existující ulice novou kvalitu bydlení a života.
Projekt vznikl s využitím ARCHICADu.
- Autoři: Tomáš Rusín, Ivan Wahla, Lukáš Vágner
- Ateliér: Atelier RAW
- Země: Česká republika
- Město: Brno
- Ulice, číslo: Spolková 924
- PSČ: 602 00
- Realizace: 2020
- Investor: Realdata spol. s.r.o. a Mig
- Spolupráce: Promed Brno s.r.o.
Související projekty
Související architekti
Související ateliéry a firmy
Mohlo by vás zajímat





















