B

Bytový dům pro seniory ve Staříči

Bytový dům pro seniory ve Staříči od Kamil Mrva Architects Foto: Libor Stavjaník / Studio Toast

Obec Staříč vyzvala několik architektonických a projekčních kanceláří k účasti v soutěži na plánovaný bytový dům pro seniory. Náš návrh byl vyhodnocen jako nejlepší a byl dále rozpracováván a připravován pro realizaci.

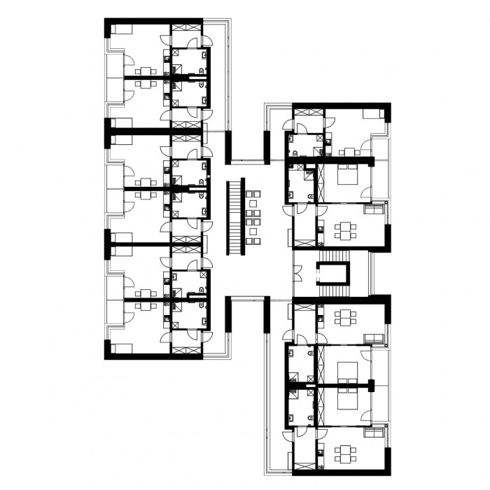
Dům sestává ze dvou samostatných hmot propojených halou, ve které jsou společenské prostory. Naší snahou bylo navrhnout prostředí, v němž se budou senioři cítit doma, ale zároveň̌ bude impulsem k jejich integraci do života obce, a naopak k možnosti vtažení života obce do domu. Proto je například parter domu navržen tak, aby obsahoval služby nejen pro obyvatele domu, ale umožnil i využití pro širší veřejnost.

Foto: Bytový dům pro seniory ve Staříči od Kamil Mrva Architects

Pro obec je to jedna z nejdůležitějších a největších investičních akcí porevolučního období. Od počátku studie po kolaudaci stavby uběhlo devět let. V průběhu dvou let výstavby a více než sta kontrolních dnů, jsme měli možnost zažít jak příjemnou, tak nepříjemnou atmosféru.

  • Autoři: Kamil Mrva, Matin Rosa
  • Ateliér: Kamil Mrva Architects
  • Spolupráce: Jan Stuchlík, Martin Vymetálek, Jaroslav Holub, Monika Drholecká, Tomáš Šenovský
  • Adresa: Staříč 811, 739 43 Staříč, Moravskoslezský kraj, Česká republika
  • Země: Česká republika
  • Realizace: 2016 - 2018
  • Projekt: 2012 - 2014
  • Investor: obec Staříč
  • Generální dodavatel: BYSTROŇ Group a.s.
  • Datum projektu: 2012–2014
  • Realizace: 2016–2018
  • Technický dozor investora: Michal Chovanec
  • Adresa:: Staříč 811, Staříč
Generální partner
Hlavní partneři