Doležel Architekti - Bytový dům Mydlářka
Novostavba bytového domu Mydlářka je součástí postupné kultivace dejvického bytového komplexu z 50. let 20. století, která vzniká ve spolupráci s Úřadem Městské části Praha 6 a zahrnuje umístění dětského hřiště, mateřské školy a dvou bytových objektů doplňujících severní uliční frontu podél ulice Mydlářka.
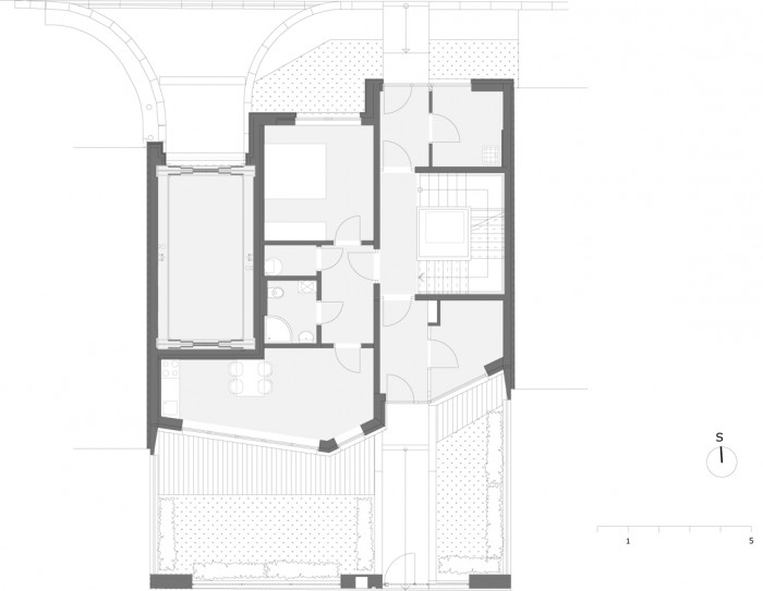
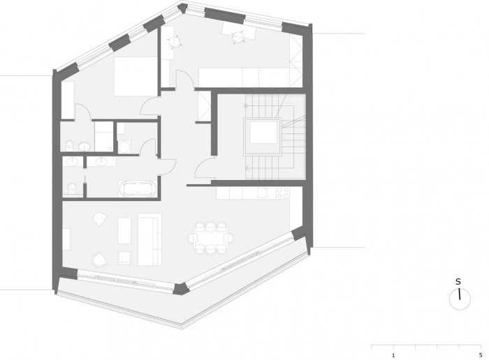
Jedním z těchto objektů je v roce 2017 dokončený dům na pozemku 3136/9, jenž nahradil nevyužívaný přízemní objekt, vklíněný mezi dva stávající bytové domy. Nový bytový objekt o jednom podzemním a čtyřech nadzemních podlažích střešní atikou nepřesahuje římsy sousedních domů, ale snaží se na omezeném pozemku proluky využít plošný potenciál asymetrickým "vystoupením" z roviny fasády okolních domů a nenásilně tak oživit jednotvárnost uliční fronty.
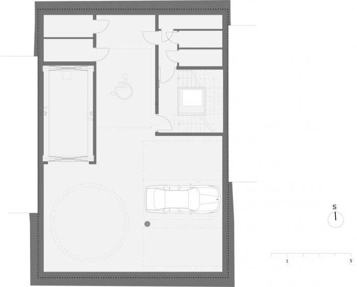
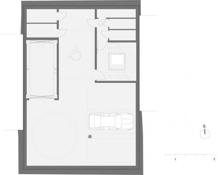
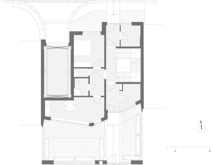
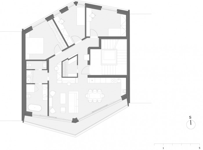
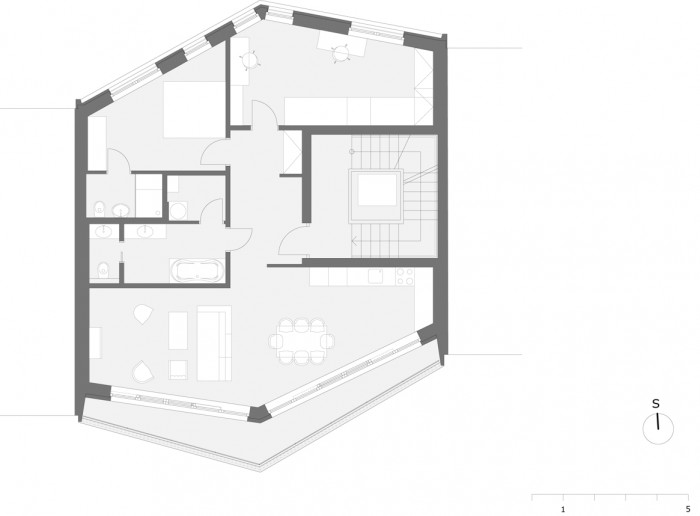
Hlavní vstup je veden z ulice přes předzahrádku. Z vnitrobloku je vyřešen vjezd do podzemních garáží přes autovýtah a točnu ke čtyřem parkovacím stáním. Centrem dispozice domu je komunikační jádro tvořené tříramenným schodištěm a proskleným výtahem. V 1.NP je umístěn jeden menší byt, ve 2. až 4. NP se nachází na každém patře jeden byt s obdobnou dispozicí. Denní část je orientována k jižní prosklené fasádě s lodžií. Při severní fasádě jsou umístěny ložnice. V centru dispozice je koupelna, wc a šatna.
Obě fasády jsou vzhledem ke své orientaci řešeny odlišně. V kontrastu s tradičními zděnými bytovkami je jižní fasáda prosklená a výrazně horizontálně členěná lodžiemi po celé šířce objektu. Vertikalitu fasádě dodávají posuvné stínící panely posazené na samou hranu lodžií. Severní fasáda je kombinací francouzských oken s obkladem ze sendvičových velkoformátových hliníkových panelů.
Konstrukční systém je tvořen dvěma příčnými nosnými železobetonovými stěnami a ztužujícím schodišťovým jádrem s deskovými stropy a konzolami.
- Autoři: František Doležel
- Spolupráce: Miroslav Klofáč, Vojtěch Kolínský, Vojtěch Kramář, Helena Doleželová
- Země: Česká republika
- Realizace: 2017
- Město: Praha 6 - Dejvice
- Ulice, číslo: Mydlářka, 3136/9
- PSČ: 16000
- Suma: 16 000 000.00
- Měna: CZK
- Datum projektu: 2010
- Realizace: 2017
Mohlo by vás zajímat