IO Studio - Altán ČZU

Areál ČZU v Praze Suchdole byl zbudován v 60. letech 20. stol. a představuje výjimečnou ukázku architektonicko urbanistické a krajinářské tvorby. Ucelený komplex budov je postaven v jednotném arch. stylu neofunkcionalismu odkazujícího se na Baťovský funkcionalismus. Vyznačuje se přiznaným železobetonovým skeletem a jednotným formátem oken. Jednotlivé budovy fakult jsou od sebe rozlišeny různobarevným mozaikovým obkladem okenních parapetních stěn.
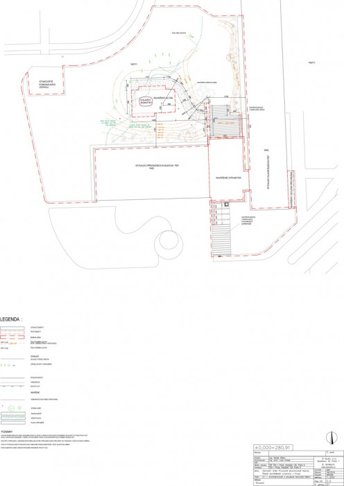
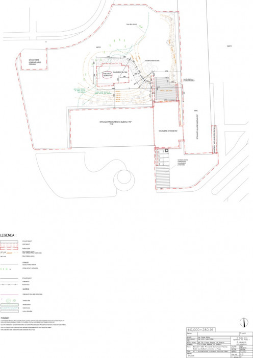
Na tento silný architektonický odkaz jsme chtěli navázat u všech našich architektonicko stavebních realizací, které jsme od roku 2011-2017 měli příležitost pro Provozně ekonomickou fakultu ČZU vytvořit (rekonstrukce vstupního přístřešku a vstupních prostor hlavní budovy PEF, rekonstrukce interiérů přednáškového pavilonu, dostavba spojovacího a společenského objektu atria, kterým studenti získali přístup do severní části pozemku). Tento prostor jsme přizpůsobili pro účely pobytu studentů pomocí zahradních úprav a do středu zahrady jsme umístili námi navržený zahradní altán.
Pozemek jsme zahradnickými úpravami proměnili na prostor, který slouží studentům jako oddychová oáza, kde mohou volně trávit čas mezi jednotlivými přednáškovými bloky a rovněž slouží k reprezentativním příležitostem pro účely fakulty. Prostor zahrady je vymezen do čtyř funkčních zón. Zóna dekorativního nižšího porostu vytvářejícího optický a hlukový předěl mezi zahradou a okolními objekty, upravený stávající vzrostlý stromový porost s edukativním zaměřením, volné travnaté plochy pro univerzální využití a zpevněné terasy pro umístění venkovního mobiliáře. Součástí tohoto řešení bylo rovněž navržení zahradního altánu, který urbanisticky a hmotově vymezuje řešený prostor zahrady a byl pro nás v celkové koncepci velmi důležitý, neboť výtvarně posouvá celkové architektonické řešení do současné polohy.
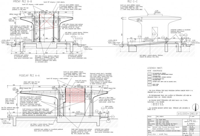
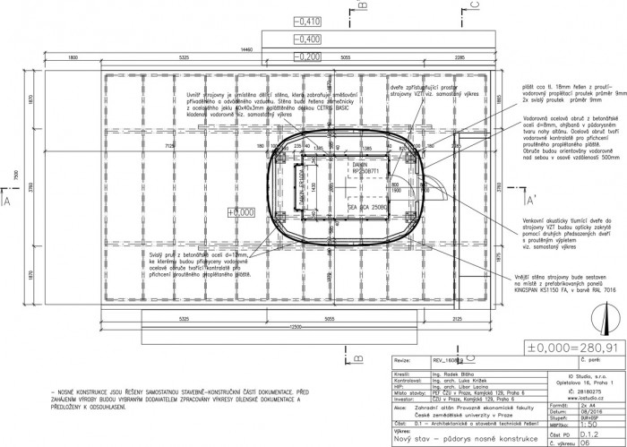
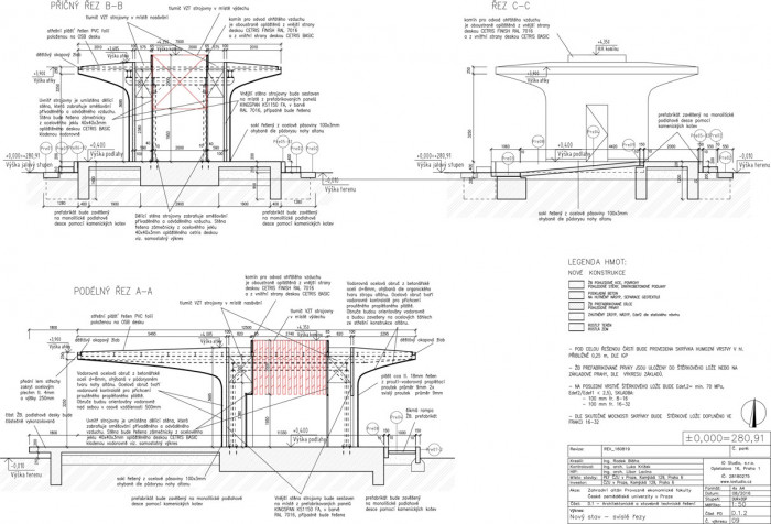
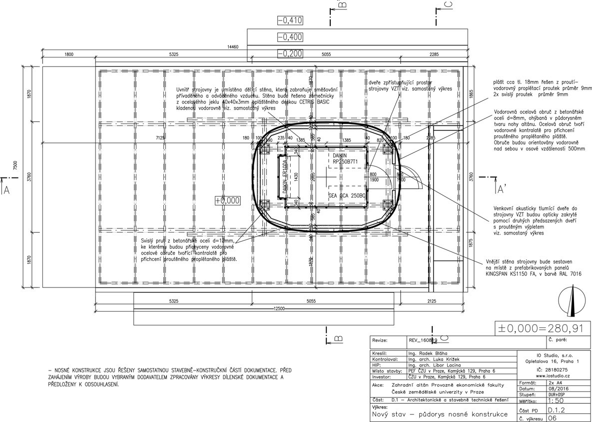
Tvarové a materiálové řešení podesty altánu navazuje na architekturu námi navrženého atria, tedy na architekturu 60tých let min. stol. a podesta včetně schodiště je zrealizována z monolitického pohledového železobetonu. Organicky tvarovaný plášť realizovaný z proutěného výpletu se již odkazuje na aktuální architektonické proudy. Altán stojí na místě původní strojovny VZT sloužící k chlazení přednáškového pavilonu. Z důvodu její příliš velké hlučnosti jsme přišli s nápadem opláštění strojovny zvukovým filtrem, který jsme z důvodu velkého rozměru tlumiče a vizuálního vzhledu VZT jednotek umístili do středové nohy altánu.
Zahradní altán je navržený jako architektonicky výrazný soliterní objekt s vnitřní ocelovou svařovanou nosnou konstrukcí o půdorysném rozměru 7,5 m x 12,5 m výšky 3,95 m uložený na železobetonové podestě o půdorysném rozměru 7,5 m x 14,3 m. Altán je na všech stěnách a podhledech opatřen vrbovým proutím, které jsou proplétané horizontálně z proutků průměru cca 9mm. Podlahová deska je z drátkobetonu v tloušťce 200 mm. Součástí podlahové kce jsou prefabrikované ŽB prvky, které jsou provedeny v nejvyšší kvalitativní třídě pohledového betonu. Střešní plášť altánu je řešen jako lepená PVC měkčená folie šedé barvy, která je uložena v minimálním spádu na nosnou rámovou ocelovou kci.
Druhotným čistě funkčním účelem výstavby altánu je vytvoření akustické bariéry pro stávající vnějších chladicích jednotek příslušejících k budově poslucháren PEF. Z toho důvodu byla navržena dvojice obvodových stěn zajištující rozdělení přísunu chladného a odvodu teplého vzduchu. Princip řešení spočívá v tom, že uvnitř vnitřní obálky jsou umístěny 3 chladící jednotky, které si odebírají chladný vzduch z meziprostoru mezi oběma obálkami a ohřátý vzduch vyfukují do vnitřního prostoru odkud stoupá volně vzhůru skrze akustické kulisy. Přívod chladného a odvod ohřátého vzduchu je opatřen akustickými tlumiči, které zamezují šíření hluku z provozu jednotek do okolí a altán tak lze využívat i v době provozu těchto jednotek bez jakéhokoliv omezení.
- Autoři: Luka Križek, Radek Bláha
- Ateliér: IO Studio
- Země: Česká republika
- Město: Praha 6 - Suchdol
- Ulice, číslo: Kamýcká, 129
- PSČ: 16000
- Realizace: 2017
- Zastavěná plocha: 131.00m2
- Plocha pozemku: 2 000.00m2
Související projekty
Související architekti
Související ateliéry a firmy
Mohlo by vás zajímat















