Lenka Míková - Rekonstrukce usedlosti v Jižních Čechách

O venkovské chalupy je v posledních letech čím dál víc zájem, vedle snahy vyvážit rychlé tempo města souvisí i s touhou po něčem autentickém a tradičním. Paradoxně se ale stává, že až příliš dokonalá rekonstrukce a dnešní standardizovaná řešení tento žádaný charakter ve výsledku úplně vymýtí. Obecně je tedy výzvou, jak vyhovět současným nárokům na komfort a přitom udržet původního ducha stavby. A dá se vůbec navodit v případě, kdy se chalupa musela kvůli špatnému stavu (i přes všechnu snahu o zachování) téměř celá zbourat a postavit znovu? Do jaké míry má pak smysl opakovat to původní? Nakonec ani není až tak podstatné, co je staré a co nové - jde hlavně o to, jak působí výsledný celek...
V tomto projektu jsme hledali odpovědi skrz respekt k původní logice stavení a použití tradičních postupů. Naším cílem byla přirozenost spíš než dokonalé formální napodobení. Přírodní materiály jako dřevo, kámen a hlína a jejich ruční opracování vnáší do stavby nedokonalost, která se stává zásadním aspektem projektu. Návrh už od začátku bral v potaz nepřesnosti, měnící se tvar a postupné stárnutí…
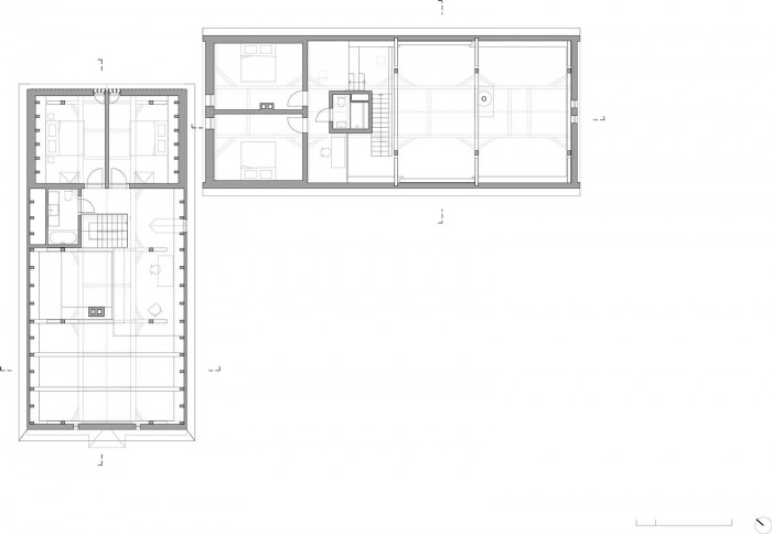
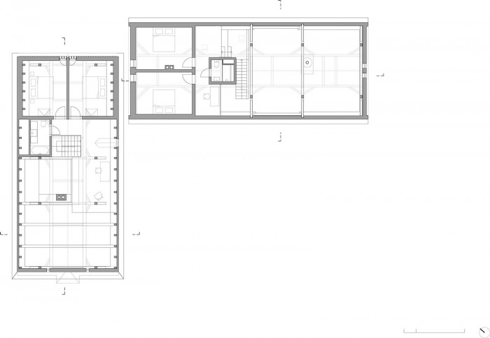
Původní usedlost stojící téměř na samotě zahrnovala dva domy umístěné do tvaru L - chalupu a stodolu, harmonicky posazené do svažité louky. Jejich soulad s okolím jsme se snažili nenarušit, proto obě stavby zůstaly zvenku víceméně v původní podobě, změny se dějí spíš uvnitř. Hlavní obytné prostory jsou otevřené až do krovu, aby vyniknul charakteristický prvek původního stavení - v chalupě černá kuchyně, ve stodole průhled skrz původní vrata. V obou je pak navíc vestavěný nový černý "komín", který v sobě ukrývá hygienické zázemí a podpírá schody do patra. Ve stodole se tyčí tato vestavba jako dominanta, v chalupě je naschvál nenápadná.
Dualita dvou domů se nese celým návrhem - jejich odlišný charakter a původní využití se promítají do nového provozu i celkového přístupu k rekonstrukci. Roubená chalupa je řešená jako hlavní dům pro majitele a proto pojatá víc tradičně, přestože se většina konstrukcí musela pro špatný technický stav nahradit. V duchu starých chalup zůstala naschvál tmavší, uzavřená a intimnější. Hlavní roli tu hrají tradičně opracované povrchy - tesané trámy a roubení, hliněné omítky, ručně štípaný šindel... Nové prvky, jako vložené patro nebo zádveří, se snaží být spíš nenápadné. Světnici dominuje velká pec s nahřívaným ležením, protože roubenka se má využívat celoročně.
Stodola je doplňkové stavení - slouží jako letní obývák, prostor pro hosty a technické zázemí. Tím je i samotné pojetí rekonstrukce víc uvolněné. Původní kamenné stěny zůstávají uvnitř odhalené, materiálově je doplňuje beton s otisky bednění na nové vnitřní stěně a překladech. Nad úrovní kamenných stěn jsou povrchy nabílené, aby tak vynikl původní krov a podpořil se celkově světlejší charakter stodoly. Hlavní prostor se nerušeně otevírá díky skládacím oknům ven na zahradu i louku za domem, velké prosklení ve štítu nabízí posezení s výhledem na staré stromy před ním. Pomyslné srdce domu tvoří otevřený krb na kameni z nedaleké stráně.
Celý proces trval přes čtyři roky a i když se během té doby návrh ještě různě vyvíjel, jeho podstata se časem možná ještě víc vytříbila. Zásadní podíl na výsledku má především osvícený a tvůrčí investor i stavbyvedoucí, neboť většina stavebních prvků a vnitřního vybavení byla řešena a vyráběna na míru - občas podle lidové moudrosti, občas i jako experiment...
- Autoři: Lenka Míková
- Spolupráce: Ivan Boroš
- Země: Česká republika
- Město: Jižní Čechy
- Datum projektu: 2013
- Realizace: 2017
- Užitná plocha: 365.00m2
- fotografie: BoysPlayNice
Související projekty
Související architekti
Mohlo by vás zajímat



















































