JRA - Rekonstrukce vily Oldřicha Starého

Příběh domu, který pro vrchního radu ministerstva železnic navrhl architekt Oldřich Starý v roce 1929 kopíruje v dalších letech poválečný osud naší země. Po únoru 1948 byla vila zabrána a rozdělena na několik menších bytů. Ze stavu před rekonstrukcí nebylo přesně jasné, z jakých dob tyto jednotlivé zásahy byly. Z původních interiéru se dochovalo málo, naštěstí z venku zůstala vila v nezměněné podobně. Dům byl téměř 30 let opuštěný.
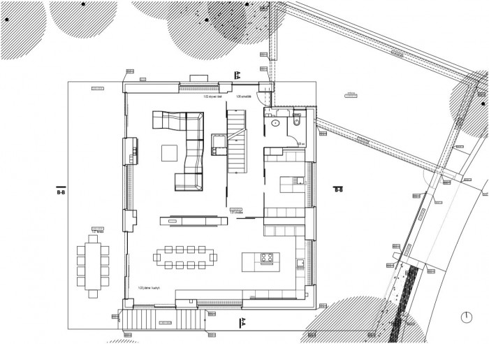
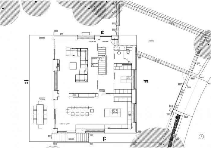
Do vnější podoby domu jsme nechtěli výrazně zasahovat, cítili jsme respekt k návrhu Oldřicha Starého. Pár drobných změn fasáda a okolí ale přece jen doznaly, a to hlavně kvůli přizpůsobení domu současným potřebám. Přemístili jsme hlavní vstup do domu, do místa původní garáže, nová větší garáž byla přistavěna vedle domu a je zasazena do terénu zahrady. Na zahradní fasádě zůstala všechna okna v původních pozicích, bylo zde doplněno pouze jedno okno, ze kterého je další vstup do zahrady.
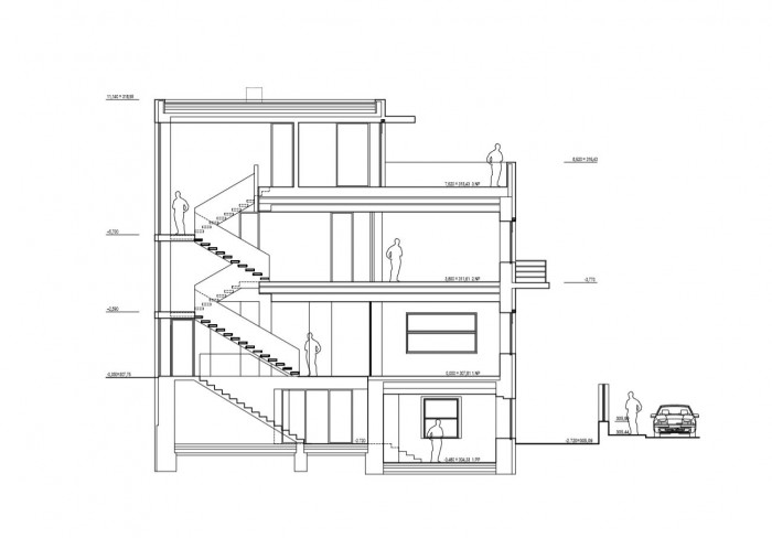
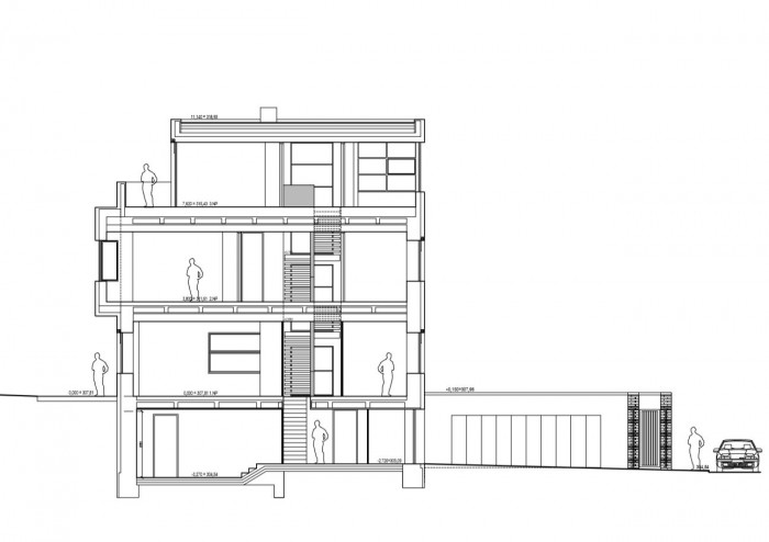
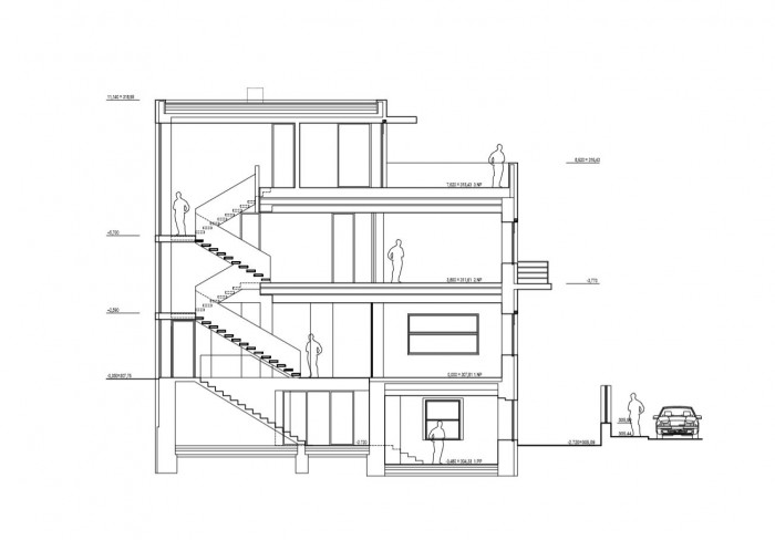
Okna, skleněné plochy a průhledy skrz dům ven jsou jedním z hlavních témat rekonstrukce. Původní okna nejsou určitě nepodobná vlakovým oknům kvůli povolání prvního majitele vily. Všechna okna měla velmi subtilní rámy. Bylo pro nás velmi důležité ponechat oknům při výměně tuto subtilnost. Po dlouhém hledání jsme našli na třech místech Evropy výrobce, kteří byli schopni, vysouvací, subtilní posouvací okna a pevné tenké ocelové skleněné prosklení vyrobit. Důležité pro nás byla práce s ornamentálních sklem, které bylo ve vile původně použito. Sochařské schodiště protíná vertikálně celý dům. V původní prádelně a sušárně na střeše vznikla „master bedroom“s koupelnou, terasou a neskutečným výhledem na Pražský hrad.
- Ateliér: JRA Jaroušek.Rochová.Architekti
- Země: Česká republika
- Město: Praha
- Datum projektu: 2011
- Realizace: 2014
Související projekty
Související ateliéry a firmy
Mohlo by vás zajímat


















