Knihovna pro gymnázium Třeboň - 111 architekti
Do stávající sborovny vkládáme modulové prvky knihovny tak, aby jejich tíha byla přenesena do nosné stěny o patro níže. Vzniká dvoupatrová knihovna o 5 modulech, která zaplňuje celou stěnu o rozměrech 7450 × 4030 mm. Dvoupatrová knihovna se do světlé výšky místnosti vejde tak akorát, podchozí rozměr činí 1985 mm (typický rozměr výšky průchodu dveřmi je 1970 mm). Přístup do vrchního patra knihovny je zajištěn posuvnými ocelovými schůdky, které jezdí v podélném směru uchycené v kolejnici. Kapacita knihovny se předpokládá 4.300 svazků (+ 500 svazků v knihovničce u pracovního místa knihovníka).
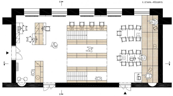
Odstraněním příčky mezi sborovnou a učebnou odstartuje druhá etapa – velkorysá školní knihovna pro 10.000 svazků. Jelikož už v první etapě navrhujeme knihovnu jako skládačku modulových prvků, ve druhé etapě můžeme snadno navázat na již realizovanou část. Vzniká dvoupatrová knihovna o 16 modulech, do soklu však musíme zabudovat nosník, jež roznese celou tíhu knihovny přes nosné stěny v přízemí. Přístup do vrchního patra knihovny je zajištěn dvěma schodišti, které jsou tentokrát součástí konstrukce a celá knihovna se tak stává přístupnou (a průchozí) nejen pro knihovníka, ale i pro studenty. V patře doplňujeme knihovnu o skleněné zábradlí. Kapacita knihovny se předpokládá 10.000 svazků (+ 500 svazků v knihovničce z druhé strany kuchyňky). Konstrukce knihovny pojímá také 4 studijní místa – oddělené soukromé boxy.
Novým důležitým prvkem celého prostoru knihovny se stává mobilní pobytové schodiště, které má ve svých stupních zabudovaný skrytý úložný prostor pro nábytek – stoly a židle. Pobytové schodiště je konstrukčně rozděleno na 4 pohyblivé segmenty. Spolu s pracovními stoly vytváří místo pro pobývání studentů, kteří si mohou vybrat, jaký způsob sezení jim právě přijde nejlepší. Schody se stávají neformální čítárnou, umožňují velkou variabilitu dějů.
- Autoři: Barbora Weinzettlová
- Ateliér: ateliér 111 architekti
- Země: Česká republika
- Město: Třeboň
- Realizace: 2017
Související projekty
Související architekti
Související ateliéry a firmy
Mohlo by vás zajímat