Kuba & Pilař architekti - Čtyři domy v jednom

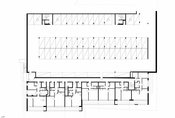
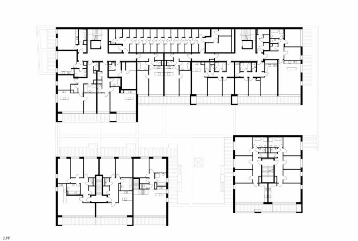
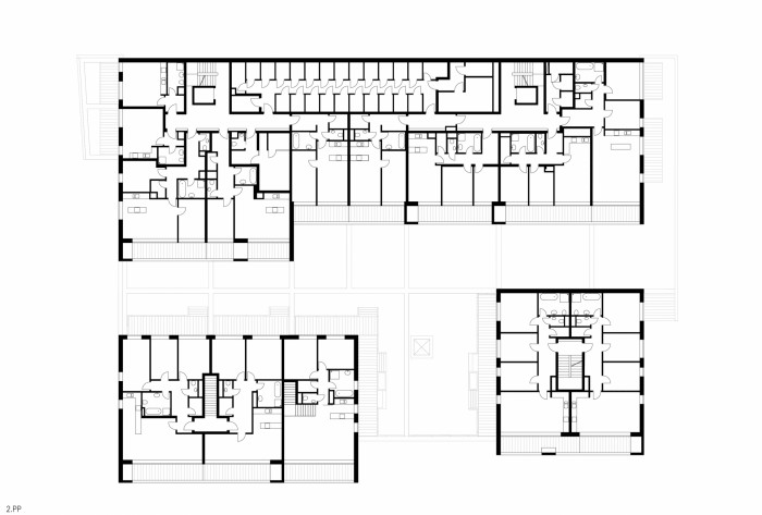
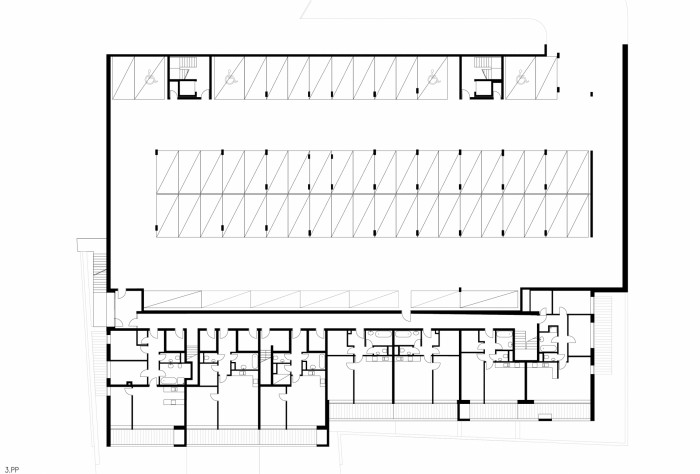
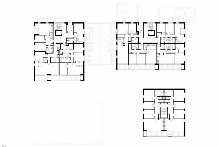
Stavba se nachází v klidné rezidenční Masarykově čtvrti, plné kvalitní předválečné funkcionalistické architektury. Hmotové a prostorové řešení vychází z charakteru a proporcí nejbližší zástavby. Kompozičně je tvořená čtyřmi různě velikými kvádry – viladomy – které vystupují nad terén ze společné podzemní podnože. Soubor staveb tak přirozeně zapadá do svého okolí.
Pozemek s jiho-západní orientací a atraktivním výhledem přes areál Brněnského výstaviště na Kohoutovické lesy byl důvodem k maximální orientaci a otevření obytného souboru tímto směrem. Viladomy klesají po svahu, jejich výška se snižuje směrem k jižnímu cípu parcely. Dvojice viladomů podél ulice Neumannova má čtyři nadzemní podlaží a jedno podzemní, které propojuje schodišťová hala s výtahy. Dva spodní viladomy mají tři a dvě nadzemní podlaží, a navazují tak svým menším objemem na vily podél spodní část pozemku.
Mezi chodníkem ulice Neumannova a horními viladomy je navržen polosoukromý pobytový prostor s posezením. Na střeše parkovací podnože mezi jednotlivými viladomy je soukromý vnitroblok se zahrádkami bytů. Oddělené jsou nízkými živými ploty – gabionovými koši osázenými habry. Soubor staveb je provedený jako kombinovaná zděná a železobetonová konstrukce. Fasády jsou obloženy keramickým páskem. Kontrastem ke strukturovanému povrchu pásků jsou hladké plochy pevných a posuvných panelů z hliníkového plechu. Podlahy společných prostorů, schodišť a obklady zádveří vstupů jsou provedeny z litého teraca. Na stropech, schodištích a výtahových šachtách je přiznaný pohledový beton. Jednotícím prvkem celé stavby je koncepce zeleně, která se bude časem uplatňovat stále více.
- Země: Česká republika
- Město: Brno
- Ulice, číslo: Neumannova 578/17
- Datum projektu: 2018
- Realizace: 2020
- Užitná plocha: 3 316.00m2
- Zastavěná plocha: 3 322.00m2
- Plocha pozemku: 4 036.00m2
Mohlo by vás zajímat





























