Létající inženýři - Resort Eisgrub

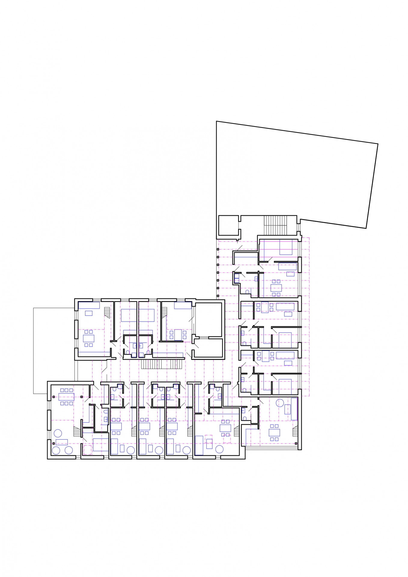
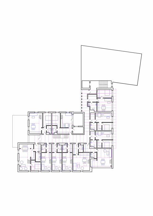
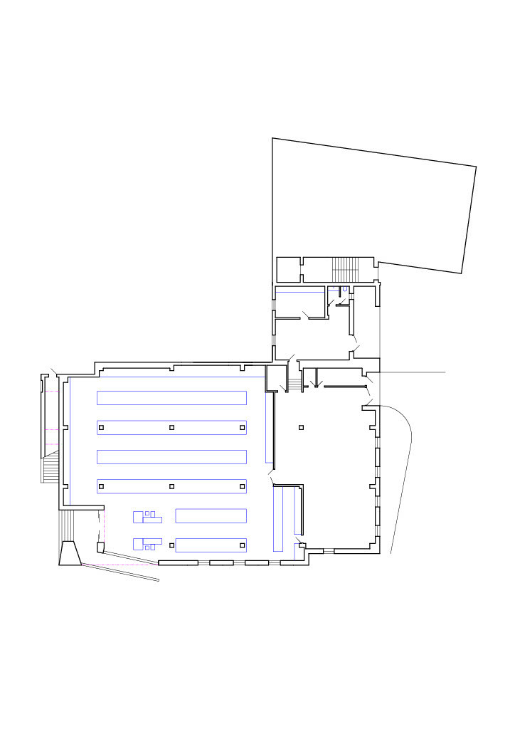
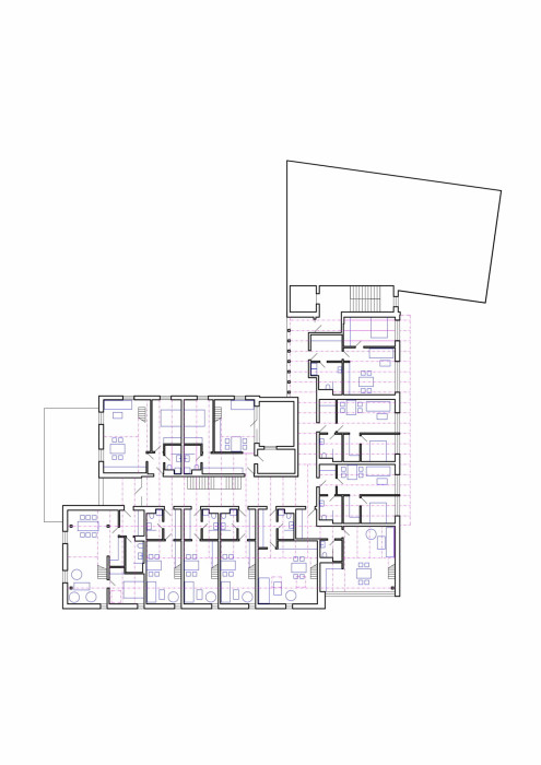
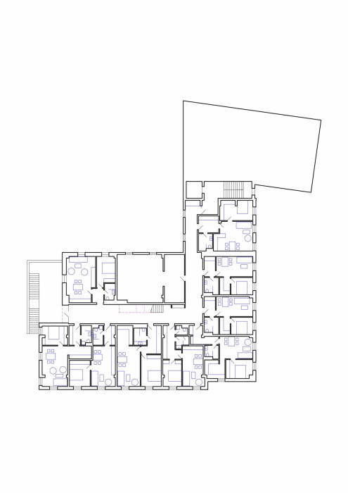
Rekonstruovaný soubor budov s původním normalizačním tvaroslovím se nachází v historickém centru města Lednice na významné pozici v již ustavené urbanistické struktuře. Po rekonstrukci je v něm samoobsluha a dvacet bytů apartmánového typu.
Orientován je do Zámeckého náměstí i do veřejného prostoru se sochou Jana z Nepomuku ve styku ulic Pekařská, Mikulovská, Valtická, Břeclavská, který má rovněž formu náměstí. Nový předprostor v místě původního a odbouraného bloku schodiště tvoří nový styčný bod obou náměstí.
Odbouráním schodiště a části jednoho traktu ve 2. NP původního nákupního střediska byl vyrovnán nepoměr objemů obou původních staveb nákupního střediska a pošty. Tím vznikla hmotová nárožní figura se dvěma koncovými štíty a střední nižší částí.
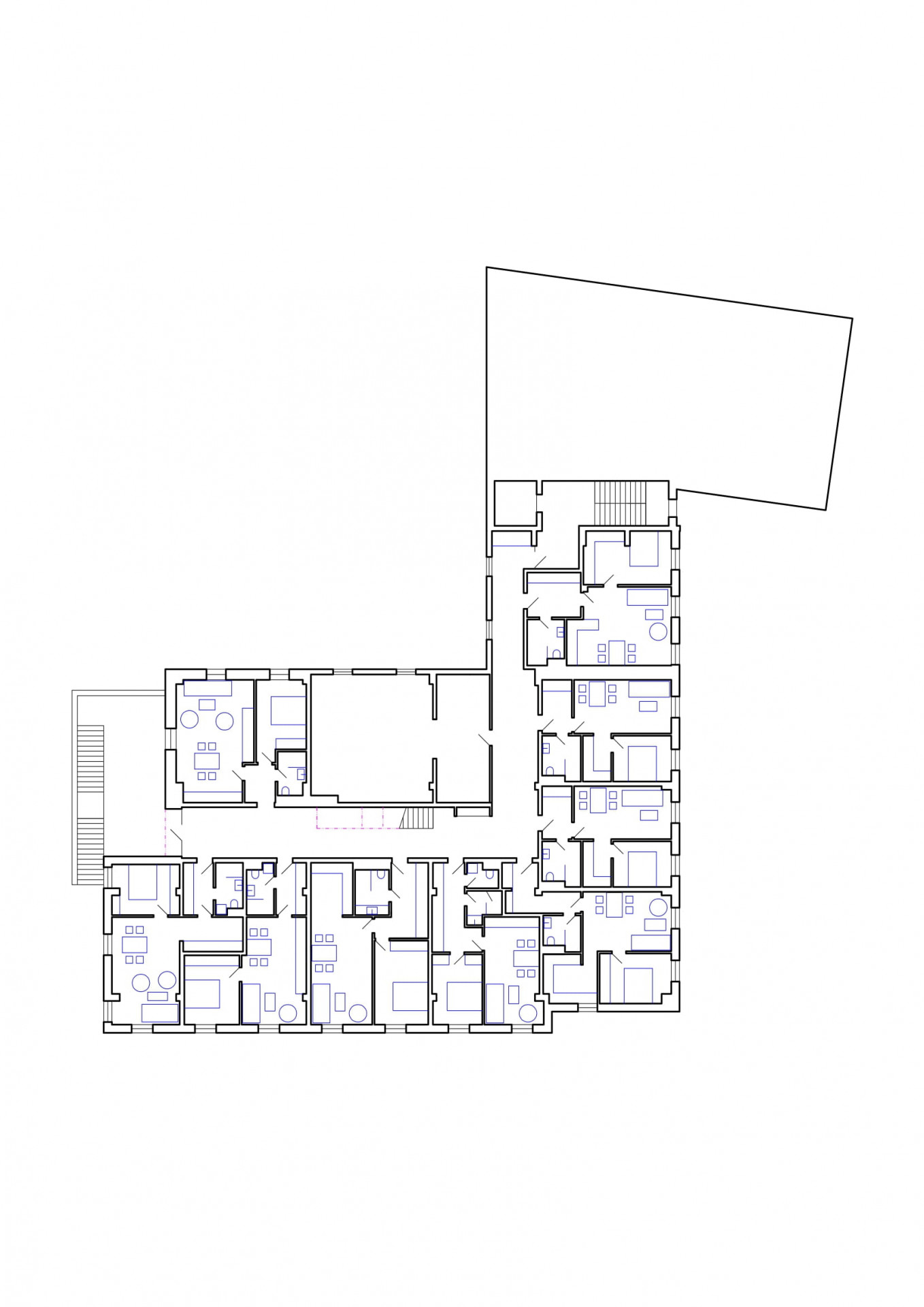
Nadstavbou je objekt formován do archetypálních tvarů se sedlovou střechou, stavba je rozdělena na uliční objekt a dvorní křídlo. Tím jsme docílili úpravy měřítka budovy a jeho přiblížení okolním stavbám. Použili jsme klasické materiály jako hladká či vzorovaná omítka a pálená krytina. Ze strany zásobovacího dvora má podkrovní nadstavba soudobý výraz. Parkování je před domem i ve dvoře.
- Země: Česká republika
- Město: Lednice
- Ulice, číslo: Břeclavská 368
- PSČ: 691 44
- Datum projektu: 2017
- Realizace: 2020
- Užitná plocha: 2 059.00m2
- Zastavěná plocha: 804.00m2
- Plocha pozemku: 1 051.00m2
- Spolupráce: Ing. Michal Kolář, Smart-projekt CZ
Mohlo by vás zajímat



















