Malý Chmel, AFF Architekten - Centrum současného umění a architektury v Českých Budějovicích
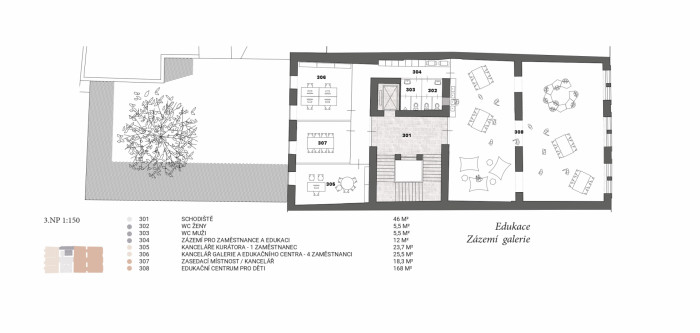
Řešení parteru vychází ze stávajícího stavu, vstupní chodbu nahrazujeme středovou pasáží, která vytváří veřejný prostor inspirovaný průchodem mezi ulicemi Krajinskou a Českou. Pasáž prochází celou hloubkou domu a zpřístupňuje dvůr, který zapojujeme do dění v domě. Na pasáž je napojeno stávající schodiště. V parteru v souladu se zadáním navrhujeme služby veřejnosti a informační centrum. „Room for an art“ je místnost pro umělecké instalace, která bude sloužit pro prezentaci vystavujících v galerii na úrovni parteru domu – důstojné entrée galerie.
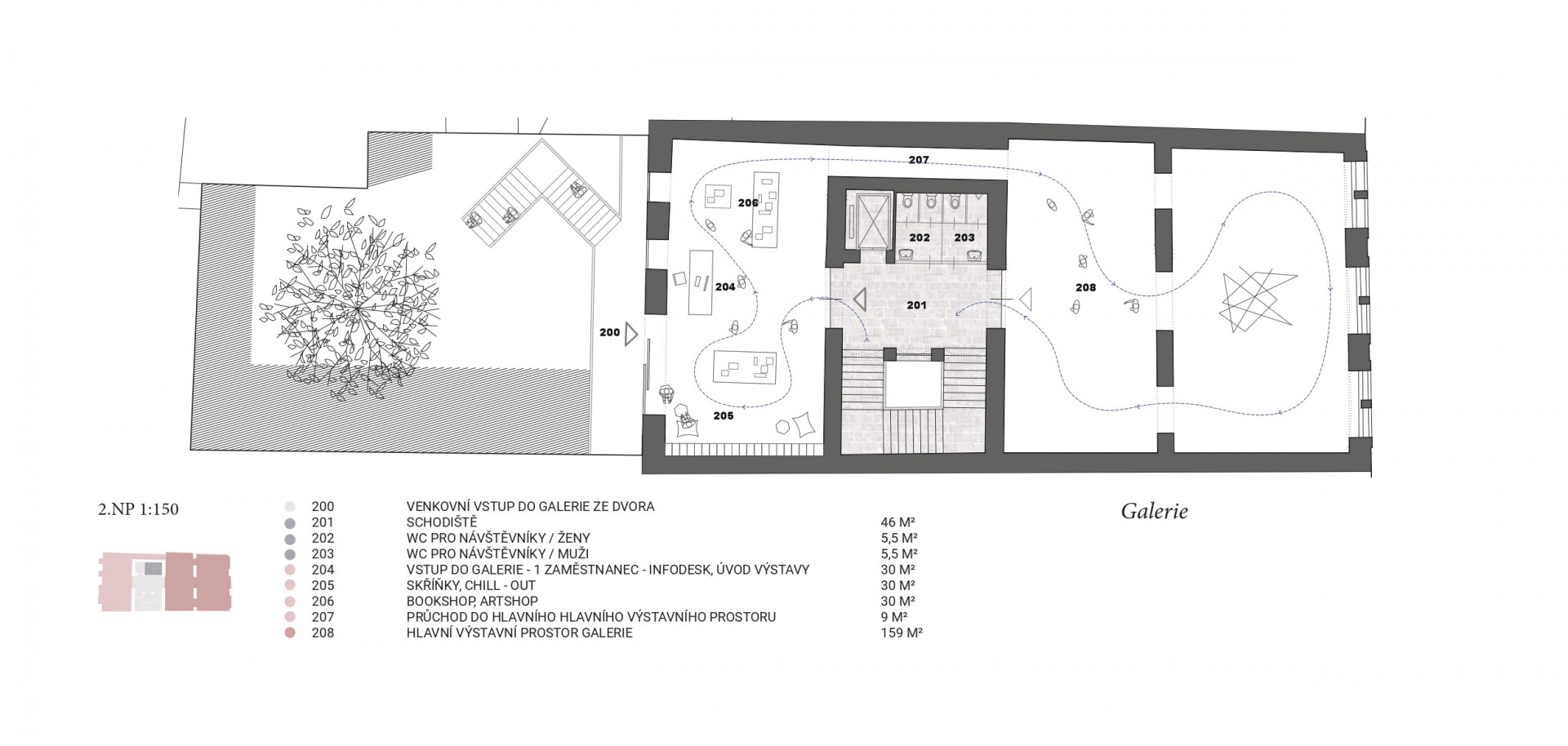
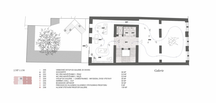
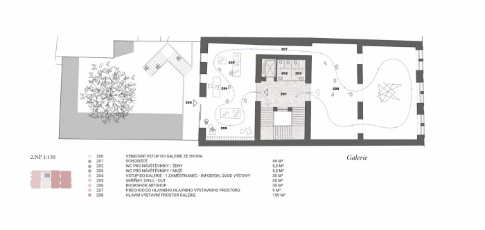
Navrhujeme rozšíření galerie. K současnému prostoru přidáváme i zbytek patra – jižní prostor s okny do dvora. Tato část bude sloužit jako vstupní prostor s bookshopem, artshopem, skříňkami a dále sem bude ústit i nové schodiště ze dvora umožňující alternativní přístup do galerie. Cílem je vytvořit z části do náměstí nerušený výstavní prostor. Průchod je navržen prostorem za zázemím – převýšená chodba jako přechod do nerušeného světa výstavy. Návštěvník pak může galerii opustit stávajícími dveřmi nebo se vrátit do vstupní části.
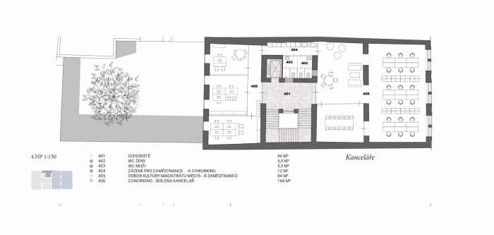
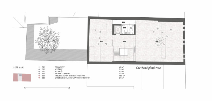
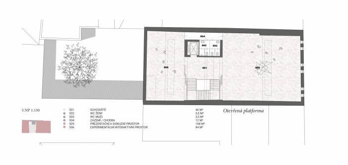
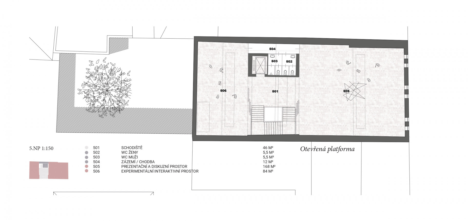
Otevřená platforma je jedinečný prostor pod novou střešní krajinou s multifunkčním využitím - rozšířením výstavního prostoru, galerie pro mladé umělce, diskuze a přednášky, výstavy studentských architektonických projektů nebo společenské akce s výhledem na město. Dvůr navrhujeme otevřít pasáží do náměstí a skrze pobytové schodiště propojit s galerií. Předpokládáme také, že bude dále sloužit restauraci a stane se atraktivním místem pro kulturní akce. Navrhujeme úpravu povrchů v návaznosti na úpravy domu.
Severní fasáda do náměstí Přemysla Otakara II. je beze změny, navrhujeme pouze odstranění nevzhledných poutačů. Ve střešní rovině navrhujeme zrušeních střešních oken a jejich nahrazení světlíkem v nejvyšší části. Jižní fasáda je snížena o jedno podlaží, okna jsou zvětšena až na úroveň podlahy a je navržený nový železobetonový balkon se schodištěm – tato konstrukce je vynášena novou železobetonou stěnou.
- Ateliér: Malý Chmel
Související projekty
Související ateliéry a firmy
Mohlo by vás zajímat