Malý Chmel - ZŠ Nezamyslice

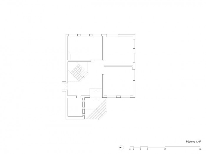
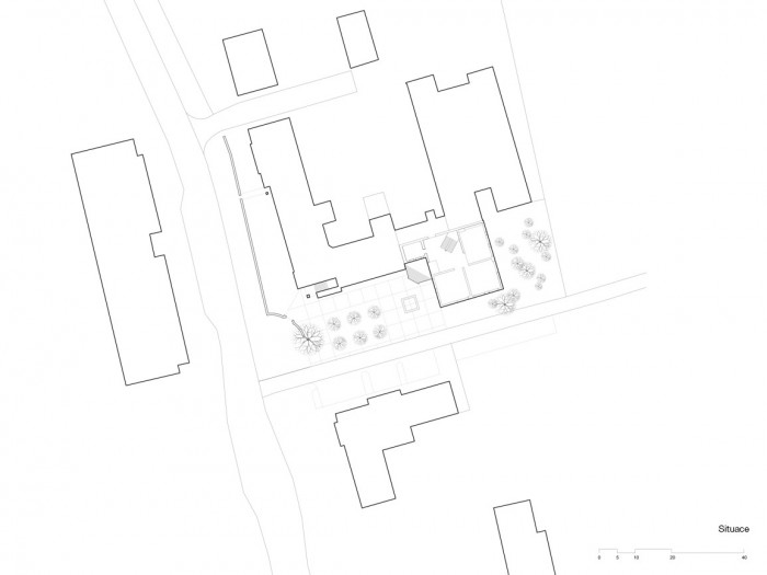
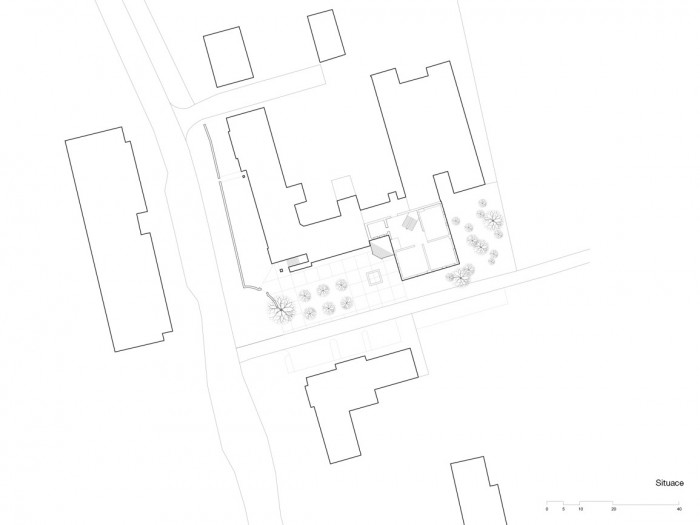
Nová budova základní školy v Nezamyslicích je třípodlažní přístavbou ke stávající školní budově, nacházející se v sousedství významných obecních budov – mateřské školy, kulturního a sportovního sálu a hasičské zbrojnice. Tyto stavby vymezují území, které nová školní budova z východní strany dotváří a částečně uzavírá. V nové budově je situován hlavní vchod školy s venkovním nástupním schodištěm. Limity maximálního vnějšího objemu přístavby školy byly dány již před začátkem navrhování. Byla vymezena půdorysná stopa, maximální výška budovy a výška jednotlivých podlaží, která navazují na stávající školní budovu.
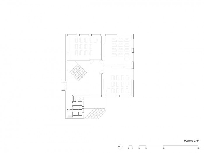
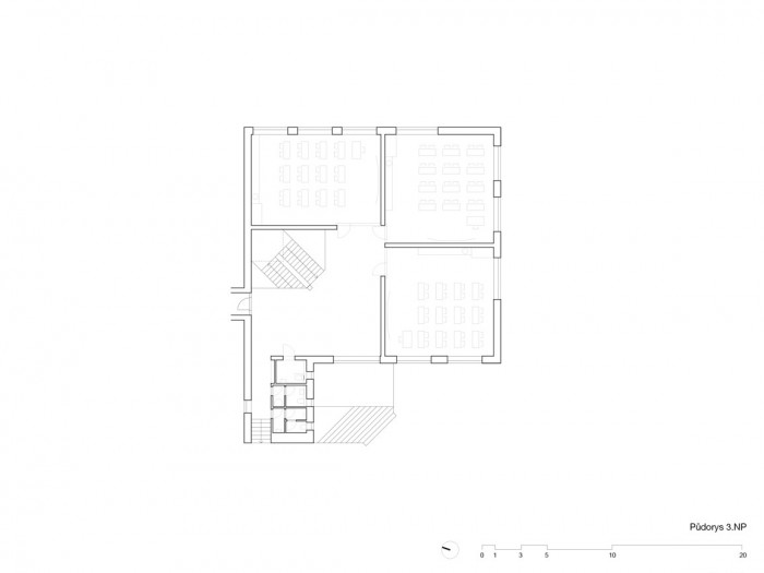
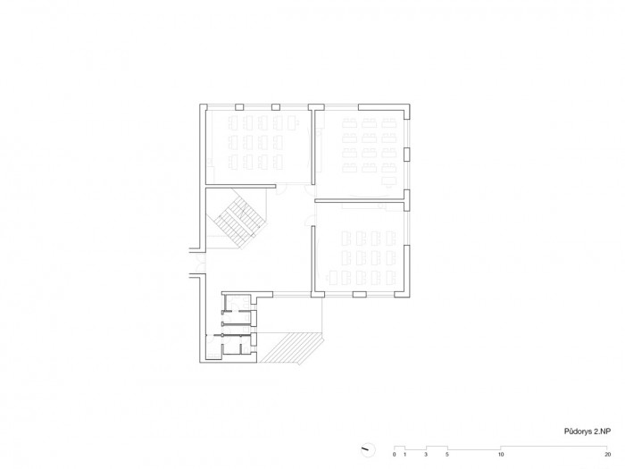
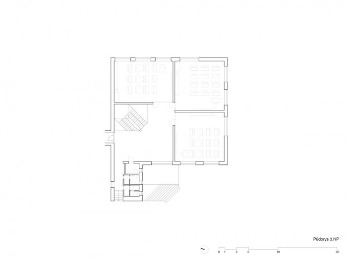
Do tohoto objemu bylo potřeba navrhnout učebny, přestávkové a komunikační prostory. Řešení tohoto rozdělení bylo provedeno s nejmenším možným množstvím architektonických dělících elementů - čtyři místnosti každého podlaží jsou odděleny čtyřmi stěnami, díky čemuž se bylo možné vyvarovat chodbám. Stěny z plných pálených cihel mají funkci nosnou, prostorově a aktusticky dělící a tepelně akumulační. V přízemí mají tloušťku 45 cm, v horních podlažích vzhledem k menšímu zatížení 29 cm. V místě jejich pomyslného průniku, ve středu budovy, se tyto zdi nesetkávají, což zajišťuje přístup denního světla doprostřed dispozice budovy a zároveň je těchto „mezer“ využito pro vstupy do učeben, jejichž pozice koresponduje s orientací učeben a jejich potřebě osvětlení zleva a s tím souvisejícím umístěním tabule v místnosti. V přízemí jsou tyto mezery prázdné nebo z čirého skla, což dává vyniknout elementární architektuře čtyř stěn a komunikačně a vizuálně propojuje jednotlivé místnosti. Konstrukční provázanost všech stěn zajišťuje železobetonová stropní deska, která díky absenci stropních podhledů rovněž umožňuje její tepelně akumulační funkci.
Důležitým bodem návrhu byla úvaha nad podobou učeben. V budově přístavby se nachází čtyři čtvercové učebny nabízející variabilnější uspořádání výuky, oproti klasické podobě podlouhlé učebny s jednostranným osvětlením zleva. Čtvercové učebny jsou dvoustranně osvětleny; standardně z levé strany, ale taktéž z pravé části zadní strany, což přináší jiný typ prosvětlení – nedirektivní a vstřícnější vůči levákům. Významným činitelem v podobě a orientaci učeben je pozice a exponovanost přístavby. Novostavba přiléhá severní stranou ke stávající budově, je tedy orientována na osluněné strany – jih, východ a západ – což je rizikový faktor vzhledem k nežádanému přímému slunečnímu světlu a s tím souvisejícímu přehřívání budovy a učeben. Učebny se v každém podlaží „otáčí“ kolem světových stran. Východní učebna je klasicky jednostranně osvětlená, přímé sluneční světlo dopadá pouze ráno. Čtvercové učebny jsou orientovány na jihovýchod a jihozápad. Použitím venkovního stínění spolu s dvojstranným osvětlením může být směr a intenzita světla variována. Velikost a celková podoba oken v sobě kloubí několik protichůdných požadavků; menší okna by neumožňovala dostatečné prosvětlení, větší plocha by zase způsobovala přehřívání.
Součástí architektonického záměru bylo použití solidních a zároveň ekonomicky dostupných stavebních materiálů, které zajistí důstojný a příjemný prostorový kanvas pro aktivity dětí. Bylo užito plných pálených cihel, železobetonu, profilovaného skládaného skla, přírodního linolea a teracové dlažby. Realizace byla uskutečněna lokální stavební firmou a z valné části lokálními řemeslníky.
- Autoři: Petr Malý, Miroslav Malý, Zdeněk Chmel, Miroslav Chmel, Gabriela Sládečková, Jiřina Bubeníková
- Ateliér: Malý Chmel
- Země: Česká republika
- Město: Nezamyslice
- Ulice, číslo: 1. máje, 234
- PSČ: 49826
- Datum projektu: 2016
- Realizace: 2017
Související projekty
Související architekti
Související ateliéry a firmy
Mohlo by vás zajímat






















