Marcela Steinbachová, Vít Holý - Náměstí města Benešova

Urbanistické a architektonické řešení
Dvojice náměstí tvoří jednotnou plochu sjednocenou povrchy a otevřenou k významným domům. Sdílený prostor poskytuje velkorysou a přehlednou plochu pro různorodé využití, pro veřejný a živý každodenní život (kulturní i sociální), pro všechny generace. Masarykovo náměstí je nově důstojným reprezentačním i rekreačním prostorem dostatečné velikosti, přehledným od radnice až ke kostelu. Řady stromů definují tvar prostoru a nabízejí stín pro odpočinek s výhledem na budovy. Malé náměstí, lemované jednou řadou stromů, se znovu stává náměstím s průhledem na secesní muzeum. Okraje jsou vymezeny pro komunikaci, zásobování a parkování. Náměstí oživuje i nová dvojice radničních domů, městská hala v proluce a stávající sousední dům. Plocha umožňuje umístění dvou podií i možnost využívat krytý prostor pod stavbou v proluce (např. venkovní kryté jevište i hlediště) či nového městského společenského sálu (městská hala) ve zvýšeném patře. Předpokládáme realizaci rekonstrukce po etapách.
Zeleň a klidové zóny
Stromy jsou navrženy téměř podél všech ploch náměstí, rovnoběžně s méně významnými domy, na jedné straně, aby byla zachována celistvost a průhledy na prostor. Doplněním části lip amerických vznikla velkorysá alej s pevným posezením. Dvůr nabízí klidné a intimní posezení pod stromy (jírovec maďal), s travnatými a trvalkovými záhony, vodními zdroji a herními prvky. Další zeleň nabízí plocha vedle kostela a za knihovnou (předpokládaná renovace dobových ploch). Klidové zóny či posezení nabízí prostor pod novou městskou halou či loubí polikliniky, možnost posezení mladší generace umožňují žulové schody, které vyrovnávají výškové rozdíly na horní ploše náměstí.
Vodní, umělecké, herní a rekreační prvky
Vodní prvky slouží k relaxaci, občerstvení i k vodním hrám pro děti (vodní trysky, vodní plochy ve dvoře a v rozích náměstí umístěné objekty s fontánou). Další objekt (např. světelný) je umístěn před muzeem. Prostor doplňují dětské prvky (hřiště, trampolíny) a další prvky (petangue, ping pong, obří šachy).
Povrchy
Jednotný povrch pro většinu ploch tvoří maloformátová žulová dlažba 10x10cm (historicky žulová vyvýšenina), náměstí je z kostek v řádkách, komunikace do vějíře, oddělení tvoří žulové pásy. Před domy jsou (dle historických fotografií) mozaikové „vzorované koberce“ s ornamenty (7 vzorů podle významu budov), podobně v současnosti řešeno před radnicí. Parkovací místa z žulových kostek jsou kladeny do řádků (předpoklad postupného úbytku parkování). Parkování předpokládáme řešit vybudováním parkovacího domu v kombinaci se stáním v přilehlých ulicích (viz schéma). Povrchy jsou sjednocené do jedné roviny a plocha je bez výškových přechodů vyjma žulových schodů. Na náměstí je možné umístit průhled do podzemí. Materiály jsou standartní a civilní, trvanlivé, bezčasé, ale i dostatečně reprezentativní. Nejsou historizující.
Ostatní
Osvětlení (fasádní i stojací) i mobiliář (pevné atypické lavičky kolem stromů se stoly, podél vybraných budov, sezónní mobilní lavičky, stojany na kola, koše) odpovídá celkovému řešení a je v souladu s manuálem města. Předzahrádky jsou navrženy jako nekryté a mobilní s kultivací parteru i stínění.
Dopravní řešení a parkování
Náměstí je sdíleným prostorem pro všechny účastníky. Komunikace jsou vyznačeny použitými materiály a značením s omezenou rychlostí. Návrh nepředpokládá zvýšení transitní dopravy a zachovává stávající vedením městské dopravy (bus) i turistické trasy a cyklostezky (bez odlišení povrchu). Zůstává jednosměrná průjezdnost a zásobování prostoru, nově je umístěna zastávka vláčku a stojany na kola. Předpokládáme postupné odstraňování parkovacích míst v horní části (parkovací místa v docházkové vzdálenosti) a vybudování parkovacího domu. Parkování je umístěno na horní ploše náměsti, v prostoru Malého náměstí i ve spodní části (viz. schéma) a to převážně pod stromy. Před poliklinikou a za radnicí jsou stání pro invalidy a pro rodiče s dětmi.
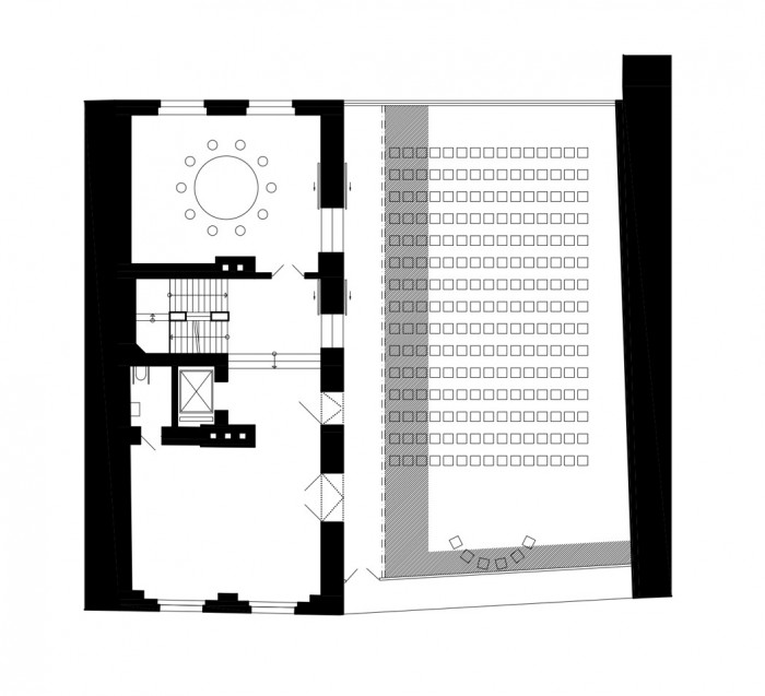
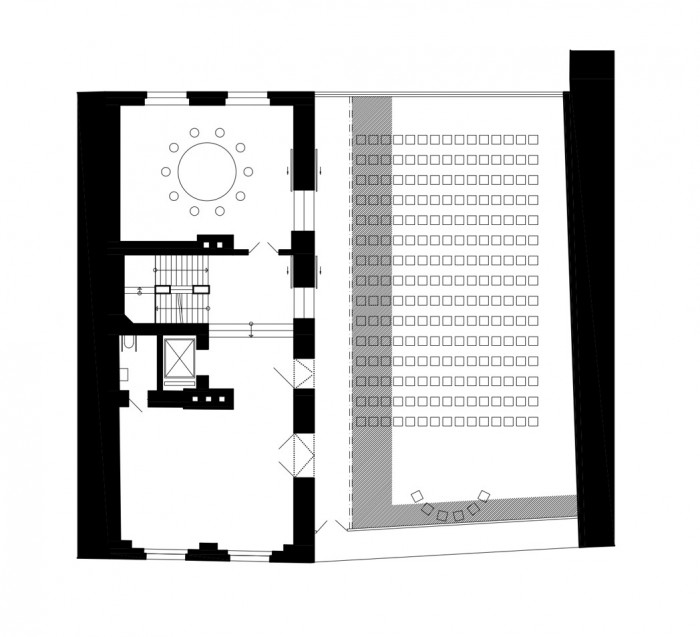
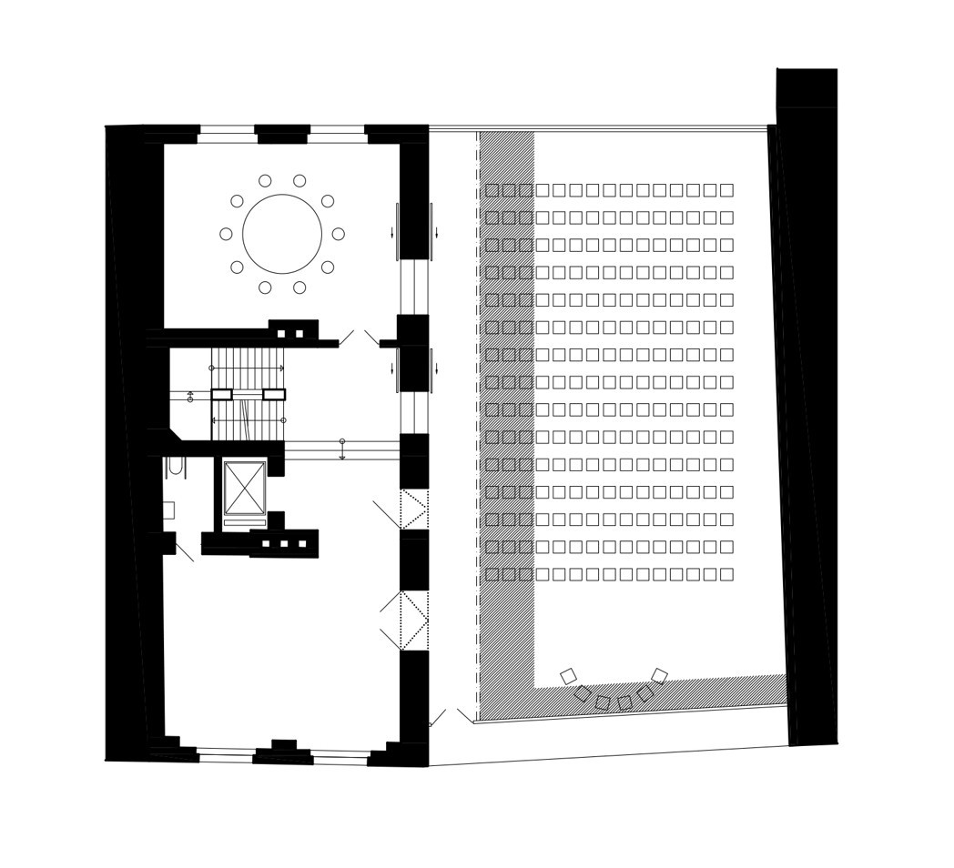
Proluka, městská hala
Dvojice radničních domů vrací na náměstí ztracenou noblesu ve formě současné multifunkční městské haly v proluce, propojené se sousední budovou turistického centra. Dvojice domů navazuje na řešení současné radnice, stávající dům poskytuje hale všechny obslužné funkce a nutné zázemí (foyer s kavárnou, komunikace, toalety, šatna a vstupy do sálu, na galerii a na balkon do náměstí). Předpokládáme jeho rekonstrukci interiérů či celkovou renovaci včetně fasád a možností nástavby inspirované dobovými fotografiemi). Nová „levitující“ městká hala je prázdný prostor ideálních rozměrů (shoe-box), vhodný pro koncerty (možnost vytvoření elevace), pro bály, konference, přehlídky, výstavy či burzy. Pod halou je vytvořen volný / průchozí a krytý prostor pro kavárnu či prostor pro kryté městské akce (podium a hlediště). Umístění haly do prvního patra umožnilo vytvořit velkorysý prostor pod ní a zároveň průchod a propojení dvora s plochou náměstí (v zimě uzavření mobilní prosklenou stěnou). Fasáda je navržena jako prosklená, stíněná kovovými perforovanými otevíratelnými panely s možností výhledu do náměstí z haly nebo z balkónu. Městská hala se tak stává součástí náměstí a náměstí součástí haly. Na fasádě je lehce naznačený ornament osmicípé hvězdy (jiná perforace). Konstrukce je ocelovo betonová. Střecha je pochozí, se zastíněnou terasou s výhledem do náměstí.
Hodnocení poroty
Návrh vytváří přirozená ohniska sociálního života na náměstí (vodní prvek, zázemí kulturních i společenských akcí, městské trhy i prostor pro relaxaci pod stromořadím). Současně vytváří místa pro podobné aktivity i v druhém plánu (vnitroblok špalíčku). Návrh úspěšně sceluje dva dosud prostorově oddělené celky Masarykova a Malého náměstí. Dobře pracuje s rozmístěním stromů (dvojřada na západní straně náměstí s využitím stávajících lip, dvojřada na jižní straně Masarykova náměstí, stromořadí před poliklinikou na Malém náměstí). Stromy ze tří stran rámují celek obou náměstí a přirozeným způsobem ho sjednocují. Návrh pracuje logicky i s individuální automobilovou dopravou, kterou umisťuje přirozeně na obvod celku obou náměstí při poliklinice, jižní i severní straně. Parkování je umístěno logicky a kapacitně odpovídá. Porota doporučuje umožnit jednosměrný a kapacitně omezený průjezd do Vlašimské ulice jako počátku významné městské radiály. Návrh úspěšně využívá stávajících kvalitních prvků: dlažby před budovou radnice a tento motiv inteligentně rozvíjí formou mozaikových „koberců“ před jednotlivými budovami.
- Autoři: Marcela Steinbachová, Vít Holý
- Ateliér: SKUPINA
- Země: Česká republika
- Město: Benešov
- Datum projektu: 2018
Související projekty
Související architekti
Související ateliéry a firmy
Mohlo by vás zajímat






















