Skupina - Třetí sál kina Světozor

Idea
Střídmý černo-bílý interiér doplňují barevné výjevy filmových scén v abstrahované podobě barevných filtrů používaných v kinematografii.
Popis projektu
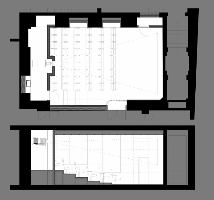
Rekonstrukce levého křídla klubového kina Světozor zahrnovala vestavbu nového kinosálu pro 51 diváků a obnovu foyer včetně toalet. Návrh navazuje na rekonstrukci hlavního sálu a pravého křídla z roku 2007 od stejných autorů, která prostor pojednává v černé a bílé doplněné o barevné výjevy filmových scén. V „novém“ levém křídle je koncept posunutý do abstraktnější roviny, konkrétní filmové scény jsou nahrazeny barevným osvětlením – atmosférickými filtry užívanými v kinematografii. Pomocí technologie LED RGB svítidel se tak návštěvník může ocitnout třeba v zažloutlé atmosféře filmu Limonádový Joe.
Nový sál nabízí vysoký standart akustiky. Vyváženého útlumu zvuku je dosaženo vhodnou kombinací akustických desek na bázi heraklitu s dřevitými deskami v podlaze a nikách sálu. Osvětlení je řešeno úspornými LED pásky. Technologie RGB umožňuje namíchat libovolnou barevnost světla v nikách. Elevace i umístění sedaček je optimalizováno dle křivky viditelnosti a poskytuje všem divákům výhled na plátno s dostatečnou rezervou.
- Autoři: Marcela Steinbachová
- Ateliér: SKUPINA
- Spolupráce: Vít Holý
- Země: Česká republika
- Město: Praha - Nové Město
- Ulice, číslo: Vodičkova, 791/41
- Realizace: 2018
Související projekty
Související architekti
Související ateliéry a firmy
Mohlo by vás zajímat




















