
Světlo jako symbol. Terezínské Muzeum ghetta rozzáří nová přístavba od Marcely Steinbachové a Stevena Holla
Ateliér architektky Marcely Steinbachové ve spolupráci se Stevenem Hollem zvítězil v soutěži na nové prostory Muzea ghetta v Terezíně. Historickou stavbu má doplnit výrazná polotransparentní přístavba.
Adéla Vaculíková , 28. 9. 2022
Terezín v budoucnosti dostane nový „symbol naděje“. Pevnostní město z doby vlády Josefa II., které se do globálního povědomí zapsalo tragickými událostmi za druhé světové války, obohatí nová vrstva soudobé architektury. Vítězný návrh na přístavbu Muzea ghetta ateliéru Skupina Marcely Steinbachové vzešel ze soutěžního dialogu, kterého se dále účastnila studia Aoc architekti (4. místo), Loom on the Moon (3. místo), Plural (5. místo) a Žalský architekti (2. cena). Na projektu Steinbachová spolupracovala také se slavným americkým architektem Stevenem Hollem, se kterým se potkala u projektu sídla Společnosti Franze Kafky.
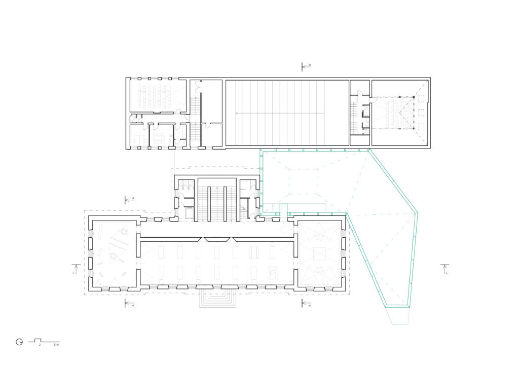
Klasicistně uniformní stavbu školy tak v budoucnosti rozzáří přístavba připomínající skleněný krystal. „Bývalá škola se v návrhu sama stává exponátem a je doplněna novým funkčním řešením, nově akcentujícím významné hodnoty i výzvy, ale i počty návštěvníků objektu,“ říká architektka Marcela Steinbachová. Cílem bylo vytvořit moderní expoziční prostor a také kvalitní zázemí pro návštěvníky.
Více k tématu
Křehké objemy muzejní přístavby efektně protne světelná věž podle návrhu Stevena Holla – amerického architekta, podle jehož návrhu vyroste v Ostravě nová koncertní síň. „Tower of Light je prostorem světla, jasným a expresivním vyjádřením tématu i provozních požadavků. Směřuje vzhůru, do nebe, za světlem, za nadějí. Nabízí ztišení, prostor pro vzpomínání i prostor pro vnímání a meditaci nad posvátností samotného života a sílou i křehkostí humanistických idejí,“ popisuje symboliku věže architektka Marcela Steinbachová za ateliér Skupina. Inspirací pro návrh věže byla kresba Měsíční krajina terezínského vězně-chlapce Petra Ginze.
Výrazná přístavba svým rozmanitým tvarem reaguje na střešní krajinu města. Postupně ji přitom přerůstá a dává najevo, že jde o stavbu s důležitým významem. Světelná věž zde nakonec funguje jako maják, který člověka procházejícího se po městě navede až do interiéru muzea. „Nový vstupní prostor nabízí velkorysý a dostatečně přehledný přístup do všech částí muzea včetně nové kavárny,“ dodává Marcela Steinbachová. Důležité je také použití transparentních materiálů, které mají symbolizovat otevřenost kulturní instituce veřejnosti.

V objektu se budou nacházet nové výstavní místnosti s jednoduchým mobiliářem. Střešní plášť bude z měděné krytiny, který dostane zoxidovanou zelenou patinu. „Tento materiál akcentuje významnou veřejnou stavbu podobně jako kostely, věže budovy pošty nebo městského úřadu, divadla a podobně,“ vysvětluje architektka.

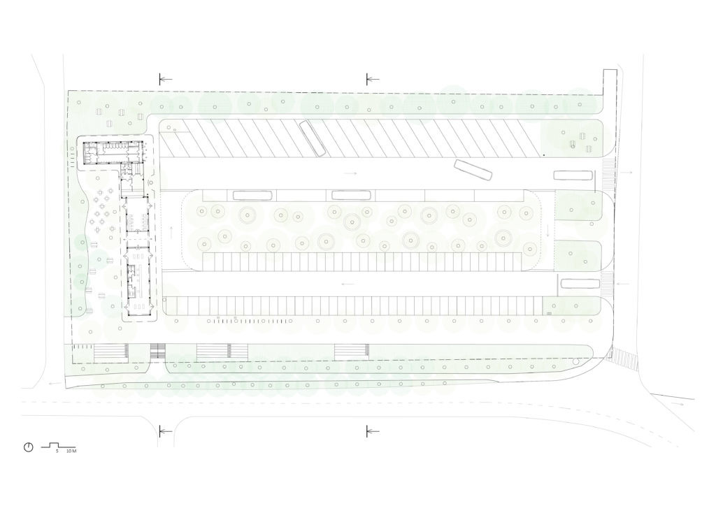
Součástí návrhu je i citlivá rekonstrukce budovy bývalé školy nebo úprava okolí muzea. Přibude například nové dlážděné náměstí nebo infocentrum. Prostorem pro odpočinek se zase stane muzejní zahrada napojená na kavárnu. „Park terezínských dětí je pojat jako uzavřený klidový prostor s květinovou loukou a minimalistickou vzpomínkovou vodní stěnou. V blízkém okolí muzea se opakuje motiv dlažby, která se směrem do trávníku volně rozpadá,“ říká Marcela Steinbachová na závěr.
- Autoři: Marcela Steinbachová, Steven Holl
- Ateliér: SKUPINA
- Spolupráce: Veronika Tichá, David Korecký, Vladimir Pavlovič, Terra Florida, Jan Mojka, Marie Harigelová
- Země: Česká republika
- Město: Terezín
- Projekt: 2022