mar.s architects - Rekonstrukce bývalého hotelu Měšťák

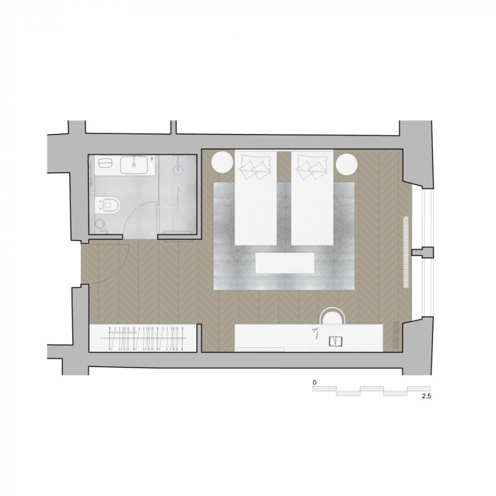
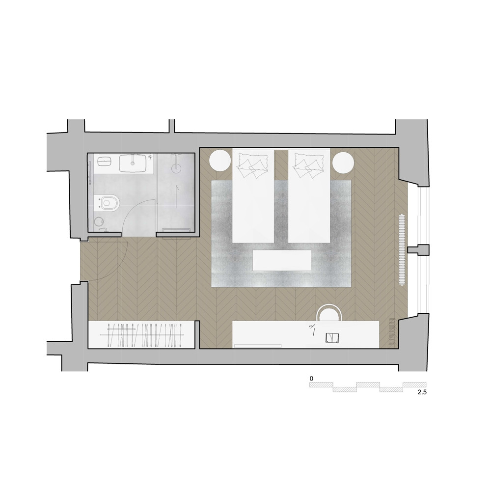
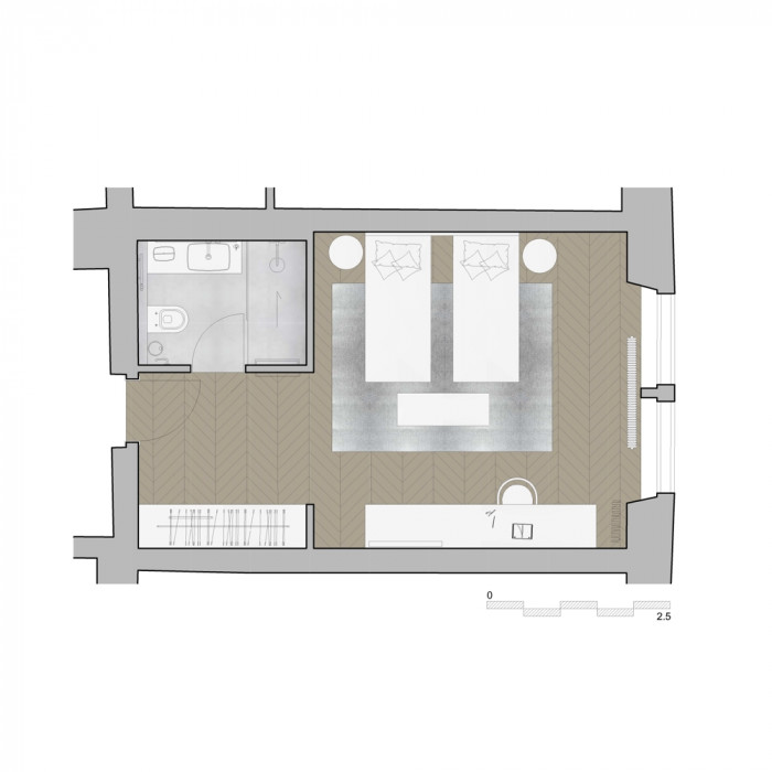
Hotelové pokoje se nacházejí v bývalém hotelu Měšťák, v samém centru Českého Krumlova. Původně tři samostatné gotické domy ze 14. století byly, v 50. letech století dvacátého, propojeny do jednoho komplexu. Bohužel objekty prošly za svou existenci několika velkými rekonstrukcemi (naposledy v 90. letech), při kterých byla většina původních prvků až na výjimky odstraněna. Takovou výjimku tvoří například „prezidentské apartmá“, ve kterém se dochoval vyřezávaný renesanční trámový strop.

V návrhu jsme se snažili vnést do pokojů opět trochu noblesy, která se z objektů již dávno vytratila a zároveň něco z původní podoby – dřevěný trámový strop a parketové podlahy. Další materiály a prvky již jsou zcela současné. V koupelnách je převážně použito šedé betonové stěrky doplněné italskými obklady Mutina a bateriemi v provedení british gold od Fantini. Zlatá prostupuje celým interiérem. V pokojích na tapetách a centrálním mosazném svítidle. Nábytek je vyroben jako atyp z drásaného dubu. Interiér je doplněn šedými blackouty a povlečením. Černé ocelové prvky šatny a závěsných svítidel firmy Buster and Punch materiálově i barevně vyvažují prostor jako celek. Součástí návrhu je i pečlivý výběr obrazů.

 

  • Ateliér: mar.s architects
  • Země: Česká republika
  • Realizace: 2018
  • Město: Český Krumlov
  • Datum projektu: 2017
  • Realizace: 2018
Generální partner
Hlavní partneři