M

MFA - Regionální informační centrum Keltské oppidum Závist

Důsledná obnova

Regionální informační centrum keltské oppidum Závist vzniklo rekonstrukcí souboru původních budov v centru obce Dolní Břežany, z nichž nejstarší spadají do 16. století. Přestože budovy nebyly památkově chráněny, přistupovali autoři k jejich rekonstrukci s maximální citlivostí. Původní stavební prvky byly zachovány nebo obnoveny. Části, jež zub času ohlodal natolik, že nebyla možná jejich oprava, byly znovu vystavěny. Při návrhu i samotné realizaci kladli architekti velký důraz na jednoduchost řešení a využití přírodních materiálů.

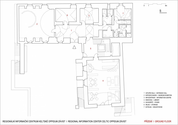
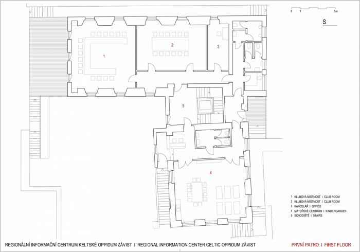
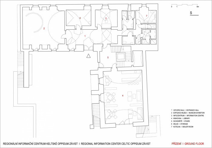
Rekonstrukcí vznikly prostory pro muzejní expozici, infocentrum, klubovou činnost, biograf, knihovnu a mateřské centrum. Obec tak vedle edukativní funkce objektu získala rovněž ideální zázemí pro své společenské aktivity, při kterých se místní komunita setkává napříč generacemi. V rámci rekonstrukce navrhli autoři i úpravy parteru a nejbližšího okolí. Vznikla tak komunitní zahrada, která navazuje na nově vzniklá veřejná prostranství v centru obce.

MFA - Regionální informační centrum Keltské oppidum Závist

Očištění historie

Infocentrum tvoří třípodlažní budova s půdorysnou stopou tvaru písmene L. Budova si zachovala svůj původní historický charakter. Stavební úpravy vycházely z původního členění hmot. Architekti zachovali výškové úrovně stávajícího objektu a snažili se očistit dvě hlavní hmoty historických objektů od nepůvodních přístaveb a úprav. Mezi tyto historické části vložili nové, o něco nižší propojovací komunikační jádro s prosklenou výtahovou šachtou.

Velkou pozornost věnoval architektonický tým kanceláře MFA pod vedením Michala Fischera znovuobnovení historických prvků. Svůj autentický vzhled si zachovala kamenná ostění, šambrány, římsy, rohové rustiky, špaletová okna i pálené keramické skládané krytiny bobrovky. Moderní prvky uplatněné na fasádě představují skleněné markýzy nad vstupy, které jsou díky svým subtilním proporcím vizuálně významně potlačeny.

Původní klenby, nový krov

Nejinak postupovali architekti při návrhu interiéru. I zde bylo hlavním cílem zachování původních konstrukcí v nejvyšší možné míře. V přízemí byly opraveny původní klenby, jejichž zdivo v ústředních prostorách upravili projektanti na pohledové. Klenba nad knihovnou vznikala nově tradičním způsobem. Krov třetího nadzemního podlaží tvoří zcela nová konstrukce lepených dřevěných trámů coby replika původního hambalkového krovu. Jednotlivé prvky se pohledově uplatňují v prostoru víceúčelového sálu. Autoři ve svém návrhu zachovali původní mansardový valbový tvar střechy se dvěma patry. Vizuální parametry původní keramické pálené střešní krytiny naplnila skládaná střešní krytina Tondach. Dostatečné množství přirozeného světla v podkrovních částech budovy zajišťuje několik střešních oken.

MFA - Regionální informační centrum Keltské oppidum Závist

Rovněž barevnost fasád ctí původní architekturu objektu, kde se světlými plochami vápenné omítky kontrastují barevně i reliéfně odlišené prvky okenních šambrán, říms či rohových rustik.

Celá řada technicky náročných sanačních postupů umožnila obnovit velké množství původních konstrukcí a současně zajistit bezproblémový a bezpečný provoz nové budovy.

Díky citlivosti celkového konceptu rekonstrukce, pečlivosti při návrhů detailů i preciznosti při jejich provádění představuje Regionální informační centrum Keltské oppidum Závist významnou architektonickou realizaci v rámci Dolních Břežan.

MFA - Regionální informační centrum Keltské oppidum Závist

Tento článek vznikl za podpory společnosti WIENERBERGER s.r.o.  

Společnost Wienerberger s.r.o. má sídlo v Českých Budějovicích, odkud řídí služby, výrobu a prodej systému stavebních materiálů pro výstavbu zejména rodinných a bytových domů. V jedenácti závodech v České republice vyrábí cihelné bloky pro vnější a vnitřní zdivo, keramobetonové překlady a keramické polomontované stropy značky Porotherm a střešní krytinu značky Tondach. Náročnějším zákazníkům nabízí také lícové cihly (klinkery) a obkladové pásky Terca či cihlovou dlažbu Penter.

  • Autoři: Michal Fischer, Marie Pechová
  • Ateliér: MFA s.r.o.
  • Země: Česká republika
  • Město: Dolní Břežany
  • Suma: 41 000 000.00
  • Měna: CZK
  • Datum projektu: 2009
  • Realizace: 2019
  • Zastavěná plocha: 410.00m2
  • Plocha pozemku: 3 090.00m2
  • Poznámka: Foto © Aleš Jungmann
Generální partner
Hlavní partneři