Architektura s.r.o. - Mateřská školka Větrník v Říčanech

Zadáním města bylo navrhnout novostavbu školky se sportovním zaměřením a objekt tělocvičny. Školka je plánována v rámci nového rozvoje území Říčany-Větrník. Navrhli jsme trojici objektů a vzájemně je propojili – školku, tělocvičnu, zahradu. Tělocvična bude realizována, zatím stojí školka a část zahrady. Nejprve jsme přemýšleli o dítěti jakožto fenoménu – co vše tvoří dětství? Nejen rodina, zážitky na hřišti, jsou to i objekty, které navštěvuje, instituce, které jej vměstnávají do Systému. A jaké má dítě fyzické schopnosti? Co stárnutím ztrácí? Dohledali jsme spoustu příkladů netradičních školek z celého světa, některé jsou bohužel v naší společnosti nepostavitelné. Jsme svázáni tak přísnou legislativou, že ta již spíše omezuje, než aby umožňovala rozvoj společnosti. Dítě je v Systému a účelem je, aby se stalo řádnou a neproblematickou součástkou. Proto vidíme takový rozvoj alternativního školství. Téma školství jakožto státní disciplíny je pro mě osobně důležitý fenomén. Bavíme se o HDP, růstu ekonomiky, málo o výchově, o potenciálu, který je v každém dítěti.
Město Říčany však od počátku vykazovalo odvahu a velkorysost. Proběhlo mnoho setkání s učitelkami, zástupci sportovních oddílů i vedení města Říčany než se návrh ustálil. Cítili jsme zájem o projekt, za to děkujeme. Děti samotné byly zásadní – jejich hry, pohyb, vidění, měřítko. Dětská živelnost, neuspořádanost, nepředvídatelnost, čistota, zvídavost, optimismus a nezatíženost hořkostmi života.
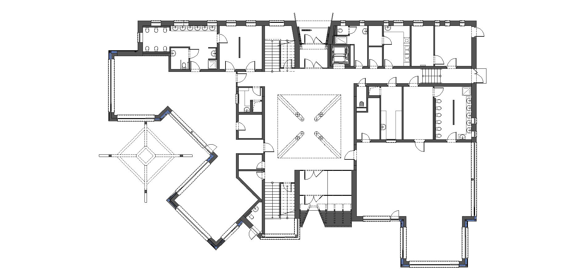
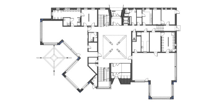
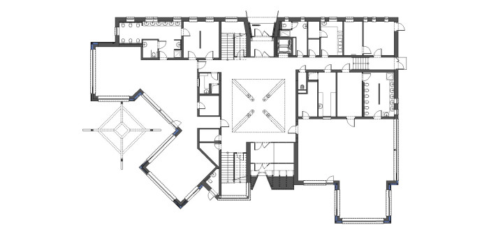
Rozdělili jsme hmotu na několik částí. Kostka, v které je zázemí, kanceláře, vstupy, vše nutné pro praktické fungování. Na to se pak napojují jednotlivé třídy, které už nejsou obdélníkové a navazují na zahradu. Jsou to volně tvarované světy na hraní. Pagody tvoří siluetu domu a zevnitř skrýš, indiánské tee-pee, prostor, kam dopadá světlo z trojúhelníkových oken, přiznané dřevěné konstrukce jako větve stromu. Vstupní atrium, zde je pavoučí síť, herní prostor přístupný ze všech tříd, lanové centrum přímo v budově, doufáme, že bude využíváno a děti se budou houpat a létat. Síť je nesena kmeny stromů, jimž bylo za jejich službu poděkováno. Atrium slouží i jako komunitní prostor pro zpívání, hraní, výstavy, divadlo.
Školka má dvě tváře, do ulice drží hmotu, do zahrady je hravá, zde nefunguje jako tradiční dům. Zem se rozechvívá, hmoty se rozpadají a prostor se otvírá, aby do něj proniklo Slunce. Hlavní vstup je z ulice, dvě třídy v přízemí, dvě v patře. Uliční fasáda školky je částečně řešena jako vertikální zeleň, doufáme, že bude košatět a zahušťovat se, aby jednou pohltila celou fasádu. Vstup má připomínat vstup do záhadného chrámu či kosmické lodi. Vedení technické infrastruktury je částečně pohledové, nechť dítě vidí, kudy teče voda, elektřina a kudy vzduch. Barvy jsou jásavé, mají prosvětlovat i okolí.
Za domem je hřiště, v současnosti nedokončeno, realizováno částečně. I zde jsme chtěli, aby byl vytvořen zelený svět fantazie, jak z dětské knížky. Stavba probíhala s tlakem na finance, ne vše se realizovalo dle našich představ, ale to patří k práci.
Chtěli jsme vybudovat dětem objekt, který není instituce, je hravý a bude umožňovat rozvoj kreativity a všech krásných specifičností dětské duše. Objekt, jež bude dětem tvořit podvědomé obrazy, které jednou možná vyvstanou v dospělosti, aby rozvinuly Něco…
- Autoři: David Kraus
- Ateliér: ARCHITEKTURA s. r. o.
- Spolupráce: Marek Trebuľa, Alina Fornaleva, Šárka Andrlová, Michaela Kubinová
- Země: Česká republika
- Adresa:: Bílá 785/6, 251 01 Říčany
- Město: Říčany
- Projekt: 2016
- Realizace: 2021
- Zastavěná plocha: 716 m²
- Užitná plocha: 1 058 m²
- Plocha pozemku: 3 009 m²
- Hrubá podlahová plocha: 1 114 m²
- Rozměry: 10 016 m3
- Náklady: 60 mil. CZK
- Investor: Město Říčany
- Fotograf: Filip Šlapal
- Projekt, stavební část, statika, všechny profese: Projecticon s.r.o. [ing. Pavel Ježek, ing. Tomáš Kalous]
- Realizace objektu: Zlínstav s.r.o.
- Technický dozor investora: Vejvoda spol. s r.o.
- Zeleň: Flora Urbanica s.r.o.
- Nábytek: Kanona a.s.
- Hřiště: S.O.S. – DEKORACE s.r.o.
Související projekty
Související architekti
Související ateliéry a firmy




























