Molnár - Peráček - RD pri lese
Východiskom konceptu domu bolo čarovné prostredie chráneného lužného lesa, ktorý vizuálne zasahuje až na stavebnú parcelu. Ďalším dôležitým vstupom bol fakt, že dom je súčasťou väčšieho projektu, konkrétne 6 rodinných domov v uzavretom areáli, ktorý vznikal naraz v našom ateliéri. Jednotná filozofia spoločného projektu od začiatku určila, že stavby budú realizované z CLT dreveného masívu. Mikrourbanizmus ustúpil stromom, čím vznikla nezvyčajná parcelácia s kľukatou cestou uprostred.
Základným kvalitatívnym kritériom návrhu bolo vytvoriť priestranný dom, ktorý má klásť dôraz na kvalitné prírodné materiály, spracovanie, trvácnosť, energetickú úspornosť a užívateľský komfort. Materiálová báza domu ako aj vizuálny prejav stavby mal komunikovať s prírodným okolím lužného lesa, čo sa odzrkadlilo v použití obkladu z červeného smreku a vo zvolenom konštrukčnom prístupe.
Ten je charakteristický svojim jednotným rukopisom od primárnej nosnej konštrukcie, ktorá je z lepeného masívneho dreva, cez sekundárne konštrukcie roštov odvetraných fasád a striech, kde sa znova použilo drevo (nie napr. hliníkové rošty), až pod fasádne obklady, kde sa použila komplexne na celom dome odvetraná fasáda s čiastočne dreveným obkladom. Čistý architektonický výraz domu mal ísť ruka v ruke s racionálnou a vzhľadom na použité rozpony, subtílnou drevenou konštrukciou. Práve použitý CLT drevený masívny systém mal do maximálnej mieri efektívne využiť svoje statické možnosti.
Hmotové riešenie samotného domu na pozemku s nízkou zastavanosťou bolo od začiatku predurčené na relatívne kompaktné riešenie oboch podlaží súhlasne nad sebou. Malá zastavanosť vzhľadom na lokalitný program investora vylučovala možnosť garáže. Hmotu domu lemuje krytá terasa orientovaná do záhrady a lužného lesa vytvárajúc príjemné podlubie.
Dispozícia
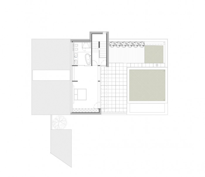
Dom je navrhovaný ako 3-izbový, statická doprava je riešená prístreškom pre 2 autá doplneným o 2-3 parkovacie státia umiestnené na riešenej parcele v rámci spevnených plôch.
Prvé nadzemné podlažie obsahuje zádverie vstupnej časti s postrannými šatníkmi, práčovňu s TZB miestnosťou, kúpeľňu, spálńu orientovanú do lesa, prechodnú pracovňu a obytnú kuchyňu s obytnou halou. Obytná kuchyňa bola komponovaná tak, aby pri varení poskytovala priamy výhľad z varného ostrova do záhrady a aby umožňovala komfortné priame prepojenie na terasu. Obytná hala je akcentovaná prevýšením a vo svojej vyššej rovine je odtrhnutá dvojicou pásových okien s výhľadom do korún stromov lužného lesa. Hmota druhého podlažia obsahuje otvorenú jednopriestorovú nočnú časť, ktorá sa presklenou stenou otvára do strešnej terasy s výhľadom do záhrady a lužného lesa. Dlhé pásové okno zabezpečuje poobedné preslnenie priestoru zo západu.
Interiér
Použitý CLT masívny konštrukčný systém je v súlade s filozofiou projektu v plnej miere v interiéri priznaný.V hygienických zariadeniach sú realizované veľkoplošné gresové obklady stien. Podlaha je riešená minimlaisticky ako liata biela v harmonickom kontraste k CLT drevu. Podlaha na 2. np je riešená formou zeleného koberca s vyšším vlasom za účelom zútulnenia priestoru pre spanie a odpočinok.
Konštrukcia
Objekt rodinného domu je zakladaný na základovej doske z vodonepriepustného armovaného betónu, ktorá je uložená na zhutnenom násype z penového skla hr. 300 mm.
Zvislé konštrukcie sú tvorené z lepených drevených panelov z masívneho dreva CLT o hrúbke 100 mm, kotvených uholníkmi do základovej dosky. Horizontálne konštrukcie stropov sú tvorené z dreveného lepeného masívu typu BSH (HNT) o hrúbke 160 mm.
Dom je zastrešený jednoplášťovou pochôdznou a extenzívnou strechou nad 1.np a dvojplášťovou prevetrávanou strechou nad nočnou časťou.
Okenné konštrukcie a zasklené steny sú navrhnuté z hliníkových profilov s prerušeným tepelným mostom a s izolačným trojsklom, okná sú kvôli ideálnemu teplotechickému riešeniu predsadené do tepelnej izolácie v drevených špaletách. Obvodový plášť objektu je realizovaný ako prevetrávaná difúzne otvorená stena s obkladom na drevenom rošte (drevený masív z červeného smreku kombinovaný s nehorľavými fasádnymi vláknocementovými doskami CEMBRIT express).
Technické vybavenie objektu
Vykurovanie, prípravu teplej vody a chladenie objektu zabezpečuje tepelné čerpadlo vzduch-voda v kombinácií s nízkoteplotným podlahovým sálavým vodným vykurovaním a chladením. Dom je vybavený centrálnym vysávačom a studňou na prevádzku WC, práčky a závlahy pozemku.
Veľmi nízka energetická potreba domu na vykurovanie radí dom do kategórie nízkoenergetických domov vysokého konštrukčného štandardu vďaka prevetrávanej fasáde a streche domu s vysokým tepelným odporom a použitými prírodnými izoláciami so zvýšenou akumulačnou schopnosťou, ktorá sa prejavuje najmä v lete.
Konštrukčné riešenie domu je primárne zamerané na kvalitné a zdravé bývanie s použitím prírodných vysokodifúznych materiálov. Zvolené materiály predstavujú ekologickú špičku z hľadiska kvality, uhlíkovej stopy, recyklovateľnosti ako aj trvalej udržateľnosti.
- Ateliér: ateliér MOLNÁR-PERÁČEK
- Autoři: Ľubomír Peráček, ml., Lubomír Peráček, st.
- Země: Slovensko
- Město: Bratislava - Rusovce
- Ulice, číslo: Pri gaštanovej aleji
- Datum projektu: 2015
- Realizace: 2017
- Užitná plocha: 180.00m<sup>2</sup>
- Zastavěná plocha: 165.00m<sup>2</sup>
- Plocha pozemku: 652.00m<sup>2</sup>
Mohlo by vás zajímat