Molnár-Peráček - CLT rodinný dům Čunovo
Otevřít a uzavřít
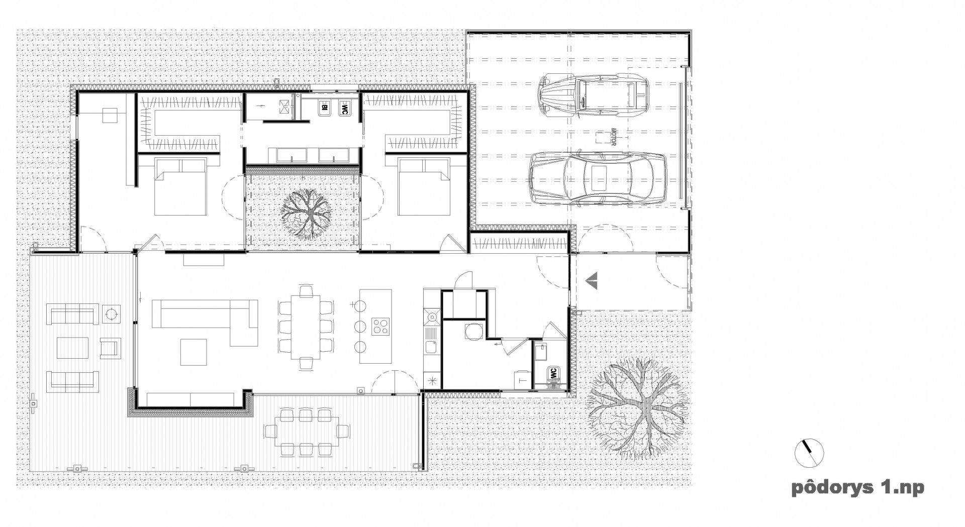
Snahou architektů ze slovenského ateliéru Molnár Peráček bylo dům otevřít směrem k jihu a naopak severní stranu domu zcela uzavřít – v severní části tak najdeme ložnice se šatnami a koupelnou, zatímco podél prosklené jižní fasády vznikl hlavní obytný prostor s jídelnou a kuchyňským koutem.
Právě obývací prostor má nejužší vazbu na zahradu, navazuje na něj totiž prostorná krytá terasa s posuvnými paravány, které chrání před letním sluncem i zvídavými pohledy sousedů. Ve středu domu pak architekti navrhli atrium, které přivádí denní světlo do přilehlých ložnic a zároveň vizuálně oživuje obytný prostor.
Sázka na dřevo
Nosné konstrukce domu tvoří masivní CLT panely z lepeného dřeva. „Volbu dřeva coby dominantního materiálu jsme se navíc rozhodli podpořit i jeho uplatněním jak v interiéru, tak v exteriéru. Uvnitř domu se uplatňuje na podlaze či přiznaných stropních panelech z lepeného smrkového dřeva, v exteriéru jsme dřevo použili na fasádní obklad v místě teras a zádveří, dřevěná je i podlaha teras a mobilní stínící panely,“ popisují architekti.
Materiálový i barevný kontrast k použitému obkladu ze sibiřského modřínu představují hladce omítané plochy základní hmoty domu a vláknocementové fasádní desky Cembrit. Ty nalezneme v podobě obkladu stěn u terasy i uvnitř atria. Jejich grafitový odstín a hladký povrch kontrastuje s rustikálními plochami dřeva v medové barvě.
Jednotlivé místnosti jsou relativně skromné, laděné v odstínech šedé v kontrastu se zmíněnými dřevěnými plochami. Architekti si při tvorbě interiéru vyhráli se světlem. Příjemné nepřímé sluneční světlo vniká do interiéru skrze vnitřní atrium, náladové osvětlení pak dodávají stropní přisazené led pásky, čímž vzniká efektní světelná linka po obvodu hlavního obytného prostoru.
- Ateliér: ateliér MOLNÁR-PERÁČEK
- Autoři: Juraj Molnár, Lubomír Peráček, st., Ľubomír Peráček, ml.
- Země: Slovensko
- Město: Bratislava - Čuňovo
- Realizace: 2017
- Zastavěná plocha: 154.00m<sup>2</sup>
- Plocha pozemku: 595.00m<sup>2</sup>
- Materiál: Fasádní desky - CEMBRIT
Mohlo by vás zajímat