ORA - Dům v ruině

ÚVODNÍ DILEMA
Byli jsme osloveni k projektu rekonstrukce fascinujícího objektu. Našli jsme znásilněný dům, bývalou usedlost, která byla za minulého režimu přestavěna na sýpku. Domu byly vyrabovány jeho vnitřnosti a přeorganizovány pro jiný účel. Po prvním ohledání jsme četli spáry, niky a výstupky a objevovali původní formy. I takhle osekaný dům, dá se říci abstrahovaný, ale neztratil nic ze své velkoleposti. Právě naopak. Způsob, jak je situovaný, jak se vzpíná k nebi a jak jeho syrová hmota odolává času, se ukázaly jako největší kvality. Byla to ruina ohlodaná až na kost. Z původního domu zbyla jen cihelná obálka se střechou. Společně se stavebníky jsme si kladli otázku, zda se máme kam vracet. Při jakékoliv snaze o tradiční opravu bychom o tenhle charakter ruiny přišli. Relativně brzy jsme proto zavrhli spekulativní rekonstrukci původního stavu, i jakékoliv další imitace. Navrhli jsme zafixovat stávající stav romantické ruiny a vstoupit do domu nově.
Dům do domu, dům v ruině.
ODEBÍRÁNÍ
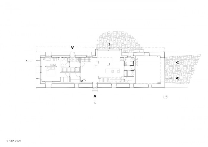
Navrhli jsme dům znovu vyvrhnout a místo tří pater mu vrátit patra dvě a s nimi i původní měřítko. S tím souvisí i návrat k původnímu dělení fasády. Dle potřeb dispozice jsme ještě otevřeli další velké otvory bez sentimentu tam, kde bylo třeba.
PŘIDÁVÁNÍ – RECYKLACE
Do stávající kulisy ruiny jsme vystavěli nový izolovaný dům, který díky tomu může splňovat všechny současné energetické standardy. Zdravé druhotně použité dřevěné konstrukce jsme použili zase znova jako konstrukční prvky stropů a výměn v krovu. Většina materiálu na místě zůstala, jen se přeskládala.
CELEK
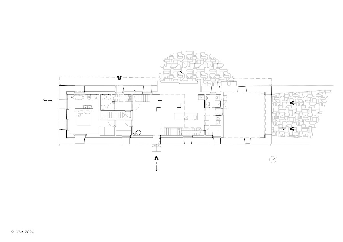
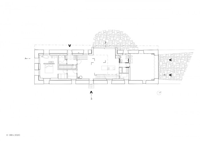
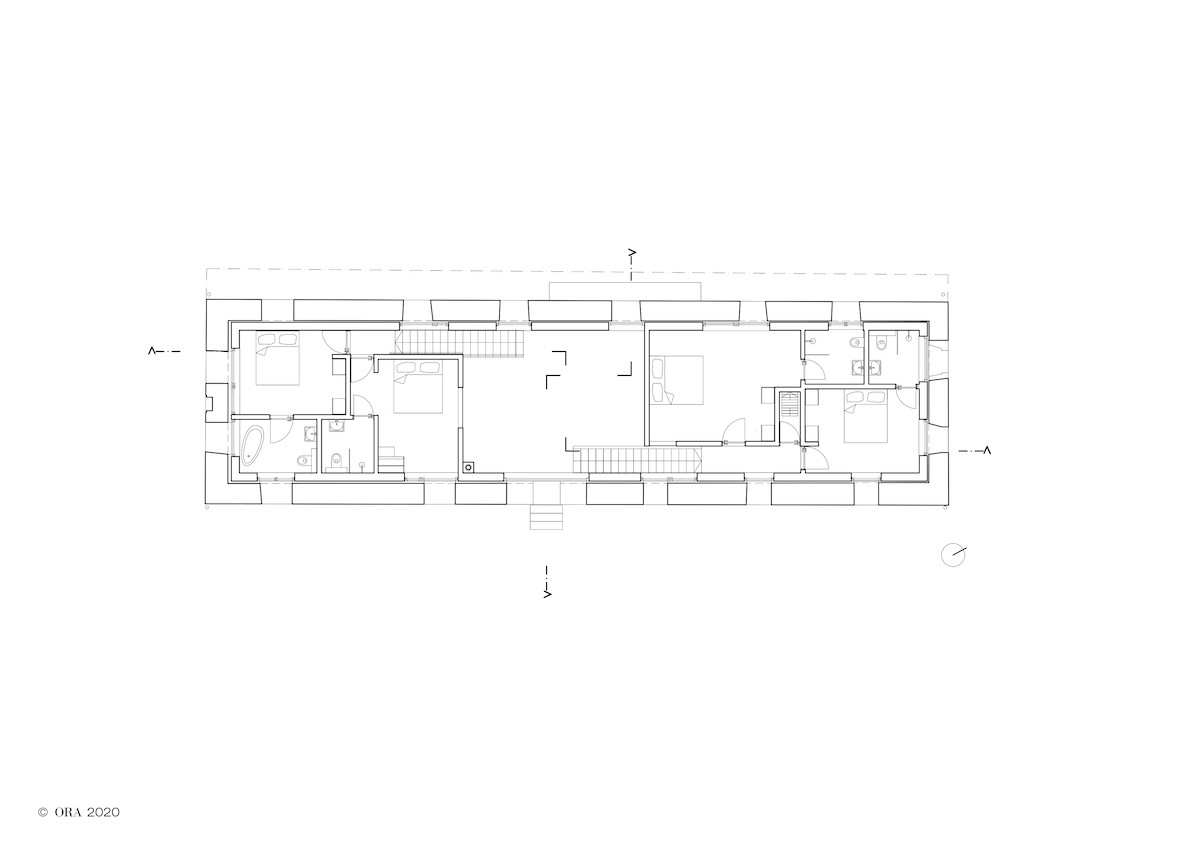
Dům v sobě spojuje nízké i vysoké. My jsme sem vložili další současnou vrstvu, která se svým účelem liší od všech předešlých. Mezi novou a původní strukturou je udržovaná větraná mezera, konstrukce se nedotýkají. Nová struktura je místy vůči staré lehce posunutá. Okna nesedí úplně přesně na otvory ve staré zdi a stává se, že stará zeď je díky tomu přítomná i v interiéru. Dochází k vizuálnímu prolínání obou světů. Novostavba se skrze otvory ve staré zdi dere ven, naopak stará zeď skrze nová okna vstupuje dovnitř.
EKOLOGIE
Projekt je naším manifestem, jak je možné zacházet se starými domy. Není nezbytně nutné přijít o autenticitu stáří, není nezbytně nutné demolovat, ale ani rekonstruovat dogmaticky památkářsky. Zároveň je i v takovém případě možné stavět ekonomicky za použití současných materiálů a dosahovat požadovaných parametrů.
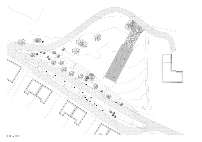
ZAHRADA
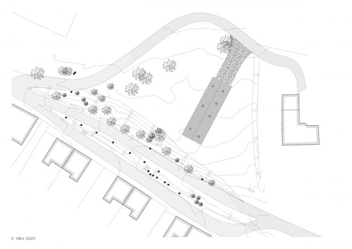
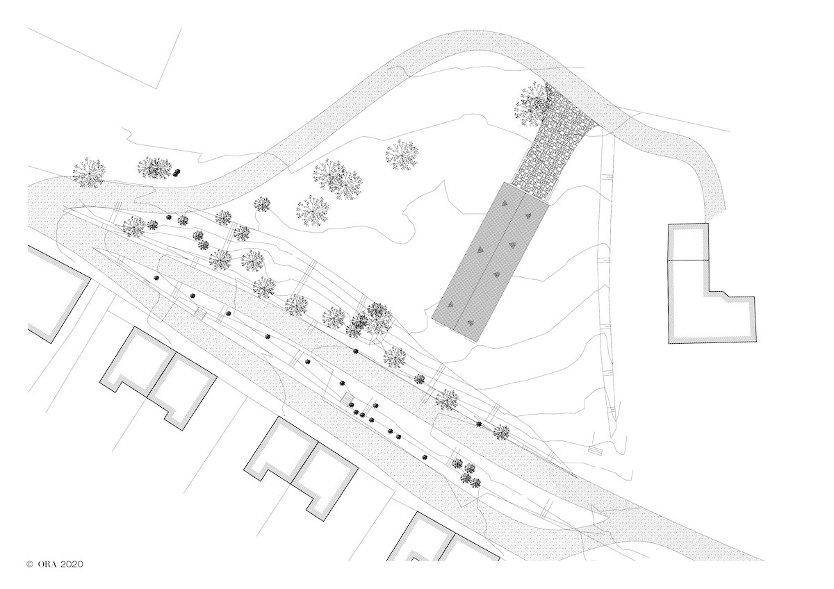
Stejně jako dům respektuje svou historii od doby svého vzniku, i zahrada byla řešena tak, aby se stala přirozenou součástí krajiny. Neexistují zde žádné fyzické hranice. Hranici naznačují pouze fragmenty suchých zídek a cortenová brána. Zahrada navazuje na své okolí. Sad, luční trávník a hlohy jsou jen „vypůjčeny“ z bezprostředního okolí. Před domem vzniká otevřená plocha trávníku, ale to, co spojuje dům, jeho výhled a krajinu, je zahrada.
ŽIVOT
Hosté Sýpky Arnoštov se setkávají ve velkorysém obytném prostoru převýšeném přes dvě patra s kachlovými kamny a kuchyní. Nechybí zde vymoženosti moderního bydlení. Schodiště ve velkorysé hale vedou hosty do jednotlivých pokojů se sociálním zařízením. Tam si mohou vychutnat klid a vyhlížet do krajiny skrze masivní staré zdi, které rámují výhledy; nebo se odevzdat tichu, které zde vládne. Kulatý stůl v hale komunikuje s masivním dubovým stolem venku, kam se lze přesunout, když to počasí dovolí a být tak okolní krajině ještě blíž. A znova začít objevovat hvězdy na noční obloze.
- Autoři: Jan Hora, Barbora Hora, Jan Veisser
- Ateliér: ORA
- Spolupráce: Tomáš Pospíšil
- Země: Česká republika
- Město: Jevíčko
- Ulice, číslo: Zadní Arnoštov 73
- PSČ: 569 43
- Datum projektu: 2016
- Realizace: 2020
- Užitná plocha: 248.00m2
- Zastavěná plocha: 250.00m2
- Krajinné úpravy: Štěpánka Černá/ www.stelar.cz
Související projekty
Související architekti
Související ateliéry a firmy
Mohlo by vás zajímat
































