ov-a - Corso Beroun

Výhledy na řeku a okolí formují průčelí bytů. Ostrá lomenice domu v dialogu s měkkým tokem řeky. Rozmanitý svět teras u řeky se zimní zahradou na přání.
Bytový dům na parkovišti bývalé telefonní ústředny
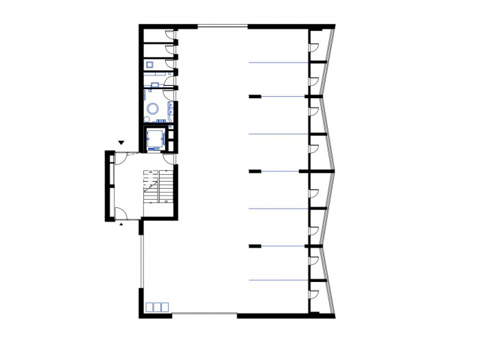
Bytový dům orientovaný k nábřeží kultivuje okolní prostředí a pomáhá integrovat stavbu z dob komunismu do struktury města. Dům je orientován na východ k řece zalamovanou fasádou – každý byt se otevírá prosklenou stěnou k řece. Dynamiku fasády umocňuje střídání otevřených lodžií se zasklenými zimními zahradami. Klienti si tak výběrem bytu mohli vybrat také variantu řešení terasy. Ze stran domu vystupují arkýře s ložnicemi s výhledy na řeku. V 5. ustoupeném podlaží jsou 2 byty s velkorysými terasami. Charakter domu je podpořen temnou fialovočervenou fasádou –ve které jsou vykrojeny bílé otvory lodžií a oken. Podobně jako má kokosový ořech tmavou skořápku a bílou dužinu.
- Autoři: Jiří Opočenský, Štěpán Valouch, David Balajka, Romana Bedrunková
- Ateliér: OVA
- Země: Česká republika
- Město: Beroun
- Realizace: 2019
- Zastavěná plocha: 413.00m2
Související projekty
Související architekti
Související ateliéry a firmy
Mohlo by vás zajímat



















