Pavel Hnilička Architects+Planners - Rodinný dům v Liboci

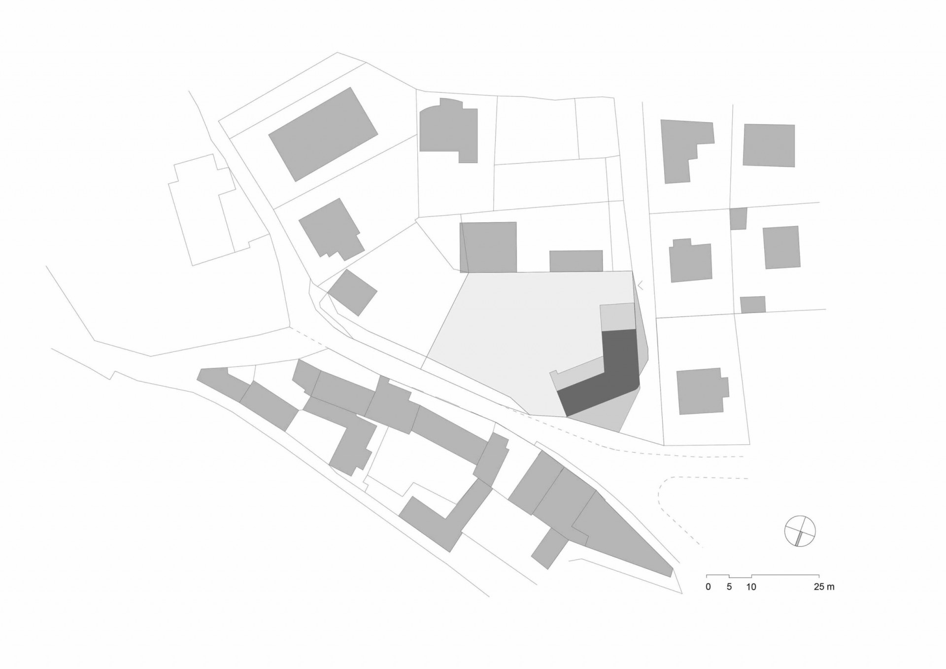
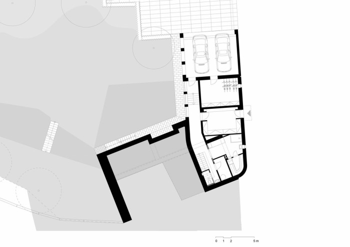
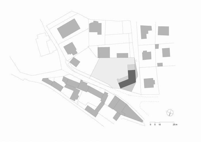
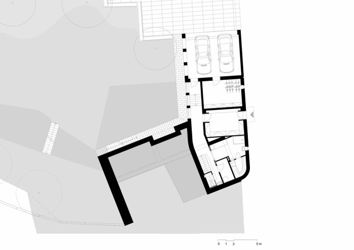
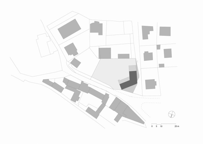
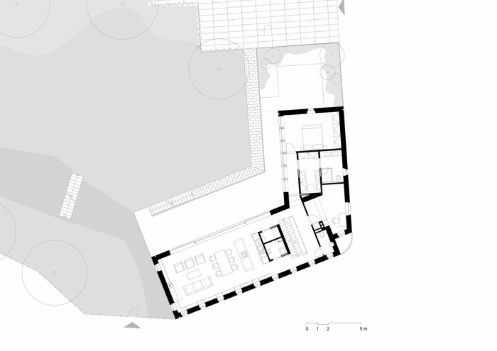
Projekt navržené novostavby ve staré Liboci nahrazuje zchátralý objekt částečně podsklepeným dvoupodlažním domem. Půdorys sleduje stopu původního domu umístěného na hraně pozemku v podobě písmene „L“.
Průčelí hlavní hmoty domu zůstává na původním místě a jasně vymezuje charakteristický prostor piazzetty na křižovatce ulic V domcích, Pod Hvězdou a Sbíhavá. Kratší průčelí domu podél ulice Pod Hvězdou je oproti původnímu stavu posunuto dovnitř pozemku a rozšiřuje ulici Pod Hvězdou.
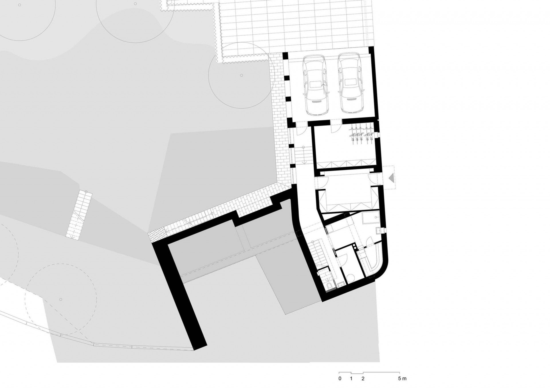
Kratší průčelí je tvořeno podlažím vystupujícím ze svažitého terénu s jednopodlažní nástavbou. Umístění vjezdu na pozemek při severní straně je zachováno ve stávající poloze, ve středu tohoto průčelí se nachází i hlavní vstup do domu. V místě původního vstupu na pozemek z ulice V domcích je navržena zahradní branka.
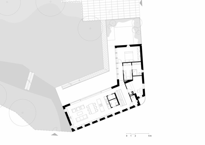
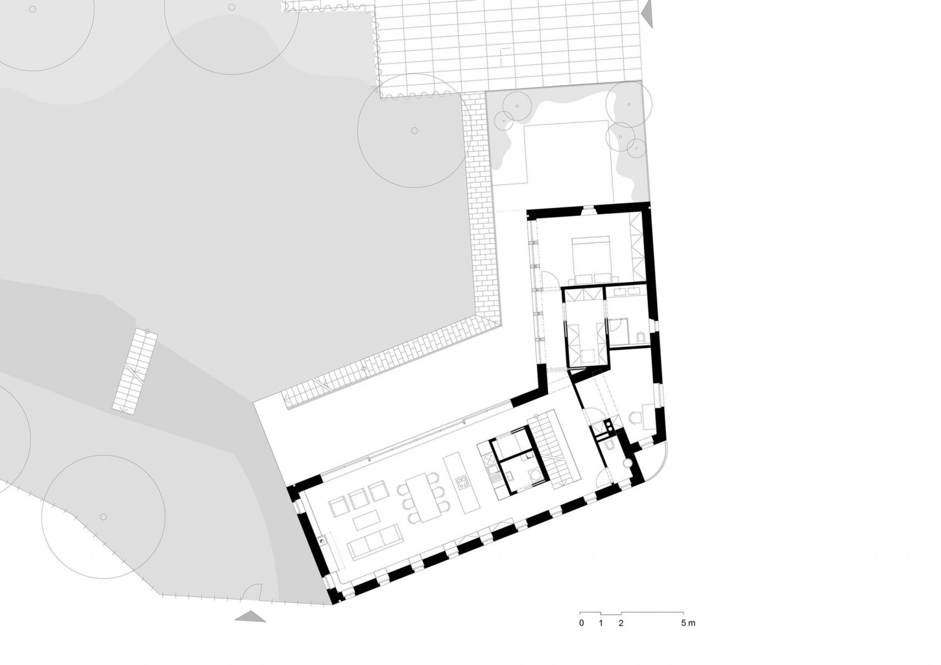
Dispoziční řešení domu: v prvním nadzemním podlaží, v úrovni horní zahrady, přecházející v terasu se nachází pobytová část domu s kuchyní a obývacím prostorem, ložnicí rodičů a hostinským pokojem.
Po schodišti nahoru jsou přístupné ložnice dětí. Směrem dolů se pak nachází částečně podsklepená vstupní část domu se šatnou, technickým zázemím a krytým garážovým stáním.
- Autoři: Pavel Hnilička, Ondřej Smetana
- Ateliér: Pavel Hnilička Architects+Planners
- Země: Česká republika
- Město: Praha - Liboc
- Projekt: 2016
- Realizace: 2019
- Zastavěná plocha: 172 m²
- Hrubá podlažní plocha: 403 m²
- Čistá podlažní plocha: 260 m²
- Obestavěný prostor: 1510 m³
Související projekty
Související architekti
Související ateliéry a firmy
Mohlo by vás zajímat


















