Prokš Přikryl architekti - Přístavba kanceláře ve Vysokém Mýtě

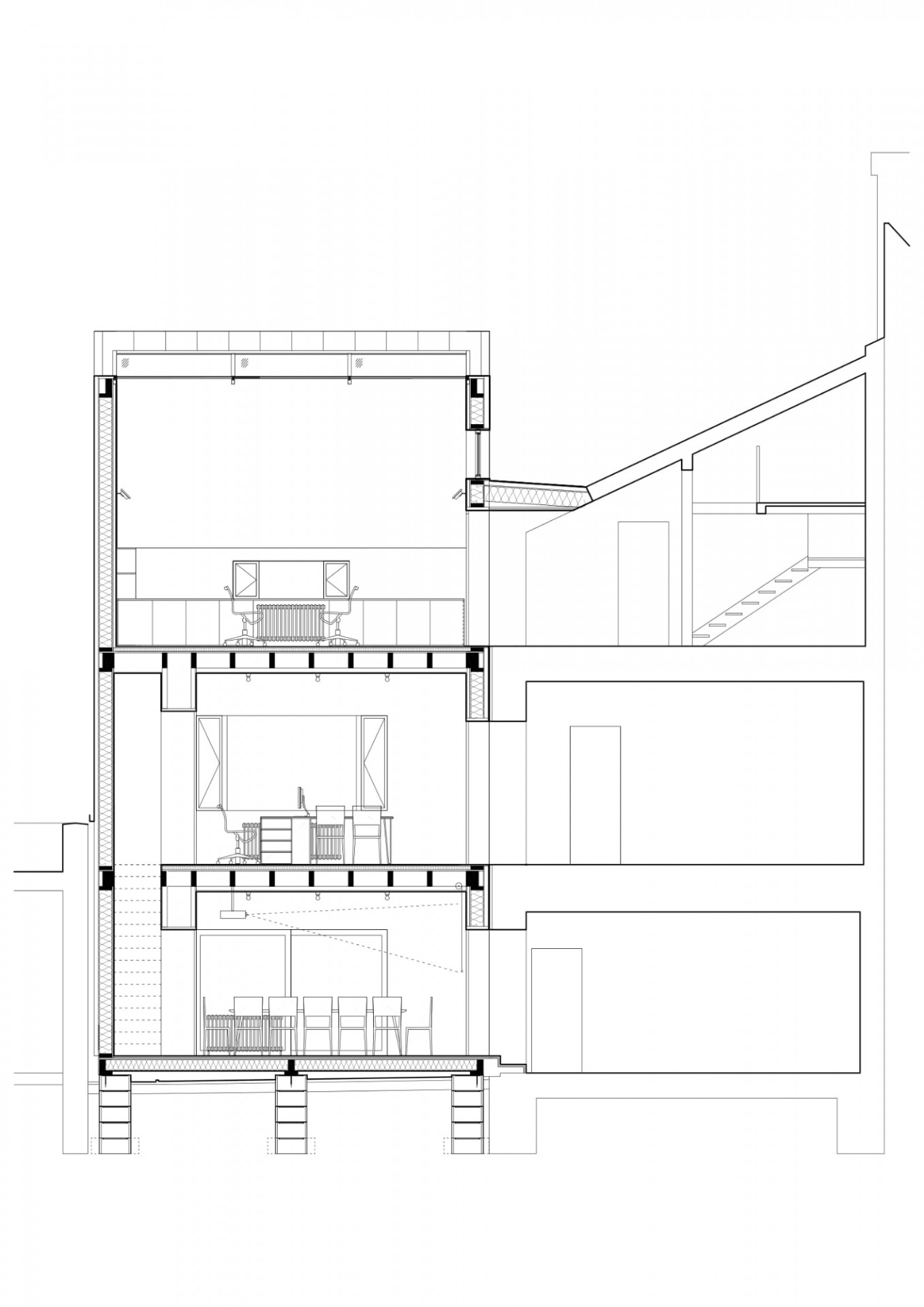
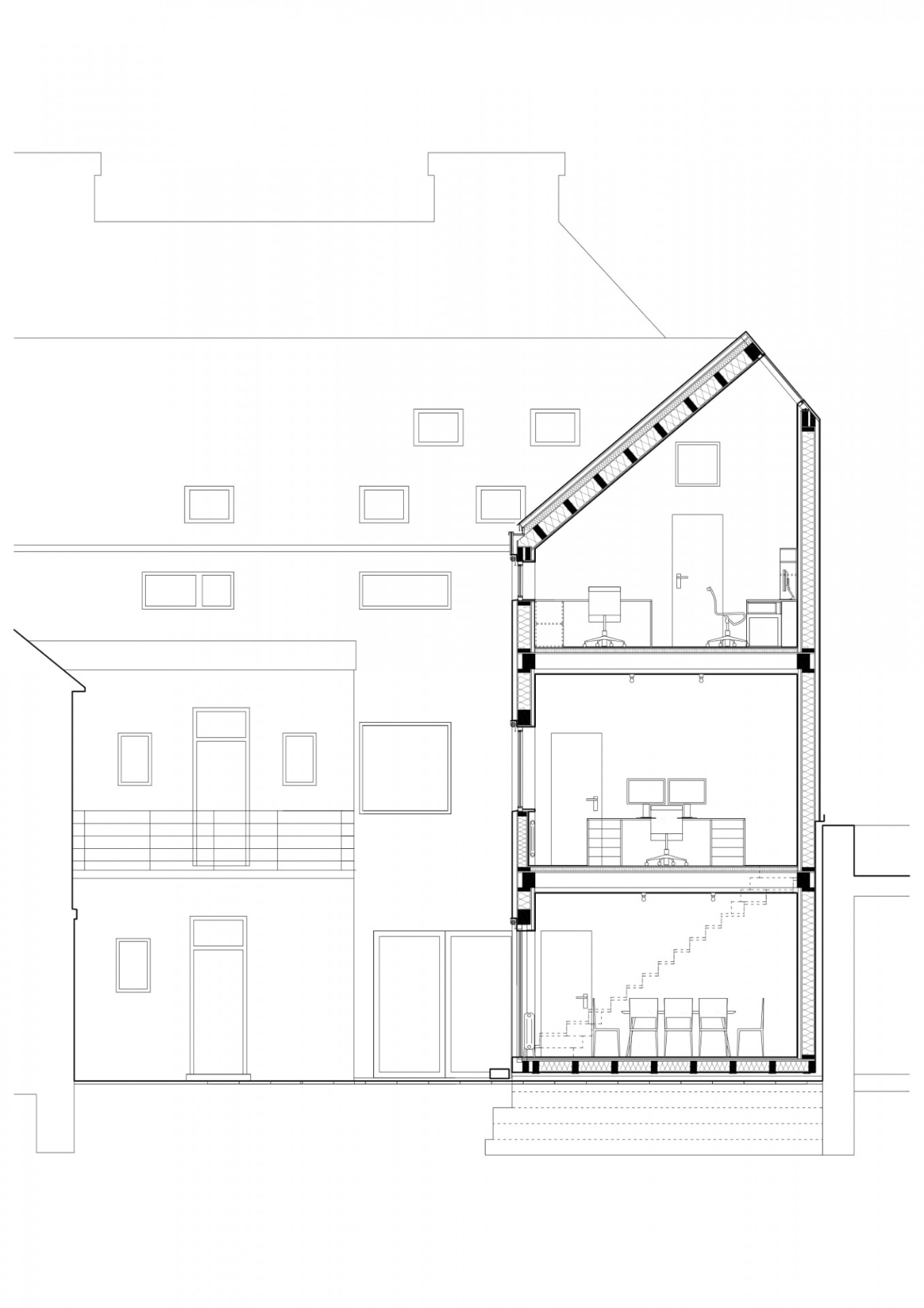
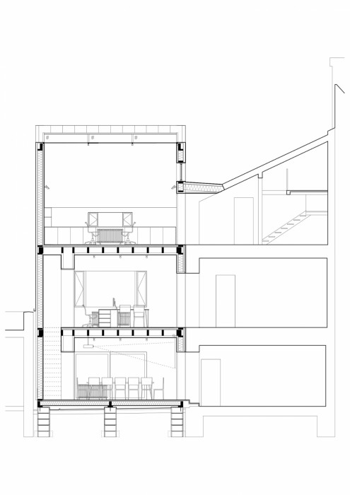
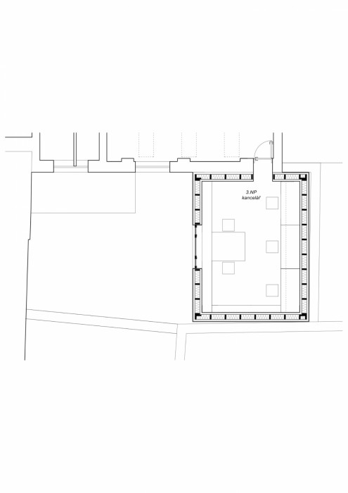
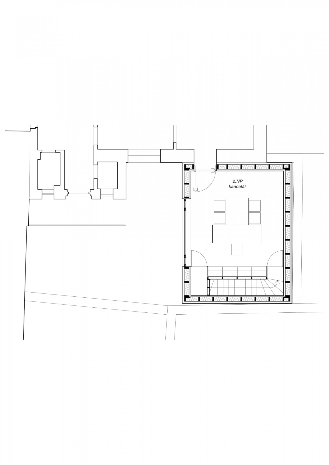
Nevelký dvorek ve vnitrobloku za hlavním náměstím je vymezen slepými zdmi sousedních objektů, vše je zde natěsno. Tyto limity daly přístavbě tvar věže s minimálním půdorysem a natlačily ji na samou hranici do severní části pozemku.
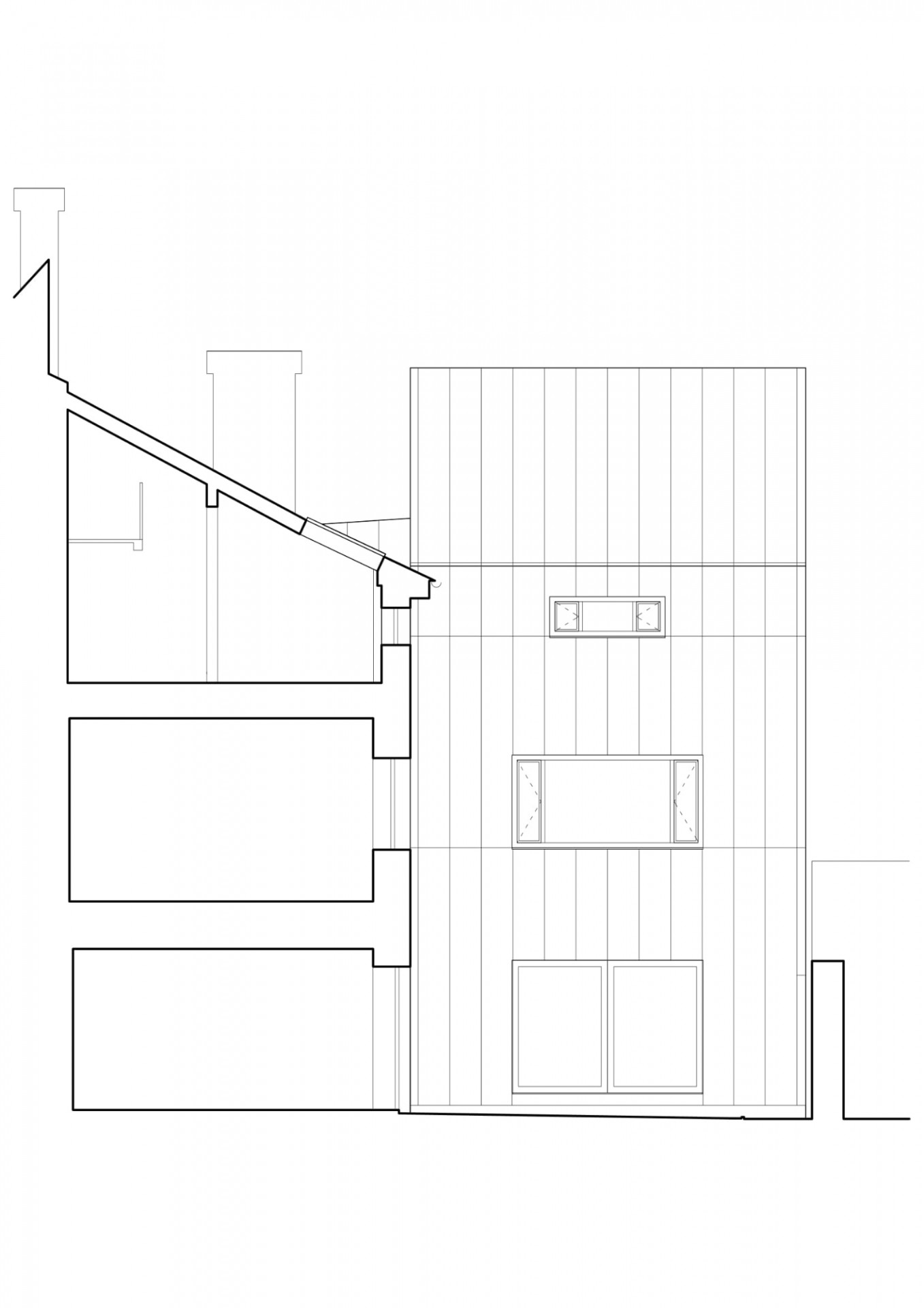
Dvůr tak zůstal vzdušný a zároveň stavba v této pozici nestíní ani neovlivňuje okolní objekty. Reflexní fasáda z hliníku odráží pestrý svět zadních dvorků, ze kterého přístavba čerpá svůj tvar i charakter a kam zároveň svou siluetou a přítomností přispívá. Osazením v druhém plánu je však z pohledu chodce neviditelná.
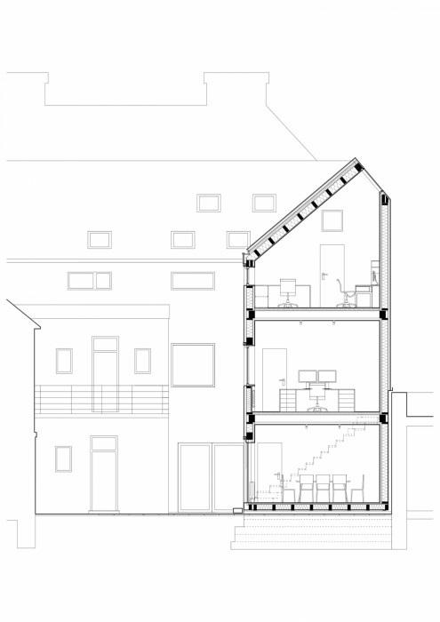
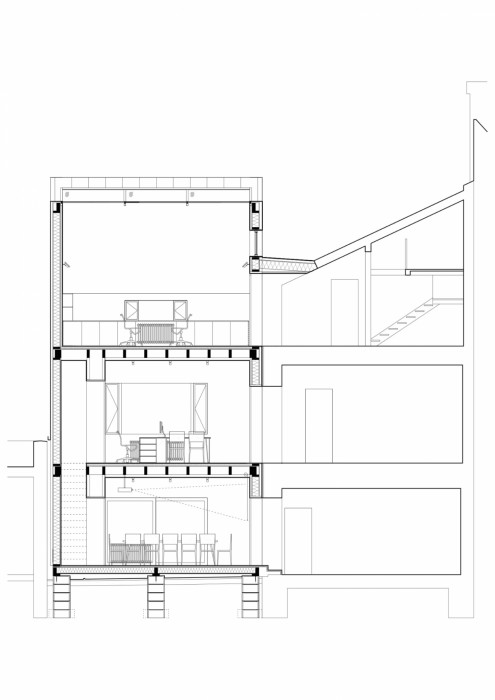
Z důvodu omezeného přístupu na staveniště, proveditelnosti a rychlosti výstavby byl zvolen lehký dřevěný skelet, založený na pasech s trámovými stropy a provětrávanou falcovanou fasádou, použitou zároveň i jako střešní krytinu.
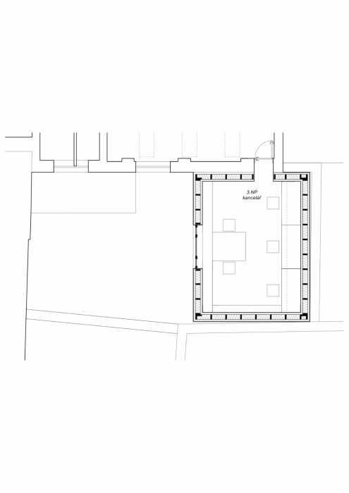
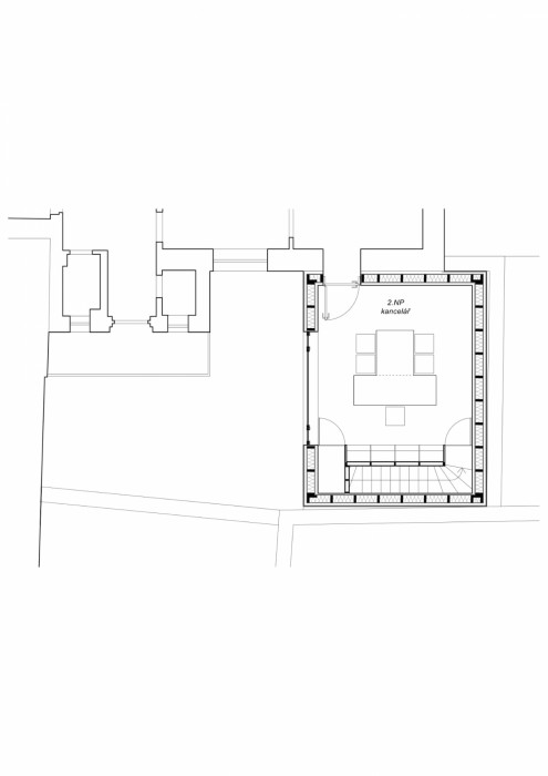
Dispozice je jednoduchá – v každém patře jedna místnost. Mezi přízemím s jednací místností a patrem je skryté provozní schodiště. Podkroví je doplněné o ateliérové severní okno přes celou šířku místnosti, vyvažující minimalizované jižní okno. K civilní plechové fasádě byl zvolen interiér ze dřeva. Úpravy v rámci stávajícího objektu zahrnují zejména propojení s přístavbou ve všech patrech a obnovu technického zařízení.
Rozměry: výška 11,85 m, šířka 6,25 m, hloubka 4,9 m.
- Autoři: Martin Prokš, Marek Přikryl
- Ateliér: PROKŠ PŘIKRYL ARCHITEKTI
- Spolupráce: Lucie R. Dřevíkovská
- Země: Česká republika
- Město: Vysoké Mýto
- Ulice, číslo: Försterova 175
- PSČ: 56601
- Datum projektu: 2017
- Realizace: 2019
- Statika: František Denk
- Investor: MDS projekt
- dřevostavba: Tesaři Osík
- fasáda + střecha: falcovaná hliníková krytina Prefa - klempířství Milan Halamka
- okna: Reynaers - Alurey s.r.o.
Související projekty
Související architekti
Související ateliéry a firmy
Mohlo by vás zajímat






























