Rašelinové lázně

PROČ LÁZNĚ?
Lázeňství má v Jizerských horách dlouholetou tradici, jsou to především lázně Libvedra, které jsou po celém světě známé díky svým léčivým pramenům. Existovali však i další, na které se v průběhu času zcela zapomnělo. Mezi takové patří i dnes zaniklé rašelinové lázně v obci Kořenov. Do lázní se v době jejich největší slávy sjížděli lidé z celého světa. Lázně nabízeli kromě běžných rašelinových procedur i zážitek a spojení s okolní krajinou Rašelina pocházela ze dvou lokalit Jizerských hor. První lokalitou byla Jizerka a tou druhou rašeliniště za Kořenovskou pilou. Ztráta léčivého pramene měla však za následek úpadek lázní, prodání soukromému investorovi a přebudování na byty pro sociální slabší, z okolního parku a skleníků s tropickými rostlinami zůstaly jen trosky odkazující na již dávno zaniklou slávu. Rozhodl jsem se proto do Jizerských hor tradici rašelinového lázeňství znovu navrátit.
UMÍSTĚNÍ
Pro umístění se nabízeli hned dvě lokality, jednalo se o místa původní těžby rašeliny. Lokalita za Kořenovskou pilou je blíže k původnímu objektu lázní, místo se však díky okolní zástavbě, hluku z pily a nedalekému parkovišti pro těžkou techniku na úklid sněhu, neukázalo jako vhodnou lokalitou pro umístění lázní. Druhou možností byla Jizerka, specifická drsná krajina, která nabízí klid, souznění s přírodou a neopakovatelné výhledy do krajiny spojenou s celoročním turismem, díky kterému by lázně mohli fungovat. Volba tedy padla na Jizerku. Pro Jizerku jako pro zbytek CHKO platí přísné podmínky výstavby, architektonická typologie místa, možnost stavět pouze na původních základech. Bylo tedy nutné zmapovat dnes již zaniklé objekty a vybrat nejvhodnější lokalitu. Jizerka nabídla celkem 5 zaniklých objektů, z nichž jeden se nacházel přímo nad rašeliništěm v severní častí osady. Parcela nabízelo kromě rašeliniště i neopakovatelný výhled na Bukovec a celé území. O umístění objektu bylo tedy rozhodnuto
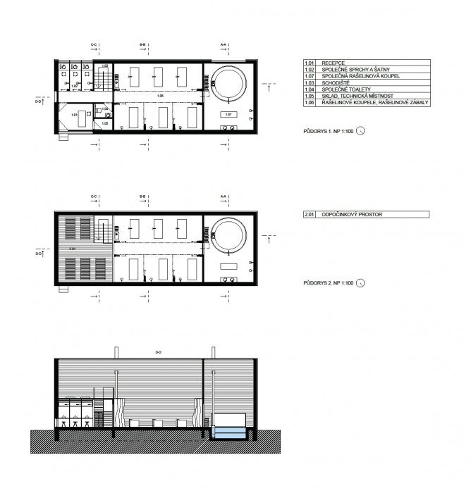
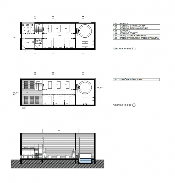
LÁZNĚ
Bylo třeba vytvořit objekt, který by splynul s krajinou a zároveň zachoval typologii okolní zástavby. Hlavní práce tedy spočívala ve zmenšování a odstranění luxusu. Lázně podobně jako okolní krajina mají nabízet jiný zážitek, než na který je člověk zvyklý. Lázně jsou rozdělené na dva objekty, hlavní severní objekt, vyrostl na základech dnes již zbořené stavby, vychází z původní stavební typologie. Tato stavba by se dala přirovnat k chrámu, je větší, podsaditá, uzavřená vůči svému okolí. Světlo proniká skrze střešní světlík. Měla by evokovat vstup do jiného světa a umožnit člověku maximální prožitek bez rušení okolního světa Jižní objekt je opakem toho severního, je vyšší, vzdušnější, zcela otevřený okolní krajině, stal se jakousi přírodní rašelinovou kaplí, hlavní myšlenkou této kaple je spojení s přírodou a transparentnost. Objekt je umístěný přímo na rašeliništi, je tvořený z dřevěných lamel, tak aby poskytl dostatek soukromí, ale zároveň aby působil transparentně vůči okolní krajině, z objektu je možné vylézt ven na okolní platformy a nebo zůstat v úkrytu dřevěných lamel. Fasády obou objektů jsou tvořeny z opalovaného dřeva, které navazuje na okolní barevnost zástavby tolik typickou pro horskou výstavbu.
autor: Libor Šenekel / 2. ročník MAateliér: Stolín / Mičeková
- Autoři: Libor Šenekel
- Země: Česká republika
- Škola: FUA TUL – Ateliér Stolín & Mičeková
- Město: Kořenov
- Ulice, číslo: Jizerka
- PSČ: 468 50
- Datum projektu: 2016
Související architekti
Mohlo by vás zajímat








