Rekonstrukce bytu Plzeň-Bory

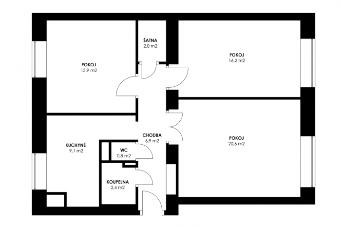
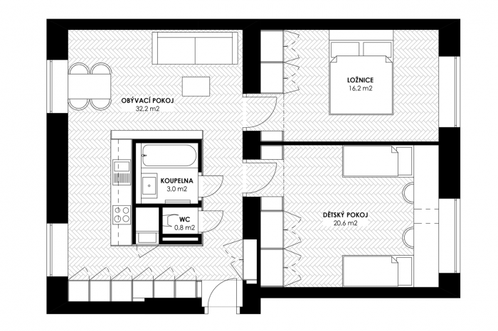
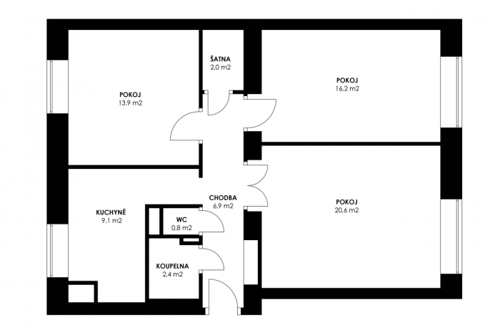
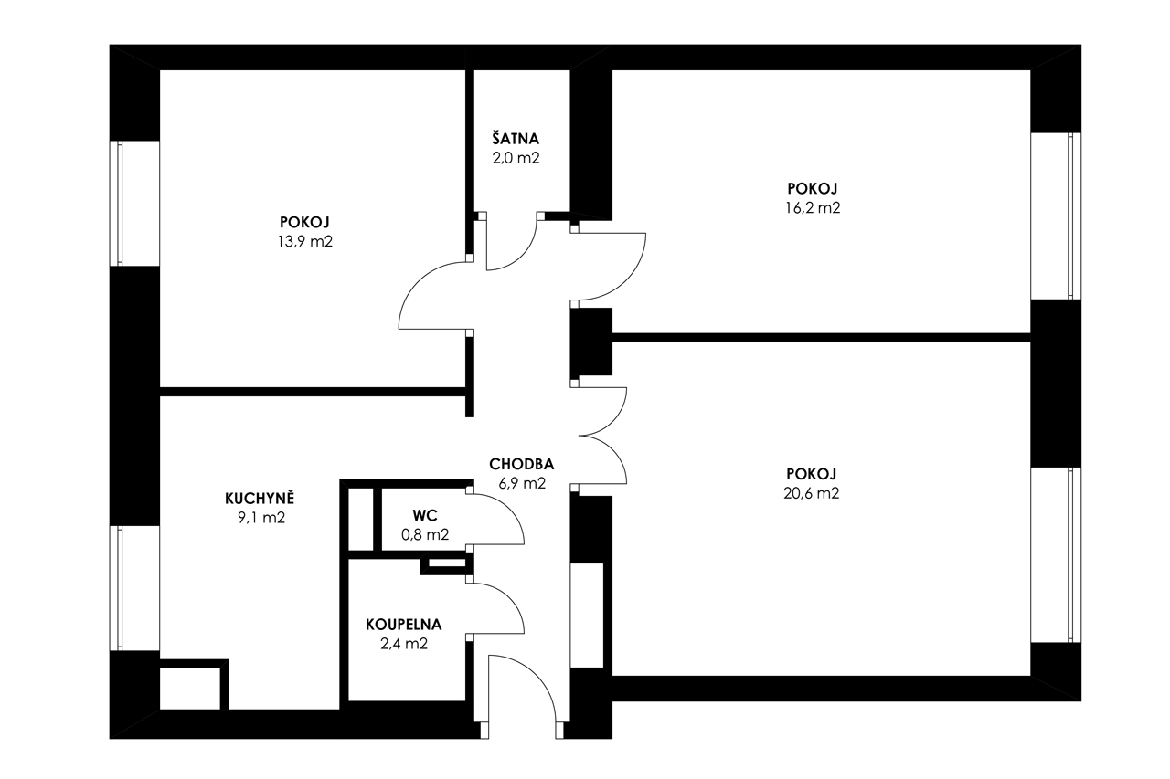
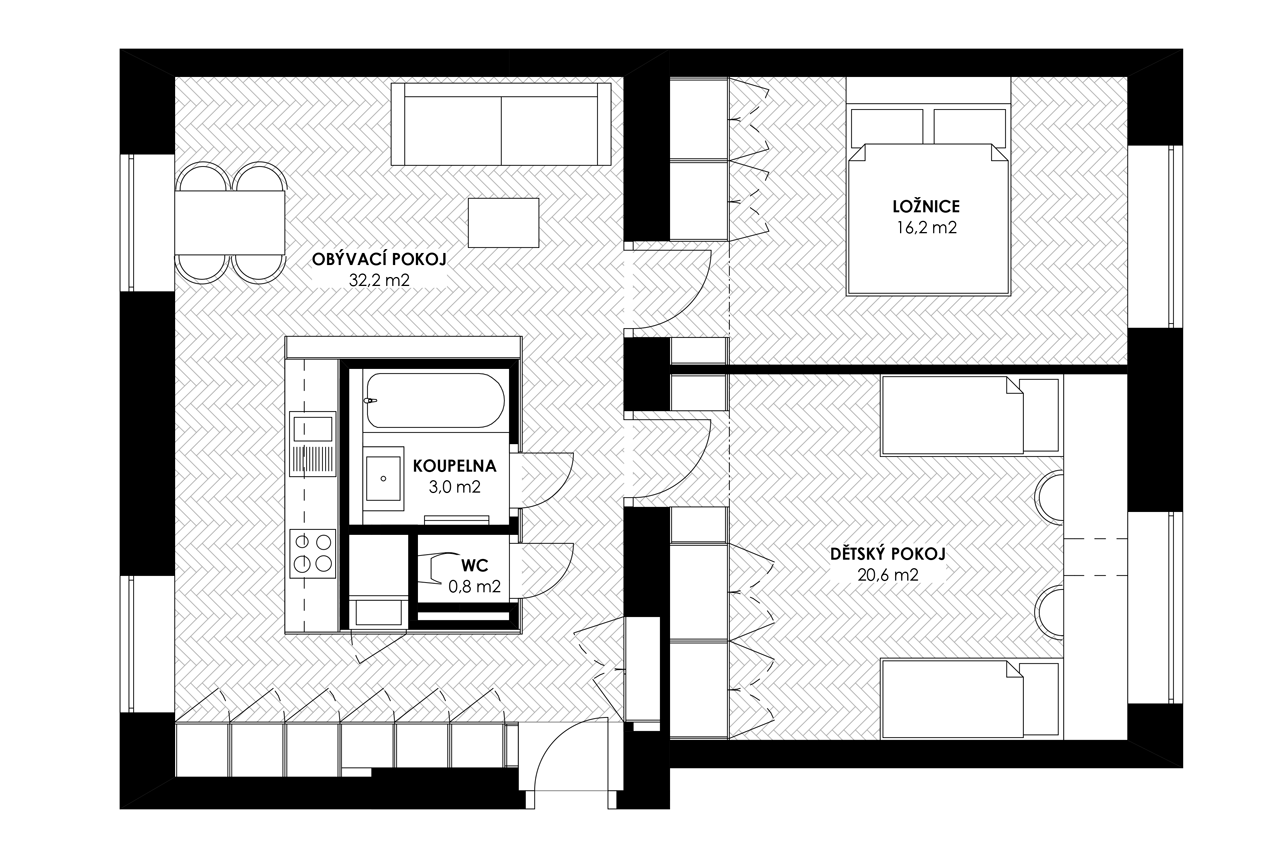
Celková rekonstrukce znamenala vybourání téměř všech původních příček a následně vybudování centrálního bloku kolem jádra. Blok vymezuje vstupní část a plní funkci jak kuchyně, tak i úložné sestavy ze strany obývacího pokoje. Uvnitř bloku je koupelna s přirozeným osvětlením, WC a komora. Blok je obložen březovou překližkou a slouží výborně jako obíhačka pro děti.
Dalším nenápadným úložným prostorem jsou tři vestavěné skříně z bílého lamina s překližkovými nikami. V hlavním obytném prostoru slouží jako šatna a kuchyně, v pokojích pak jako knihovny a šatní skříně.
Z rekonstrukce máme radost, jelikož dokončený interiér působí tak jednoduše a čistě jako na papíru, což není vždycky zcela samozřejmé, protože za vším stojí řada detailů a řešení nerovností starého bytu, se kterými si musel truhlář poradit.
- Autoři: Tereza Nová, Jiří Zábran
- Ateliér: Zábran Nová architekti
- Země: Česká republika
- Město: Plzeň - Bory
- PSČ: 301 00
- Datum projektu: 2015
- Realizace: 2016
- Užitná plocha: 72.80m2
- Materiál: překližka
- Foto ©: Petr Jehlík
Související projekty
Související architekti
Související ateliéry a firmy
Mohlo by vás zajímat


















