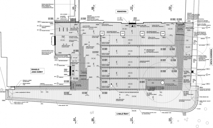
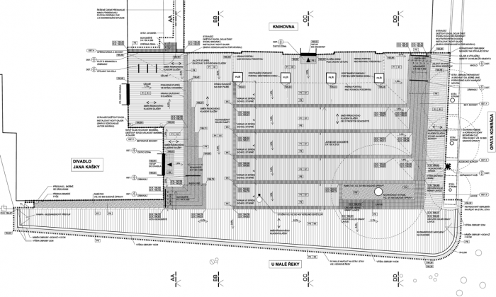
Revitalizace předprostoru Městského domu a Divadla J. Kašky

Charakter místa zásadně poznamenala výstavba silnice II. třídy – ulice K Přehradám, funkční vazby v místě byly poté dále potlačeny vybudováním protipovodňové zdi podél této ulice (rok 2009). Protipovodňová zeď způsobila odtržení města od nábřeží, z důvodu prostorově náročné výstavby byly rovněž odstraněny veškeré dřeviny z ul. U Malé řeky a místo bylo ponecháno jako holý prostor s nekoncepčně a provizorně upravenými povrchy.
Prostor před Městským domem a divadlem J. Kašky je těžištěm společenského a kulturního života této městské části. Oba objekty byly zrekonstruovány po povodních v r. 2002 a nabízejí kulturní zázemí pro širokou veřejnost.
Cílem rekonstrukce je vytvořit prostor pro shromažďování, setkávání a odpočinek. Základním předpokladem je zlepšení přístupnosti místa a zpřehlednění prostoru. Stavební úprava proto sjednocuje prostor mírným jezdeckým schodištěm, otevřeným do všech stran. Plocha je doplněna rampou pro společný bezbariérový vstup do divadla i městského domu, lavicí pro posezení, stojany na kola, novým stožárem veřejného osvětlení a solitérním stromem.
- Autoři: Jan Horký, Pavel Nasadil
- Ateliér: FAM Architekti
- Spolupráce: Jana Hlavová, Petra Čížková
- Země: Česká republika
- Město: Praha 16 - Zbraslav
- Ulice, číslo: U Malé řeky 3
- PSČ: 156 00
- Datum projektu: 2015
- Realizace: 2015
- Užitná plocha: 300.00m2
- Foto ©: Ivan Němec
Související projekty
Související architekti
Související ateliéry a firmy
Mohlo by vás zajímat



















