Rodinný dvojdům v Českém ráji
Zadání rodinného domu v Českém ráji nás očarovalo již při prvním setkání s investory. Jedinečný pozemek u lesa s výhledy na přilehlé skály a lesy měl pouze jedinou překážku; leží totiž v II. zóně odstupňované ochrany přírody a krajiny Chráněné krajinné oblasti, která má pevně stanovené regulativy. V rámci odborného stanoviska správy CHKO Český ráj jsme obdrželi doporučení k architektonickému ztvárnění objektů. Dovolíme si citovat například odstavec o oknech: „Hlavní okna by měla být obdélná, osazovaná na výšku, dělená, s poměrem stran cca 2:3 až 4:5, šířka oken typická pro oblast Českého ráje se pohybuje v rozmezí 0,7 až 1,2 m; velikost oken ve štítové stěně se směrem vzhůru zmenšuje, plocha stěny venkovského domu vždy výrazně přesahuje nad plochou oken; počet oken ve štítové stěně se pohybuje mezi 2 až 4,…“ Stejně tak byly popsány povrchy, střecha, pozice komínu, poměry objemu objektu apod.

Náš návrh stavby vychází z principů místní lidové architektury, kdy je polovina domu kamenná a polovina dřevěná, čímž byl dům jednoznačně rozdělen na hospodářskou a obytnou část. Dalším inspiračním zdrojem byly průjezdné stodoly, které se v návrhu propsaly do velkých prosklených částí. Tyto průhledy vnáší do interiéru jižní světlo a přitom ponechávají jedinečný severní výhled na les a vrcholky Krkonoš.

Vše je zastřešené tradiční sedlovou střechou. Jako krytina je vzhledem k povětrnostním podmínkám v daném území navržen předzvětralý titanzinkový plech. Objem stavby je velmi jednoduchý a není doplněn žádným architektonickým prvkem, který by narušoval přirozený objem venkovského stavení a přetrhával tak kontinuitu s tradiční lidovou architekturou typickou pro dané území.
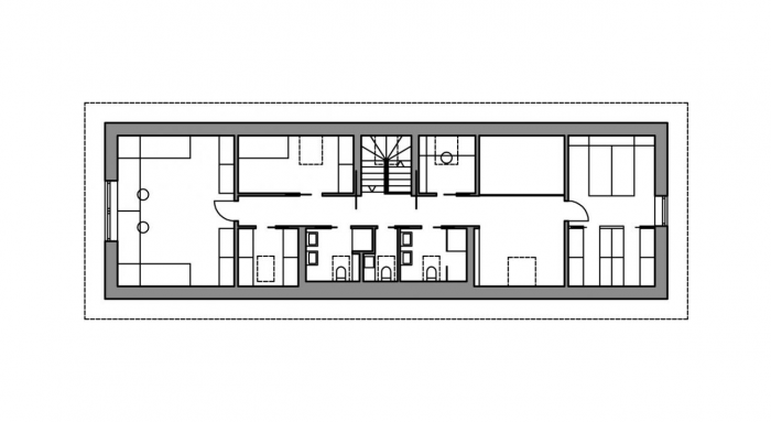
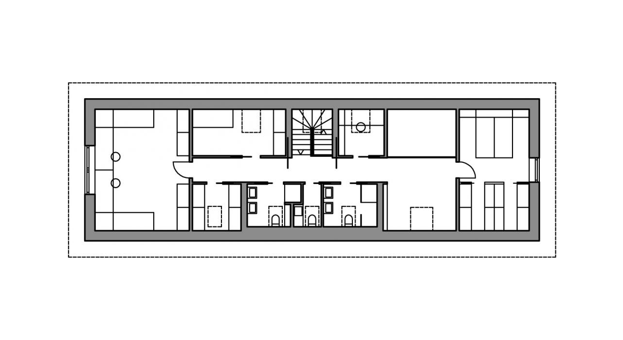
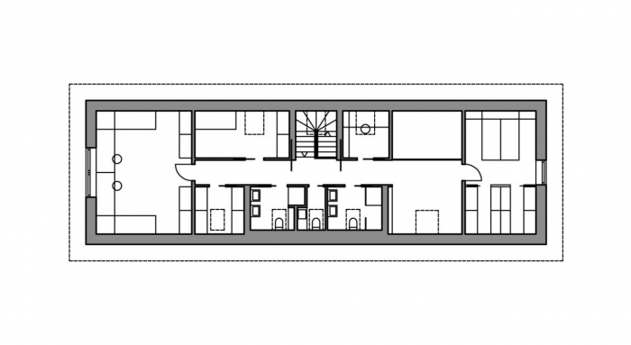
Dispozičně se jedná o přízemní objekt s obytným podkrovím. Dvojdům má půdorysný tvar obdélníku, přičemž vstup je uprostřed delší strany od příjezdové cesty na jižní straně pozemku. Sedlová střecha ve sklonu 45° má hřeben orientovaný rovnoběžně s přístupovou cestou a hlavní podélnou osou domu.
- Ateliér: Stempel Tesař architekti
- Autoři: Ján Stempel, Jan Jakub Tesař
- Země: Česká republika
- Generální dodavatel: Stavební firma Hájek s.r.o.
- Datum projektu: 2010
- Realizace: 2012
- Užitná plocha: 198.00m2
- Zastavěná plocha: 189.00m2
- Plocha pozemku: 2 715.00m2
- Obestavěný prostor: 1200 m3
Mohlo by vás zajímat