Šatny Wikov
 
                                
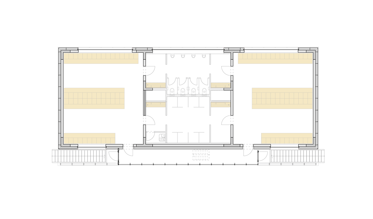
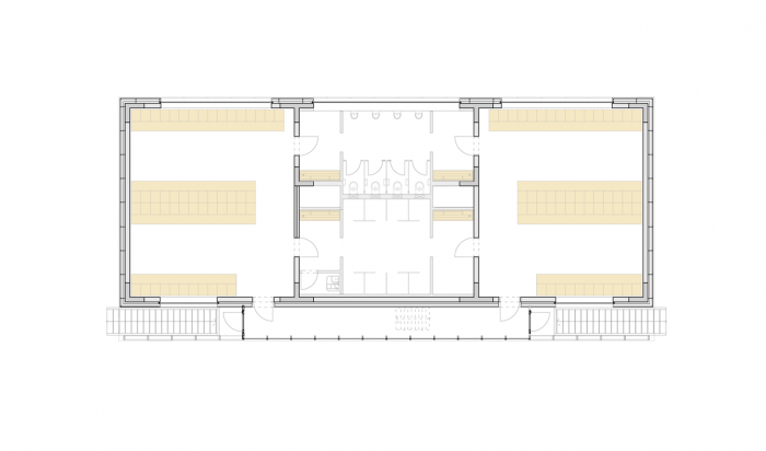
                                Určujícím momentem při návrhu nových šaten byl požadavek na rychlost výstavby v délce šesti měsíců. Architektura návrhu je výslednicí jednoznačnosti provozu, lapidárnosti formy a skladebnosti konstrukce. Vrstevnatost stavby je potom abstrahovanou připomínkou šaten jako místa rozličných garderób.
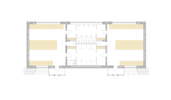
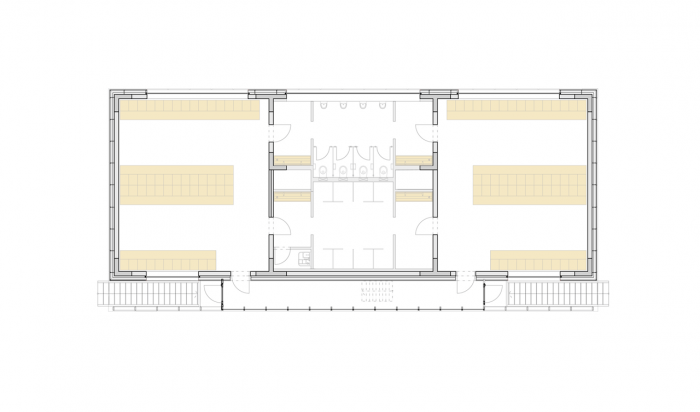
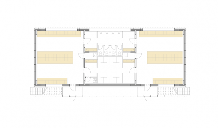
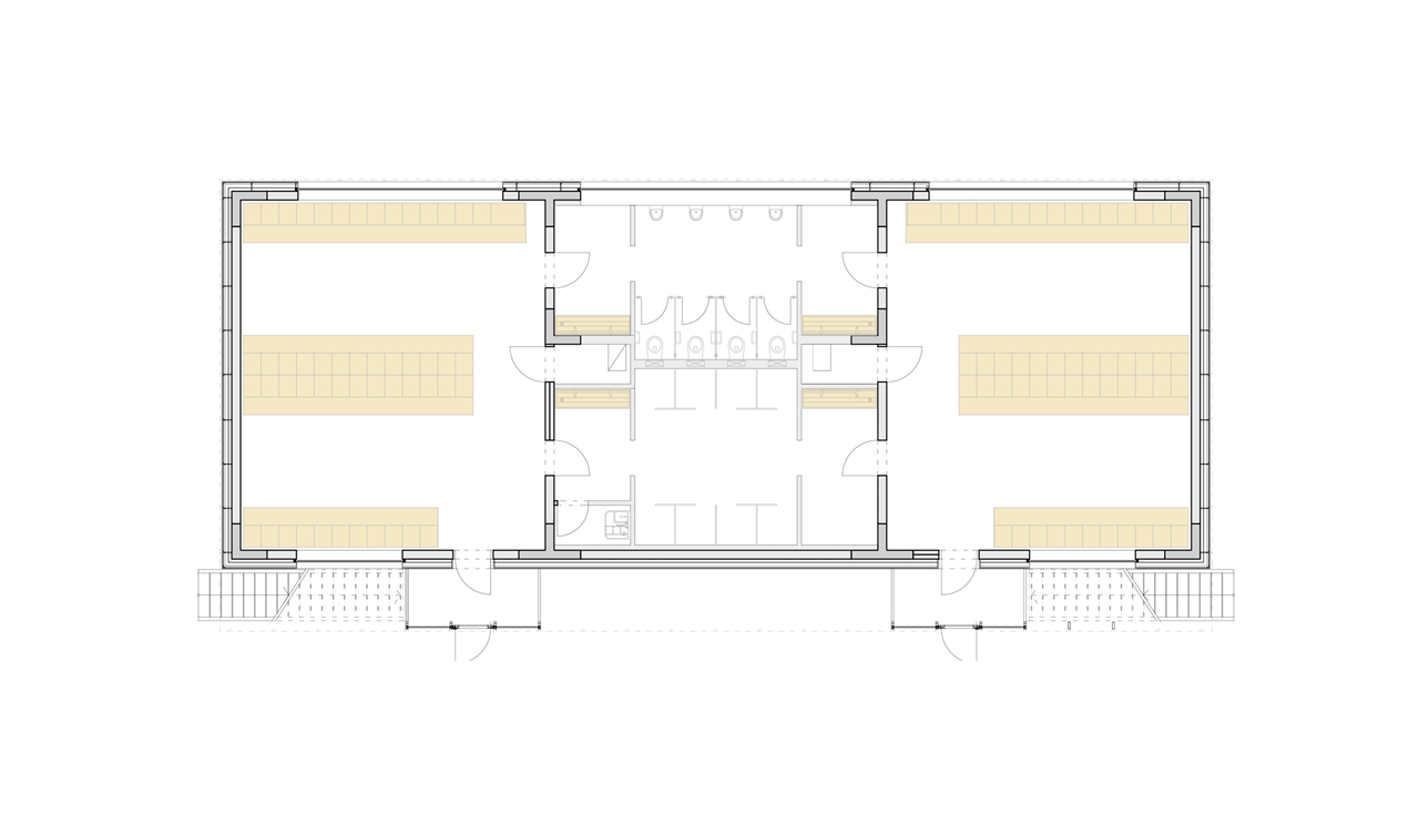
Umístění stavby v nivě Zbečnického potoka si vyžádalo založení na pilotách, následovala stavba montovaného železobetonového skeletu a vyzdívky z neomítaných vibrolisovaných betonových tvárnic. Hygienické buňky uprostřed dispozice jsou z důvodu snadného vedení instalací řešeny z pěnosilikátových příčkovek. Omyvatelné povrchy jsou navrženy z polyuretanových stěrek a desek vysokotlakého laminátu.
Analytická skladebnost jednotlivých vrstev se z interiéru přelévá do exteriéru. Nosná konstrukce je opatřena kašírovanou tepelnou izolací, kterou chrání zavěšená fasáda z pohledových heraklitových desek. Rytmus konstrukce prosklené pavlače v úrovni druhého nadzemního podlaží rozvíjí lehká koruna z pozinkovaného tahokovu, lemující celou atiku domu.
- Autoři: Tomáš Hradečný, Benedikt Markel
- Ateliér: IXA
- Země: Česká republika
- Generální dodavatel: Průmstav Náchod s. r. o.
- Město: Hronov
- Ulice, číslo: Zbečník 356
- PSČ: 549 31
- Datum projektu: 2014
- Realizace: 2015
- Užitná plocha: 680.00m2
- Zastavěná plocha: 460.00m2
- Foto ©: Benedikt Markel
Související projekty
Související architekti
Související ateliéry a firmy
Mohlo by vás zajímat
 
				 
				 
				 
				 
				 
				 
				 
				 
				 
				 
				 
				 
				 
				 
				 
				 
				 
				 
				 
				 
				 
                             
                             
                             
                             
                             
                                 
                             
                             
                             
                             
                             
                             
                             
                             
                             
                             
                             
                             
                             
                             
                     
                     
             
             
            		 
            		 
            		 
            		 
            		 
                                                                                                             
                                                         
                                                         
                                                                                                             
                                                         
                                                         
                    