SOA architekti - Základní škola Amos pro Psáry a Dolní Jirčany

Celkové urbanistické a architektonické řešení
Hlavním cílem urbanistického konceptu areálu nové školy bylo vytvořit v kontextu obce místo s vlastní identitou, které nebude navzdory své velikosti ve významovém ani prostorovém konfliktu se stávající zástavbou a jejími přirozenými centry. Budova školy má vytvořit ukončení urbanistické osy vedoucí k návsi na Hlavní a Pražské ulici, která projde v blízké budoucnosti rozsáhlou revitalizací, a dát jí potenciál živé obecní komunikace s přirozeně fungujícím parterem. Jako protiváha prostoru návsi funguje v areálu školy veřejný prostor v jihovýchodním rohu pozemku zakončený výrazným oknem školní knihovny, který přes parterové prvky rekreační zeleně přechází do vstupního prostranství školy.
Škola je zasazena do mírného svahu, který umožnil pracovat s podlažností rozdílnou vůči veřejnému prostoru a směrem do areálu. Budova je rozčleněná podle funkčního využití na dílčí stavební hmoty, které se měřítkem co nejvíce přibližují stavbám v okolí. Tvář školy vůči obci určují výškově dominantní dvoupodlažní objekty, které obsahují vlastní výukové prostory. K jejich ztvárnění je použita typologie venkovských hospodářských stavení v abstrahované podobě podpořené minimalistickým materiálovým řešením a elementárním členěním fasád. Centrální objekt, který obsahuje společné funkce obou stupňů základní školy a celou budovu provozně i opticky propojuje, je naopak navržen jako čistě technická stavba o jednom nadzemním a jednom podzemním podlaží. Navenek se prezentuje výrazně profilovanou, ale celkově kompaktní fasádou z dřevěných lamel pracující s různými stupni průhlednosti podle potřeb vnitřních prostorů.
Dispoziční a provozní řešení
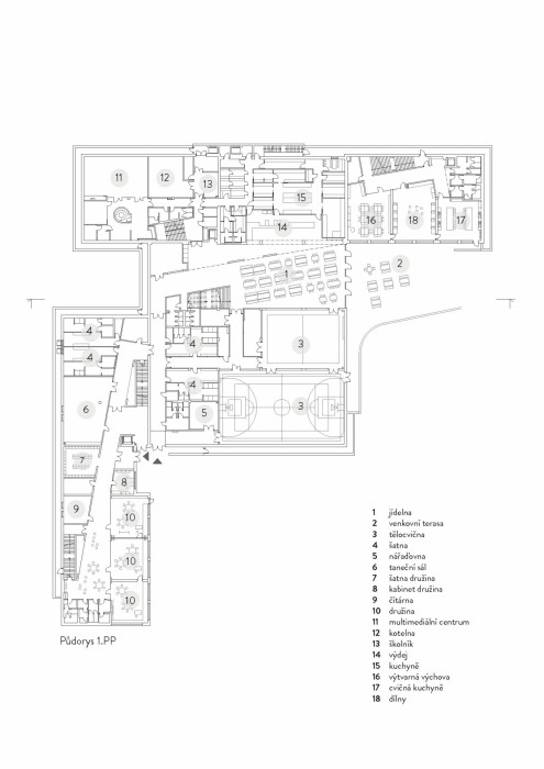
Interiér školní budovy je navržen jako volně plynoucí prostor vytvářející přirozeně ohraničené zóny s rozdílnou mírou intimity podle plánovaného využití, tzv. „learning landscape“. Budova má sloužit i jako zázemí pro mimoškolní aktivy na principu celodenní školy a v neposlední řadě bude plnit i funkci komunitního centra. Důležitá pro celkový charakter interiéru je práce se dřevem. Je použito jako konstrukční materiál nad vstupním vestibulem a jídelnou, na obkladech stěn a nábytkových vestavbách, parapetech i fasádě a dodává škole hřejivou a domácí atmosféru podpořenou orientačním systémem založeném na principech dětské kresby.Provozně je školní budova rozdělena do tří částí. Centrální dvoupodlažní objekt A je z převážné části zapuštěný do terénu a tvoří uzlový bod propojující jednotlivé části budovy i obě úrovně terénu. Obsahuje společné provozy obou stupňů základní školy.
V horní úrovni je umístěn hlavní vstup a lobby, ze které je přímo přístupný druhý stupeň základní školy. Na vstupní halu je napojen i sál pro hudební výuku a školní klub a venkovní atrium pro sportovní a rekreační aktivity žáků převážně prvního stupně. Prostor vstupní haly volně přechází do dvoupodlažní jídelny, která je navržena jako srdce školy. Na vstupní halu je napojená přes centrálně umístěné přímé schodiště. Na jídelnu navazuje rozlehlá venkovní terasa, která je díky svažitosti pozemku umístěná na terénu v úrovni suterénu.
V severozápadní části centrálního objektu je umístěný blok tělocvičen se šatnovým zázemím a nářaďovnami. Úsek tělovýchovy disponuje i přímým venkovním vstupem v úrovni podzemního podlaží, který ho propojuje s venkovními sportovišti a slouží zároveň jako vedlejší vchod pro mimoškolní využití tělocvičen. Tělocvičny jsou uspořádány tak, aby malá tělocvična, dispozičně umístěná mezi jídelnu a velkou tělocvičnu, mohla být pomocí mobilního pódiového systému přebudována na zvýšené jeviště se zázemím pro kulturní akce pořádané v prostoru jídelny. V suterénu je dále kuchyň, technické zázemí a sklady napojené na obslužnou a zásobovací komunikaci podél jihovýchodní fasády školy.
Na centrální objekt A navazují objekty B a C druhého a prvního stupně, členěné vždy na dvě třípodlažní křídla s vlastními vertikálními komunikacemi. Křídla jsou spojená dvoupodlažními komunikačními krčky se střešními terasami, kde jsou umístěné vstupy a šatny.
Dispoziční uspořádání ve výukových částech objektů B a C je založeno na principu dílčích jednotek, tzv. klastrů pro cca 80 žáků, které tvoří přehledné celky vždy dvou až tří kmenovým učeben seskupených kolem společné centrální haly. Díky vizuálnímu propojení učeben s halou tak vzniká jasně ohraničený variabilní prostor pro výuku v mnoha formách s množstvím zákoutí, se kterým se mohou jeho uživatelé v rámci velké školy snadněji identifikovat a přizpůsobit si ho i díky rozsáhlé aplikaci popisovatelných a magnetických stěn.
Druhý stupeň obsahuje celkem tři klastry doplněné o blok speciálních učeben, první stupeň potom čtyři klastry a školní družinu. Klastry v horních podlažích mají vždy přístup na střešní terasy. Každý klastr má svoji barevnou identitu usnadňující orientaci.
Učebny v klastrech prvního stupně mají plochu rozšířenou o tzv. herní koutek. V přízemí jsou navrženy v modulu 8x7m s herním koutkem v podobě samostatné místnosti přiléhající k čelní straně učebny a jsou určeny převážně pro mladší děti. Učebny v patře jsou navrženy v modulu 8x8,5m (hloubka) a plocha herního koutku je plně integrována do plochy učebny. Kvůli zvětšené hloubce dispozice je standardní boční osvětlení doplněno systémem střešních světlíků. Kmenové učebny druhého stupně jsou navrženy v modulu 8,4x7,7m.
V přízemí východního křídla objektu B poblíž hlavního vstupu je umístěn úsek vedení a v přímé vazbě na prostranství před školou i školní knihovna. Pod knihovnou se v suterénu nachází prostor tzv. multimediální laboratoře s nahrávacím studiem, počítačovou učebnou a víceúčelovým sálem. Tento prostor je pomocí samostatného schodiště propojený s knihovnou a společně tak mohou sloužit i veřejnosti. V suterénu západního křídla jsou doplňkové odborné učebny - výtvarná výchova, dílny a cvičná kuchyně.
Školní družina je jako součást prvního stupně umístěná v polosuterénu severního křídla objektu C a je přístupná schodištěm přímo ze vstupní haly. Družina má vlastní vstup, šatnu a výstup na terén v úrovni podzemního podlaží. Vnitřní prostor družiny lze pomocí mobilní stěny rozčlenit tak, že může v době výuky sloužit i jako běžné učebny.
Konstrukční řešení
Nosnou konstrukci budovy tvoří monolitický železobetonový skelet se skrytými průvlaky. Společné prostory centrálního objektu A jsou zastropeny lepenými dřevěnými vazníky, které se pohledově uplatňují v interiéru. Zastřešení objektů se sedlovými střechami je řešeno pomocí ocelových rámů. Výplňové konstrukce obvodových stěn a vnitřní akustické příčky jsou realizovány z vápenopískových bloků. Tepelně-technické parametry a průvzdušnost obvodového pláště odpovídají požadavkům na energeticky pasivní budovu.
TZB
Budova je navržena jako energeticky pasivní. Vytápění objektu je primárně zajištěno kaskádou tepelných čerpadel, napojených do akumulačních nádrží s vnořenými zásobníky TUV. Dalším zdrojem tepla je soustava kondenzačních plynových kotlů, které vykrývají špičkové potřeby a umožňují tak provozovat tepelná čerpadla v optimálním režimu. Předání tepla do místností je zajištěno převážně systémem teplovodního podlahového vytápění doplněným o radiátory v učebnách. Vytápění je řízeno sofistikovaným systémem MaR na základě obsazenosti budovy dle vnitřních a vnějších čidel teploty.
Výměna vzduchu je zajištěna systémem rovnotlakého řízeného větrání s pasivní rekuperací tepla s účinností 77%. Vzduchotechnické jednotky jsou umístěné decentralizovaně na střeše objektu A a v podkrovních prostorech objektů B a C tak, aby byly trasy rozvodů co nejkratší. Výměna vzduchu probíhá s proměnlivou intenzitou na základě hodnot CO2 v učebnách. V přechodovém a letním období je systém využíván k nočnímu předchlazení budovy pomocí intenzivnějšího větrání.
V objektu je instalován systém sběru dešťové vody, která je využívána na splachování toalet.
- Autoři: Ondřej Píhrt, Štefan Šulek, Ondřej Laciga
- Ateliér: SOA architekti
- Spolupráce: Irena Vojtová, Pavel Směták, Tereza Březovská
- Země: Česká republika
- Zodpovědný projektant: Jan Klauz
- Generální dodavatel: PKS stavby a.s.
- Město: Psáry a Dolní Jirčany
- Ulice, číslo: Pražská 1000
- Suma: 420 000 000.00
- Datum projektu: 2014
- Realizace: 2019
- Užitná plocha: 8 300.00m2
- Zastavěná plocha: 3 834.00m2
- Plocha pozemku: 43 000.00m2
Související projekty
Související architekti
Související ateliéry a firmy
Mohlo by vás zajímat







































