SOA architekti - Cherry Tree House

Řadový dům provedený podle stejného vzoru v několika ulicích, pseudomansardové střechy, částečná prefabrikace a materiály raných 90. let. Na druhou stranu požadavek na individualitu a pohodlné městské bydlení se současným standardem.
Původní dům se pokoušel využít terénního rozdílu pozemku. Podlaží v uliční úrovni s malými okny mizelo v terénu výše položené zahrady. Vstupní část domu připomínala spíš hůře osvětlený suterén. Krajovou sekci naštěstí obklopuje malý pozemek s vlastní zahradou se vzrostlými stromy. Špatně přístupná zahrada za domem se ale jen obtížně zapojovala do obytné části v prvním patře vlivem výškové návaznosti na terén. Hlavní obytné pokoje navíc byly orientovány sice za sluncem ale do ulice. Vnitřní dispozice odpovídala dělení domu do samostatných bytů v jednotlivých podlažích se společným vstupem. Pocit z vnitřního prostoru určovala i jeho nízká světlá výška (2,5 m).
Adaptace tedy vyžadovala sjednocení domu do celku pro potřeby jedné rodiny. Středobodem dispozice se stalo schodiště, jehož přesun by vlivem panelových stropů byl téměř vyloučený. Přízemí zůstala servisní funkce. Stává se ale skutečně přízemím a proniká do něj maximum denního světla. Nově prolomené okno do zvětšené vstupní haly umožňuje průhled i při sestupu po protějším schodišti. Na halu navazují místnosti pro domácí práce se šatnou a volně přecházejí do domácího fitness v rozšířené části domu. Fitness přiznává odlišnou konstrukci a zůstává zde odhalený pohledový beton. Přístavba zabíhá hlouběji pod terén a v úrovni zahrady jí kryje pobytová terasa.
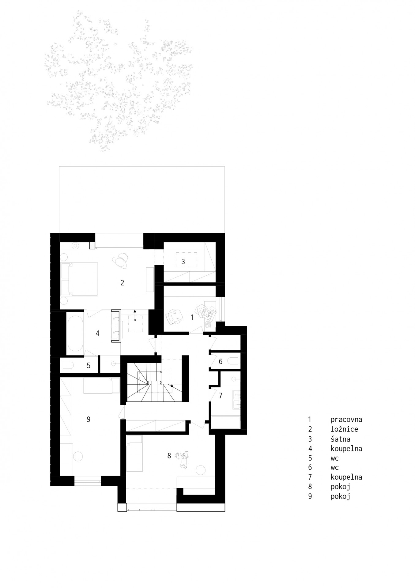
Jednotlivé části obytného prostoru v prvním patře se obtáčí kolem zvýrazněného schodišťového bloku a vytvářejí propojený prostor s příjemnou mírou dělení. Důležitým prvkem se staly průhledy přes celé podlaží a optické zapojení zahrady. Obývací pokoj je spojený se zahradou i fyzicky rozměrným posuvným oknem. Vybourání a výškový posun podlahy v této části domu pomohl přímému napojení na úroveň zahrady. Především se ale vlivem této složité stavební úpravy zvětšila světlá výška místnosti a celé podlaží se díky tomu výškově rozehrálo. Poslední podlaží zůstalo určené pro ložnice, které zpřístupňuje malý ochoz kolem schodiště. Hlavní rodičovskou ložnici odděluje vlastní předsíň se šatnou a koupelnou. Původně plánovaná samostatná pracovna se během stavby proměnila v další dětský pokoj.
Exteriérové členění domu vychází z jednotného sklonu původních „mansard“. Zavěšený fasádní obklad z vláknocementových desek přechází i do rovin střech. Abstrahovanou formu podporují i do líce předsazená dubová okna kombinovaná s bezrámovým zasklením, která opticky navazují na okapovou hranu střechy. Směrem do zahrady obklad střechy integruje výsuvnou markýzu, která dokáže krýt celou plochu terasy.
Malá zahrada nakonec stačila uspokojit všechny požadavky na současné využití. Její kompozice vycházela i z vnitřních pohledů z domu. I přes náročné změny zůstala její dominantou stará vzrostlá třešeň. Pár týdnů po nastěhování celá rodina sklízela. A po necelých dvou letech úprav spokojeně bydlí.
- Autoři: Ondřej Píhrt, Pavel Směták
- Ateliér: SOA architekti
- Země: Česká republika
- Město: Praha 6 - Dědina
- Projekt: 2018 - 2019
- Realizace: 2021
- Zastavěná plocha: 177 m²
- Užitná plocha: 356 m²
- Hrubá podlahová plocha: 440 m²
- Plocha pozemku: 590 m²
- Náklady: 25 mil. Kč
- fotografie: Alex Shoots Buildings
- Statika: Aleš Pražák, www.ssk-sro.cz
- Zahradní architekt: Atelier D.V.A., www.atelierdva.cz
- Stavební firma: Klimava, www.klimava.cz
- Výrobce vestavěný nábytek: Sekula, www.nabytek-sekula.cz
Související projekty
Související architekti
Související ateliéry a firmy
Mohlo by vás zajímat
























