Sportovní areál Blanice, Vodňany

Cílem urbanistického řešení je vytvořit jasně a přehledně navržený víceúčelový areál umožňující intuitivní pohyb návštěvníků. Řešené území na rozhraní města a krajiny je stavebními a krajinářskými zásahy jasně definováno.

Všechny aktivity jsou umístěny dle ideální severojižní orientace sportovišť a návrh tuto stávající strukturu respektuje a vhodně doplňuje. Navržené aktivity (např. dětské hřiště, skatepark, hřiště na petanque, outdoor fitness, koše na basketball) jsou soustředěny v severovýchodní části areálu, prostor severně od příjezdové cesty zůstává volný pro příležitostné akce.

Zásadním limitem architektonického řešení je definovaný rozpočet na rekonstrukci. Hlavním záměrem návrhu je najít řešení, které i v rámci omezených nákladů dokáže objektu dodat novou tvář a současný výraz.

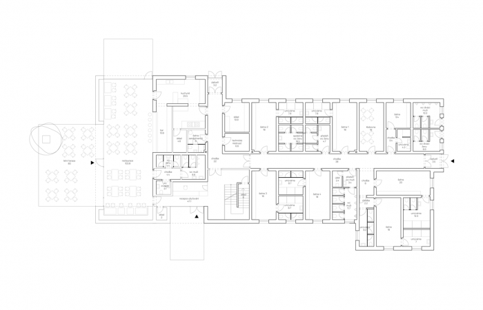
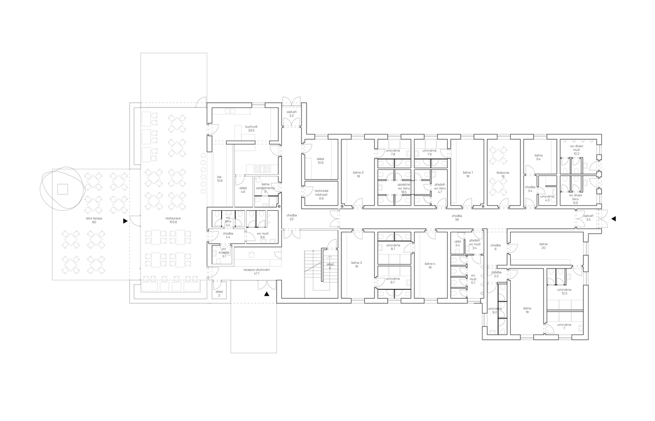
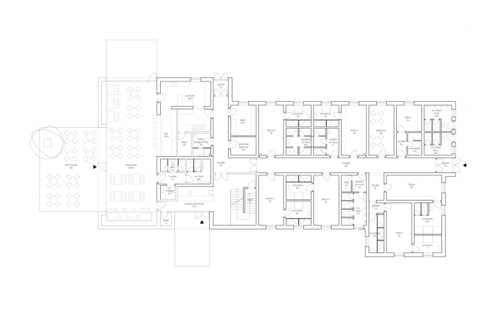
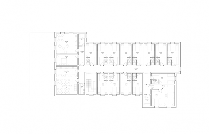
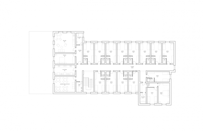
Navržená dispozice respektuje podmínky zadavatele a vytváří tři samostatné provozní celky, které mohou být v případě potřeby propojeny.

Přístupová cesta navádí návštěvníky přímo k terase, odkud vede hlavní vstup do restaurace umístěné v nové přístavbě. Vstup do ubytovací části zůstává na východní fasádě, hned proti němu je navržena recepce (sloužící zároveň jako kancelář správce), odkud se po schodišti pokračuje do dalších prostor. Sportovní klub má vlastní vstup na severní fasádě, vedle něj zůstávají i toalety pro diváky či návštěvníky přilehlých aktivit.

Z finančních důvodů není možné řešit samostatně zateplování fasád a jejich dodatečné obkládaní, neboť to vytváří vícenáklady. Navrženo je proto zateplení objektu fasádními deskami Heratekta C2 031 v tloušťce 100 mm, které dále nepotřebují být a nebudou povrchově upraveny. Rastr desek a jejich povrchová struktura vytváří vizuálně atraktivní celek. Kvůli zvýraznění horizontál obou podlaží je objekt v úrovní stropní a střešní desky obložen zateplovacím systémem z minerální vaty a omítnut.

Generální partner
Hlavní partneři