Stavební úpravy firmy Steel Partner a Multifunkční objekt - Ostrava Poruba

Z rodinného domu reprezentativní sídlo firmy

Na začátku stál rodinný dům s rozsáhlým pozemkem, situovaný na rušné křižovatce v Ostravě-Porubě. Přáním investora bylo upravit jak vnější tak vnitřní vzhled pro účely společnosti. Vnitřní dispozice logicky vycházela z převážně administrativního provozu a vnější fasáda měla dle zadání rovněž odrážet účel budovy a dotvářet tak výraz firmy i navenek.

Nová fasáda jako hlavní prvek přestavby

Stávající stav objektu byl v základní hmotě zachován, avšak zcela nového výrazu budovy dosáhli autoři změnou použitých materiálů a drobnými stavebními úpravy (zvýšení atiky, sjednocení rozměrů oken apod.. Navíc bylo přáním investora rozšířit dům o samostatný objekt s multifunkčním využitím.

V principu se jednalo o výrazové rozčlenění celkové hmoty domu sestávajícího ze dvou částí. Základní kvádrová hmota byla obložena deskami Cembonit od společnosti Cembrit a na přístavbě, která vznikla ve vstupní části, bylo pak jako kontrastní materiál použito modřínové dřevo.

Z východní části přiléhala původně k objektu garáž, kterou autoři nahradili dřevěnou pergolou přístupnou přímo z hlavního objektu.

Vnitřní uspořádání

Dispoziční řešení objektu zůstalo v principu zachováno. Výraznou a pro uživatele domu velmi příjemnou změnou je však propojení společenské místnosti v 1.np s exteriérem, a to díky pergole v místě bývalé garáže.

Nový multifunkční objekt

Koncept nové budovy vychází z požadavku investora zrealizovat stavbu co nejlevněji a zároveň tak, aby byl dům schopen variabilních dispozičních změn z důvodu předpokládaného střídání nájemců. Původní myšlenka autorského týmu z Ateliéru 38 tak směřovala k modulární stavbě z kontejnerů, a to především díky rychlé a nenáročné výstavbě. Základ stavby mělo tvořit 12 kontejnerů o modulu 6 x 3 m. Během přípravy projektu se však ukázalo, že výstavba z kontejnerů by byla nákladnější, takže byl ve výsledku objekt zrealizován jako železobetonový montovaný skelet, který je v případě potřeby možné ještě nastavět o jedno podlaží. Objemové řešení však zůstalo podle původního návrhu a vychází z modulové prostorové sítě 6 x 3 m.

Vláknocementové fasádní desky v kontrastu s modřínovým dřevem

Objekt je záměrně komponován tak, aby byl zachován charakter modulového systému jak v interiéru, tak v exteriéru. Fasáda je pravidelně členěna velkoplošným zasklením, které je opatřené stínící technikou. Podobně jako u hlavního objektu firmy Steel Partner, byla použita kombinace tmavě šedých desek Cembonit na hlavní hmotu objektu a světlé modřínové dřevo pak na vstupní část. Kombinace těchto dvou hlavních materiálů spolu s jednoduchými kvádrovými hmotami se tak stává charakteristickým spojujícím prvkem obou budov.

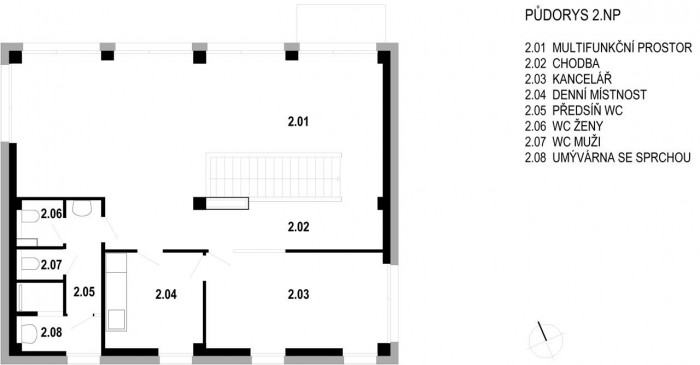
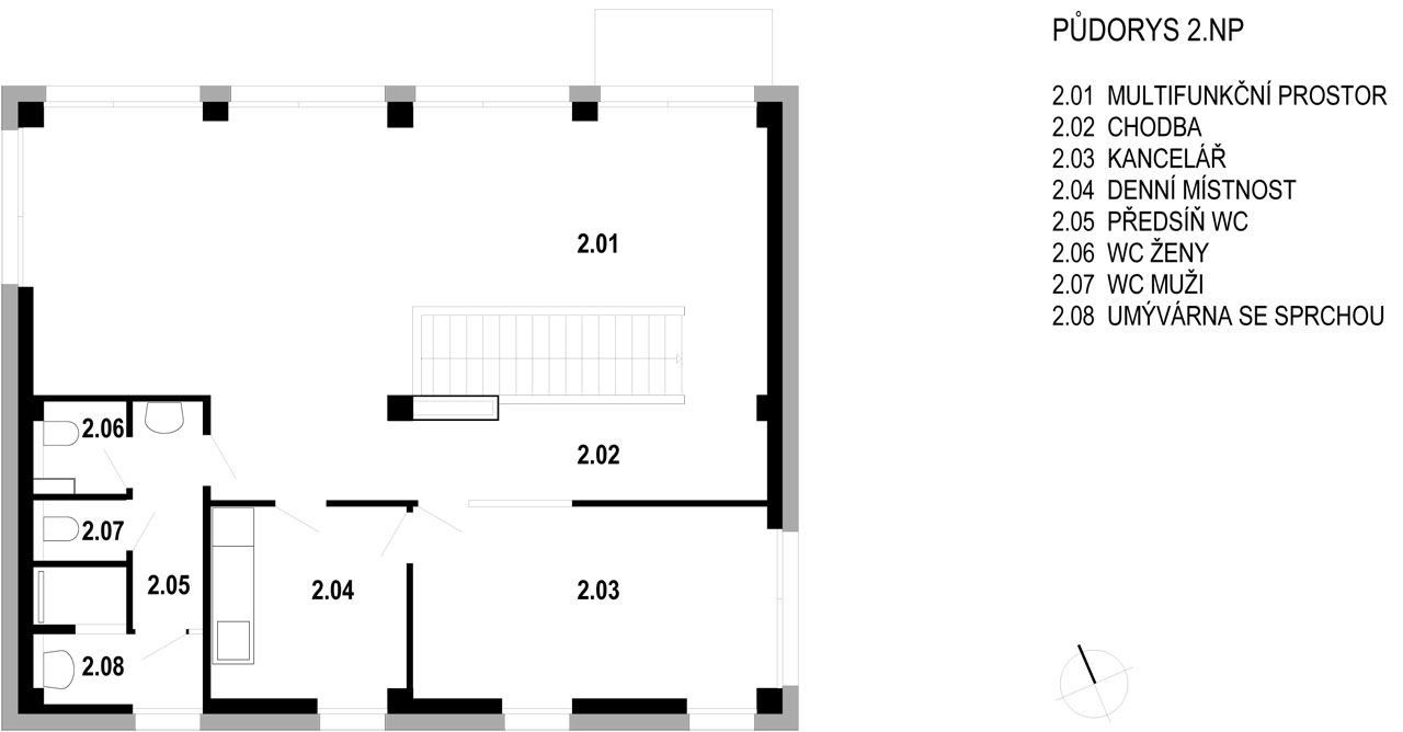
Dispozice nové budovy

Koncepčně určujícím pro výraz interiéru bylo podle návrhu autorů ponechání otevřené dispozice v obou nadzemních podlažích. Z tohoto požadavku vycházel i návrh prosvětlení prostor tak, aby byla umožněna maximální variabilita vnitřního uspořádání. Objekt je v obou podlažích zcela prosvětlen z čelních stran a částečně prosvětlen z boku. V 1.np je jeden základní modul určen pro schodiště a zázemí, v 2.np dva moduly zahrnují chodbu, hygienickou část a část určenou pro denní místnost.

Projekt vznikl s využitím ARCHICADu.

  • Autoři: Jan Zelinka, Pavlína Harazimová
  • Ateliér: Atelier 38
  • Země: Česká republika
  • Realizace: 2015
  • Město: Ostrava - Poruba
  • Ulice, číslo: Vřesinská 242/31
  • PSČ: 708 00
  • Datum projektu: 2011
  • Realizace: 2015
  • Materiál: Fasádní desky - CEMBRIT
  • Stavební část: Ing. Luděk Valík
Generální partner
Hlavní partneři