Studio Raketoplán - Zubaři Nad Mlýnem

Ještě nikdy neseděla
TADY
na lavici žulového útesu v poryvech vlhkého větru
dívka mladá
TADY je!
Nový dům byl založen na dříve zastavěném svažitém pozemku s množstvím pobořených opěrných zdí a relikvií někdejší kvalitní sudetské zástavby. Z původního německého domu zde zbyly pouze rozpadající se základy.
Letitý pozemek v pevném lichoběžníku svírají ulice Mlýnská, Nad Mlýnem a Smetanova. Jedná se o topograficky členitou část města, modelovanou Mšenským potokem a okolním zvlněným terénem, který v menším měřítku napodobuje kopce blízkých Jizerských hor. Zároveň se právě v těchto místech uspořádání města rozpadá z celistvé, blokové zástavby z počátku 20. století ve strukturu solitérních velkých předválečných vil a samostatně stojících vysokých činžovních domů s vlastními dvorky a zahradami.
Pro novostavbu byl tento kus města více než vhodný. Práce s terénem je zde ryze jablonecká - jeden dům, dvě ulice s různými úrovněmi. Svým podstavcovým charakterem nabízí pozemek mimoděk pozici pro novou lokální dominantu. Tato bílá dominanta může ze své nové terasy zářit čerstvostí a stát se pokorným symbolem stavebního rozednění celé čtvrti. Cílem domu je rozeznít jasný a solitérní tón do ulic Mlýnské a Nad Mlýnem, a naopak vstoupit s klidem a nenápadně do ulice Smetanovy. Zde si vstříc svému jedinému přímému sousedovi (č.p.25 – Sbor Církve bratrské) zachovává dvoupodlažní novostavba zdvořilý odstup a respektuje charakter jeho krásné a starobylé fasády.
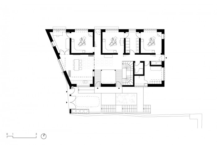
Od severu k městu je dům silný a solidní. Na jihu domácký a skromný. Uvnitř rozmanitý a funkční. Jednoduché provozní schéma dvou osových chodeb v ortogonálním kříži umožňuje přirozenou vnitřní cirkulaci. Zelené atrium s otevřeným schodištěm propojuje obě podlaží do přehledného celku.
Jako by sedlová střecha kliniky pod sebou ukrývala malé město. Ordinace tu jak domy stojí sólo, nebo ve shlucích vedle sebe. V několika z nich jsou ordinace, v jiném laboratoř, v dalším rentgen, denní místnost lékařů nebo kabinet přednosty. Mezi domy vedou pěší ulice, široké tak akorát pro dva. Každá z nich někam míří. Končí vysokým oknem s výhledem na zámeček na severu, výstupem na dřevěnou terasu, vysunutou nad křovinatý betonový břeh nebo nás zavede do skromné slunné zahrádky na jižní straně.
Uprostřed městečka je dvoupodlažní plac, odkud se všechny ulice rozbíhají. Tudy se také do kliniky vchází. Jako náves působí zejména díky množství probíhajících dějů, které tu čekající pacienti mohou od dřevěných vstupních dveří až po trapézový podhled zastřešení pozorovat.
Vstupy do domu jsou díky topografii jeho okolí hned dva. Ten městský z ulice Smetanovy respektuje uliční čáru a vede personál rovnou do 2. NP. Důležitější vstup hlavní z ulice Nad Mlýnem vede přes zahradu do 1. NP a využívají jej především klienti. Záměrná dvojakost dodává domu jistotu. Vstupy určují nasazení úrovní pater a spolu s členitostí terénu i exponovanost jednotlivých fasád.
Hmotou je dům jednoznačně kompaktní. Působí silně směrem k městu a uliční síti. Naopak v jižní části pozemku, směrem ke štítu jediného souseda, se chová velmi jemně a domácky. Vytváří tak vnitřní prostorovou rozmanitost a měnící se atmosféry. Dům nemá ambice na sebe zbytečně upozorňovat, jeho bohatství tkví v důmyslné organizaci pohybu a provozu. Do ulice Nad Mlýnem se dům obrací jednou z nejsložitějších fasád, jejíž ráz určily vnitřní funkce, vstup je však jasně rozeznatelný a tvoří citlivý nástup do palácového recepčního prostoru s atriem a schodištěm.
V 1. NP se kromě vstupní části s čekárnou nachází ordinace zubní chirurgie, na východní straně ordinace hygienistky a stomatologická laboratoř. Domem lze v této úrovni vyjít na jižní stranu pozemku do soukromé zahrady, vizuálně napojené na vnitřní atrium. Západní strana podlaží je vyplněna místnostmi technického charakteru – dílna se skladem nářadí, toalety pro dámy i pány, místnost OPG se serverem, technická místnost a sklad. V půdoryse jsou tyto provozy dostupné racionálně vedenými koridory v osovém ortogonálním kříži a navzájem se dle požadavků pro dobrý život uvnitř nijak neruší.
Hala s atriem je přes schody a roštové pole spojena s prostornou dvoranou 2. NP, kde se opět opakuje křížový systém chodeb. Kromě společných prostor jsou na tomto patře podél severní fasády tři ordinace zubařů, místnost sterilizace, šatna personálu s hygienickým zázemím a úložnými prostory a toaleta pro pacienty. Při západní straně podlaží se nachází denní místnost pro potřeby zaměstnanců a kabinet přednosty kliniky navazující na jeho hlavní ordinaci. Do vnitřní dvorany vede služební vchod ze dvorku za jižní fasádou. Sem bylo rozhodnuto parkovací stání přednosty kliniky přístupné ze Smetanovy ulice a dále boxy na tříděný odpad. Pohyb okolo celého domu zajišťuje se svahem jdoucí schodiště, které ústí do intimnější zahrady na úrovni 1. NP. Jeho zubatá socha umožňuje hmotě nové kliniky od historické fasády sousedního domu o pár kroků poodstoupit.
Použité materiály
Výsledný ráz interiéru kliniky vychází ze samotné hloubky materiálu jednotlivých stavebních i doplňkových částí. Dům by postaven ze zdiva a betonu. Jeho stěny a sloupy zůstaly dál nahé. Když jeho stropy oblékáme do podhledů, jsou ze dřevěných hoblin smíchaných v cementové kaši. Podlaha na recepci byla kamenem, a dál, jen zbroušeným, jím je. Jiný ušlechtilý kámen byl použit pro obklady stěn ordinací a toalet. Příčky byly sestaveny z betonových tvárnic a jejich povrch zde zůstal přítomen. Také schodiště i parapety oken jsou betonové. S pevným bílým interiérem kontrastují ořechové plochy dveří, které střídá komaxit na grafitové oceli. Naváděcí grafika byla zhotovena ze zvláštní plastové hmoty. Svou měkkostí připomíná zatvrdlou zubní pastu.
- Autoři: Pavel Nalezený, Radek Vaňáč
- Ateliér: Studio Raketoplán
- Spolupráce: Samuel Nekola, Tadeáš Pech, Adam Bažant, Michal Švec, Jana Kratochvílová, Zuzana Ficalová, Šimon Marek
- Země: Česká republika
- Město: Jablonec nad Nisou
- Ulice, číslo: Nad Mlýnem, 5322/22
- PSČ: 46601
- Realizace: 2018
- Užitná plocha: 293.00m2
- Zastavěná plocha: 267.00m2
- Plocha pozemku: 745.00m2
- Poznámka: Grafický design - David Březina, Zuzana Kubíková (ExLovers)
Související projekty
Související architekti
Související ateliéry a firmy
Mohlo by vás zajímat






























