Studio RAKETOPLÁN - Pražská kancelář

Nové kanceláře rodinné firmy jsme vestavěli do dvojdomu z konce 40. let minulého století. Navzdory dobám rudého temna je dům nositelem charakteru a stavitelského umu mladého Československa. Mezi nesporné kvality domu patří umírněnost výrazu a jednoduchost kompozice základních hmot. 

Původně byl dům zapuštěn do terénu a stál spolu se svým dvojčetem na pozemku jakoby volně. Posledním velkým zásahem do domu byla rekonstrukce a rozšíření v letech 2000 a 2002. Tato přestavba přidala domu podzemní podnož z jižní a západní strany a pocitově dům od silnice vyvýšila. Tímto krokem se objektu výrazně podtrhla vertikální pocitová linka a je jakousi polovinou dvouvěže. Dobrá orientace domu východ-jih-západ dává všem místnostem v domě možnost užít si přímého slunečního svitu. 

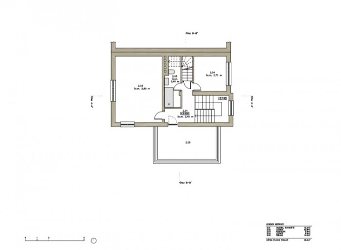
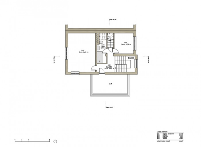
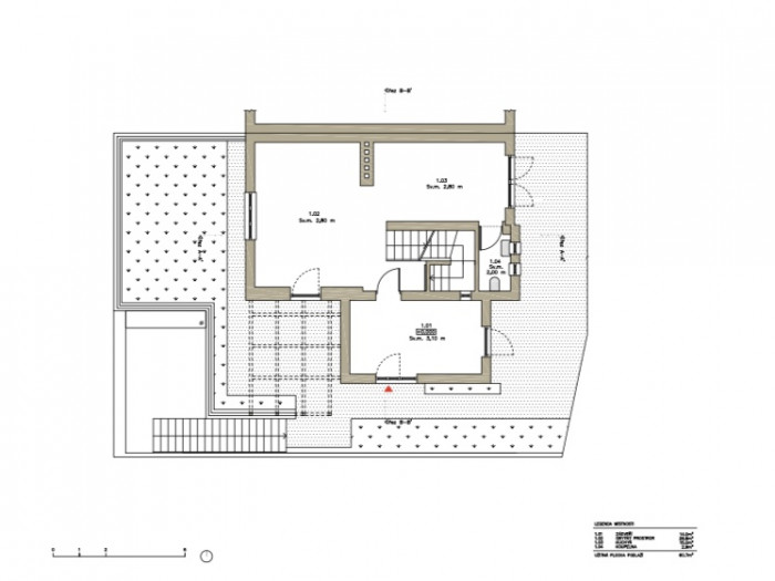
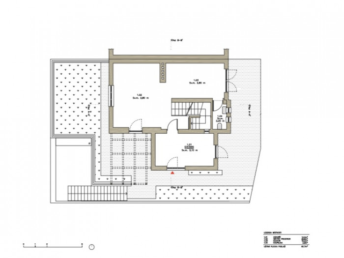
Do objektu se vstupuje z ulice vstupní brankou či vjezdovou bránou pro automobily. Za plotem-zdí se nachází malý dvorek a venkovní schodiště na úroveň 1.NP. Podnož domu tvoří garáž, sklad a kotelna. Těchto prostor se rekonstrukce netýká. Hlavní úsilí k rekonstrukci se váže na prostor jednací místnosti, sociálního zázemí a klubovny s vnitřním schodištěm do 1.NP.

  • Ateliér: Studio Raketoplán
  • Země: Česká republika
  • Realizace: 2018
  • Město: Praha
  • Realizace: 2018
Generální partner
Hlavní partneři