Studio Raketoplán - Rekonstrukce stodoly ve středních Čechách

Dům v malé vísce u Příbrami byl soudě podle letopočtu uvedeném na jeho jižním štítu postaven v roce 1882. V minulosti byl využíván k různým účelům, které na stodole zanechaly výrazné stopy. Elektrifikace obce poznamenala stodolu romantickým vyvěšením elektrického vedení. Přebudování stodoly na prasečák přineslo necitlivé probourání otvoru do jižní štítové stěny. Otvor sloužil pro nahánění prasat na valník. Obvodové zdivo stodoly bylo pravděpodobně i částečně chemicky kontaminováno skladováním průmyslového krmiva.

Poslední nemalý balík stavebních úprav objektu zde provedl jeho předchozí majitel a rekonstrukce se s nimi nyní v dobrém potýká. Majitelé mají v plánu udělat z chalupy základnu pro příjemný venkovský život. Návrh právě „vesnickost“, vlastně i folklór zohledňuje a je těmto atributům dedikován. Neděláme nic jiného, než oprášení starých dobrých časů. Naším záměrem bylo zachovat stavbě její původní ráz a pouze ji učinit funkční ku dnešním standardům širší rodiny z města. Šlo především o to, aby mohl být dům s radostí používán v rámci následujících padesáti až sedmdesáti let. 

Uspořádaní středočeské vesničky je okrouhlicové. Najdeme v ní náves s hasičárnou, od níž se pozemky jednotlivých usedlostí paprskovitě rozbíhají. Pozemek usedlosti klienta patří patrně k nejstarším. Jeho hlavním domem je podlouhlá roubená chalupa z 18. století. Podél tohoto nejstaršího stavení stojí původní zděná stáj. Odstup mezi dvěma paralelními stavbami tvoří jakousi venkovskou ulici, kudy dříve projížděl povoz. Ve směru paprsku dál na východ touto ulicí stojí kamenná stodola. Průjezd na pole hospodářství byl dále umožněn branou před jejím severním štítem.

Stodola má skvělou orientaci, stojí v mírném svahu čelem k jihu. Ze západu ji obléhá starý dvůr s kamenným stolem, sevřený roubenou chalupou a stájí a z východu je připojena na ovocný sad s dalekým výhledem a únášející atmosférou. 

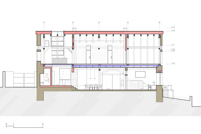
V našem návrhu chceme všem již zde existujícím silným prvkům s citem vyjít vstříc. Krajina okolo stodoly omývá její paty jako české moře, pahorkaté se sluneční pěnou. Vstupní část stodoly má program daný a tak ho pouze probouzíme zásahy na 3 základních místech. V štítové stěně je propojení krajiny s ateliérem pomocí velkého, ležatého okna. Prostor budoucí kuchyně jsme bez váhání spojili s velkou místností veprostřed dispozice a vznikla tím široká vnitřní náruč domu. Kdokoli se zeptá, jak toto vzniklo, řekneme mu o přirozenosti pohybu. Naši předci spali a bydleli v komůrkách, ale pro pohyb, život používali sály, světnice s pecí, kuchyní a plotnou s ohněm, kde si vařili.

Krom nároků na toaletu a malou sprchu jsme celou přízemní část věnovali společnému životu. Ateliér na jižním konci disposice žije podél našich návrhů svůj daný život. Posledním úkolem je napojení na patro, hambalek. Schodiště je nejen komunikace, ale žíla domu. Smíšené schodiště v patrem neděleném prostoru dostalo „nadhled“ nad přízemím. Tím vznikla galerie. Galerie je jako plíce domu. Skrz velký světlík se do místa s lávkou spouští krajina a světlo. Proud blaha natahuje prsty až na krájecí desku kuchyně. Pažitku do polívky

Přes lávku vstoupíme do halového prostoru s vikýřovými okny nasměrovanými do dvora. Dá se zde ustlat ke spaní nenadálým návštěvám nebo trávit odpoledne v kruhu rodiny. Nebylo třeba rozdělovat podkroví do deseti malých komůrek. Namísto toho se pře námi otevírá podkrovní hambálková hala se dvěma ložnicemi, koupelničkou a velkým pokojem s překrásným výhledem na Homoli a hvozdy. Tvarosloví vikýřů bylo odvozeno od tradičních stodolových vhozů na seno. Velké ateliérové okno nad galerií následuje střih české tradiční moderny.

Obecně se na stavbách přikláníme k použití klasických autentických materiálů. Také přestavba tohoto domu je v tomto duchu vedena. Stavebními průzkumy byla zjištěna skladba zdí, podlah, jednotlivých elementů krovu a napojení stavby na okolí.

  • Ateliér: Studio Raketoplán
  • Země: Česká republika
  • Realizace: 2016
  • Užitná plocha: 300.00m<sup>2</sup>
  • Zastavěná plocha: 145.00m<sup>2</sup>
  • Plocha pozemku: 2 140.00m<sup>2</sup>
Generální partner
Hlavní partneři