treea - Rekonstrukce učebny na školní kapli s knihovnou, Rajec

Prostor kaple se začal formovat už při dlouhých diskuzích architekta, výtvarníka a klienta. Správce farnosti v Rajci, dal zasvětit kapli Duchu Svatému. Právě díky tomu se zrodily myšlenky o ztvárnění prostoru v tendencích jednoduchosti, přívětivosti, „tepla“ či světelných zážitků. Abstrakce zasvěcení se přenesla i do světelného spektra barev vstupních prostor v kontrastu s čistě prosvětleným prostorem knihovny a kaple. Přírodní materiály blízké místní řezbářské tradici, kombinace dřeva a skla, abstraktní zobrazení perforací vstupní stěny a jednoduché až triviální ortogonální formování prvků interiérového designu vytvářejí v prostoru hledaný pokoj a transcendentální rozměr rozjímání. Otevírají okamžik přemýšlení nad tenkou hranicí mezi pozemským a nadpozemským, mezi niterným a vnějším, mezi skutečností a příběhem knihy (vložená funkce knihovny).
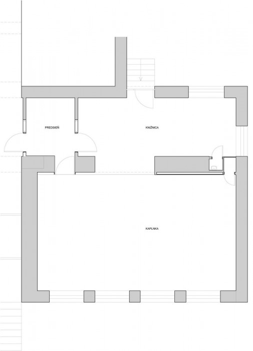
Část přízemí školy – učebna s příslušenstvím – se po oddělení od školního prostoru dostala pod správu farnosti Rajec. Kapli tak mají možnost kromě školy příležitostně využívat i ostatní obyvatelé Rajce. V prostoru se asanovaly příčky, podlahy a výplně otvorů. Metodou řezání pod vodou se vyřezaly v nosném zdivu další otvory mezi zádveřím, knihovnou a kaplí. Asanoval se také původní vstup z exteriéru. Do připravených otvorů byly vsazeny dveře s dřevěným obkladem a skleněná stěna. Také byla položena nová dubová podlaha. Umělecká designérka vypracovala návrh mobiliáře, který filozoficky propojila s konceptem stvořitele. Vytvořila „kostky“ na sezení, oltář i police na knihy.
Mohlo by vás zajímat

















