Největší česká dřevostavba před dokončením. Navrhlo ji studio Perspektiv a poznatky bude sdílet

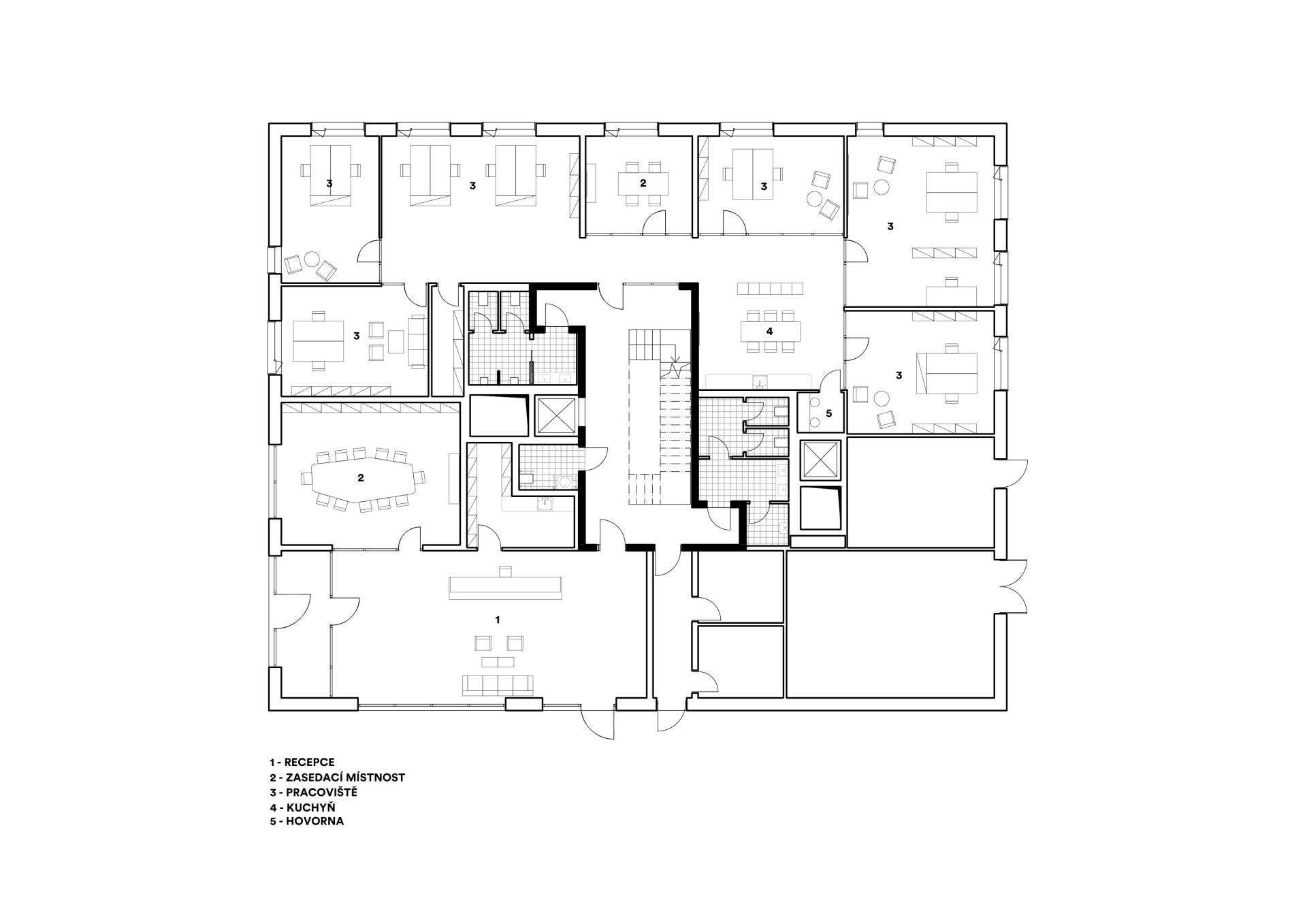
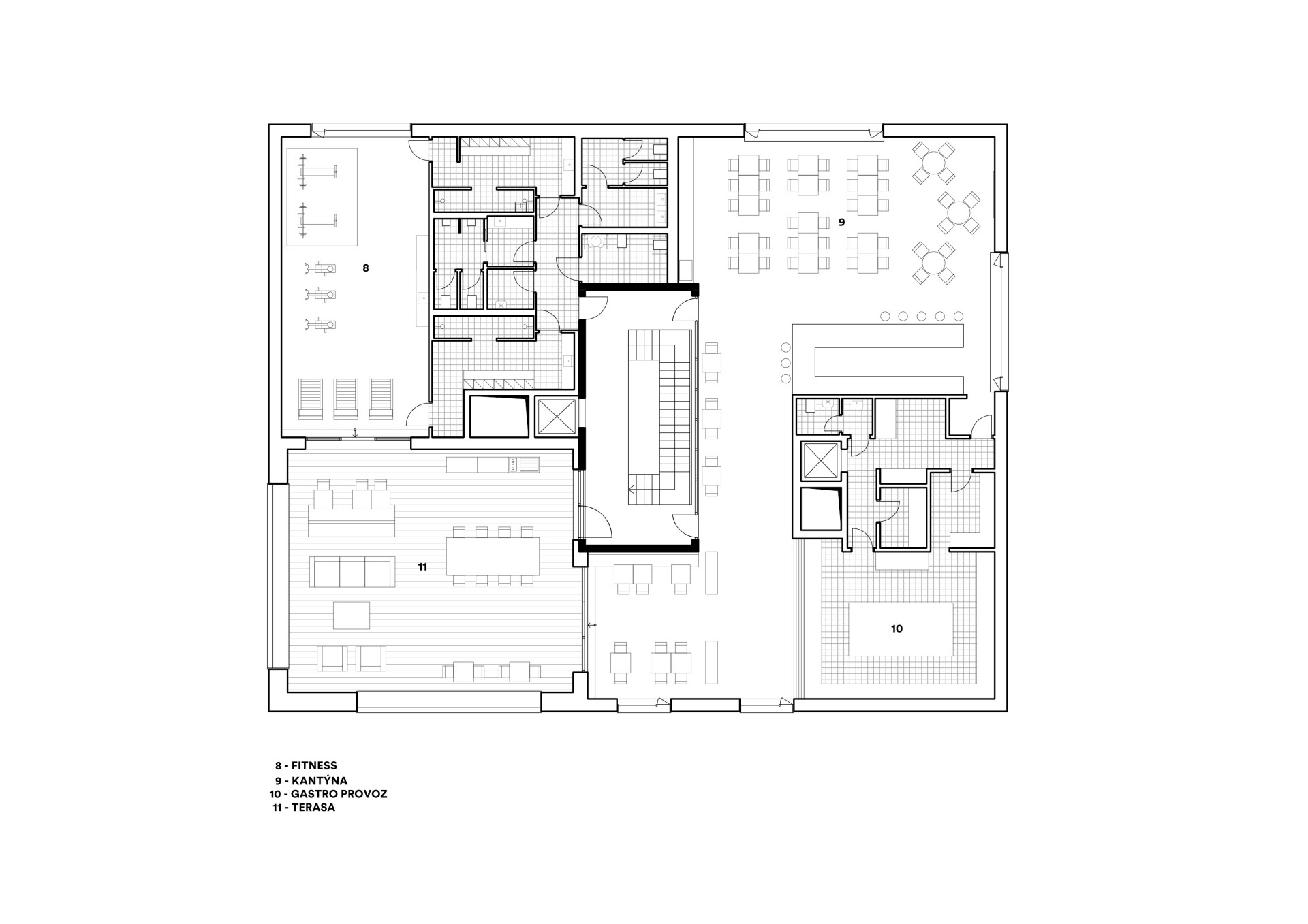
V České republice se nejčastěji jako dřevostavby realizují rodinné domy či nízkopodlažní budovy. V Plané u Českých Budějovic se však blíží ke svému dokončení čtyřpodlažní dřevostavba BudexHUB. Autorem je studio Perspektiv, které dům koncipovalo jako pasivní dřevostavbu, jež výškou dosahuje povoleného limitu. Zařadí se tak k nejvyšším v Česku. Studio plánuje získané poznatky publikovat na nové platformě Perspektiv Research.
Studio Perspektiv , 7. 8. 2023
„Pro oblast, ve které klient působí, nám přišlo vhodné využít jako konstrukční materiál dřevo. Klientovi se představa líbila, měl však jisté pochybnosti. Vedli jsme proto diskuse a navštívili tuzemské realizace, až nakonec padlo jednoznačné rozhodnutí a my se mohli pustit do projekce,“ vysvětluje architekt Ján Antal.
Více k tématu
Studio areál navrhlo tak, aby v něm klient mohl uplatnit svůj zájem o vývoj technologií a získávání i uchovávání čisté energie. V souladu s tím bude provoz objektu čerpat z obnovitelných zdrojů. Kromě kultivace okolí se komplex také částečně otevře veřejnosti a poslouží regionu, například řidičům elektromobilů, kteří si zde budou moci dobít své stroje.
Konstrukční řešení domu se skládá z betonového jádra se schodištěm, které tvoří únikovou cestu, a hygienického zázemí. Okolo něj je pak vystavěna dřevěná nosná konstrukce ze systému NOVATOP a CLT panelů pro nepohledové části. Stavba si vyžádala necelých 900 m³ materiálu systému NOVATOP a CLT. Architekti budovu koncipovali jako nízkoenergetický pasivní dům. Standardem jsou proto okna s izolačními trojskly, rekuperace nebo vytápění pomocí tepelných čerpadel. Objekt získal štítek A jako mimořádně úsporná budova v průkazu energetické náročnosti budovy.

Stavme více ze dřeva
V České republice aktuálně platí norma s maximální požární výškou stavby 12 metrů. I přesto se však takových budov staví velice málo. Brání tomu nejrůznější faktory – od nedůvěry klienta přes posudky úředníků až po velmi striktní požární předpisy. „Nemusíme hned stavět dřevěné mrakodrapy. Měli bychom se ale snažit o větší osvětu o možnostech výstavby vícepodlažních dřevostaveb, která nakonec není tak komplikovaná,“ dodává Ján Antal o svých zkušenostech.
Výhod, které se s dřevostavbami pojí, je hned několik. Od udržitelnosti (v každém m³ nezpracovaného dřeva je uložena jedna tuna CO₂, což se rovná cca 9 000 km jízdy autem) přes rychlost výstavby (koncem března 2023 se vztyčila první nosná konstrukce NOVATOP a koncem června se počítá s dokončením posledního čtvrtého patra) – až po bezpečnost (díky vypočitatelné době hoření a zlepšení celkového zdraví, jelikož dřevěná konstrukce vystavuje obyvatele podstatně menšímu množství toxinů než běžné stavební materiály domů).
V rámci enviromentálních dopadů se není třeba obávat hrozby vytěžení lesů. V Evropě se obnovuje více lesů, než kolik se jich vykácí. V současnosti se v českých lesích nachází dvojnásobná zásoba dřeva než před 100 lety.

Nová platforma Perspektiv Research
Studio Perspektiv se po vzoru renomovaných zahraničních studií rozhodlo založit novou platformu Perspektiv Research. Princip shrnul partner studia, Ján Antal: „Nová platforma Perspektiv Research se zaměřuje na výzkum a popularizaci témat, která aktuálně hýbou světem architektury a stavebnictví. Chceme informovat odbornou veřejnost a architekty o možnostech výstavby vícepodlažních dřevostaveb.“
Architekti na projektu nepracují sami, konzultantem Perspektiv Research je například architekt Martin Sobota z holandského studia CITYFÖRSTER, spolupracují také s odborníky z Univerzitního centra energeticky efektivních budov na ČVUT nebo Výzkumným a vývojovým ústavem dřevařským. Získané informace budou publikovat na webu a prostřednictvím odborných přednášek. Do budoucna se plánují zaměřit na další témata, například energetiku nebo modrozelenou infrastrukturu.