Sídlo firmy jako chrám ze dřeva. Mjölk architekti dokončili nejvyšší dřevostavbu v Česku
V odlehlém městečku na Valašsku vyrostla aktuálně nejvyšší dřevostavba republiky. Jako nové firemní sídlo místní lesnicko-dřevařské firmy Kloboucká lesní ho s velkým důrazem na udržitelnost navrhli architekti ze studia Mjölk.
Matěj Beránek , 20. 2. 2023
„Představte si svět, kde materiály na stavbu vašeho domu necestují přes půl světa. Kde znáte les, kde se pokácely stromy, ze kterých máte postavený dům.“ Tak představuje svou nejnovější realizaci známé studio Mjölk. Architekti sídlící v Liberci se o stavění ze dřeva zajímají už od založení svého studia v roce 2008, zatím však měli na kontě jen dřevostavby menšího měřítka (rozhledny Vokurka, Na stráži nebo soukromou knihovnu v zahradě). Své zkušenosti ovšem dostali příležitost naplno uplatnit díky projektu pro firmu Kloboucká lesní, pro kterou nedávno dokončili vůbec nejvyšší dřevostavbu u nás.
Spolupráci Mjölkáčů, jak se architektům přezdívá, s úspěšnou dřevařsko-lesnickou firmou z Valašska odstartovala návrhem expozice Dělat les, která prezentovala jednotlivé fáze lesního hospodářství na fotografiích od BoysPlayNice. Nedlouho poté pověřil majitel a zakladatel Kloboucké lesní Vojtěch Dorňák architekty vypracováním projektu jejich nové administrativní budovy na Zlínsku. Prý chtěl dát příležitost mladým architektům.
Více k tématu
Firma s třímiliardovým obratem sídlí v pěti a půl tisícovém městečku Brumov-Bylnice co by kamenem dohodil od slovenských hranic. A právě tady, pouhých sto metrů od linky, kde probíhá zpracování dřeva, měla nová budova vyrůst. O tom, že bude ze dřeva, nebylo třeba dlouze diskutovat.
„Společnost Kloboucká lesní je firmou, která vytrvale prošlapává cestu k udržitelnému hospodaření s lesem a krajinou. Inspiruje se odkazem našich předků a zároveň zkouší stále nové technologie i možnosti. V oboru, se kterým obvykle není spojována inovativnost a odvaha, se firma profiluje jako pokroková a kreativní. Sídlo společnosti má tyto ideje reprezentovat,“ říkají architekti.
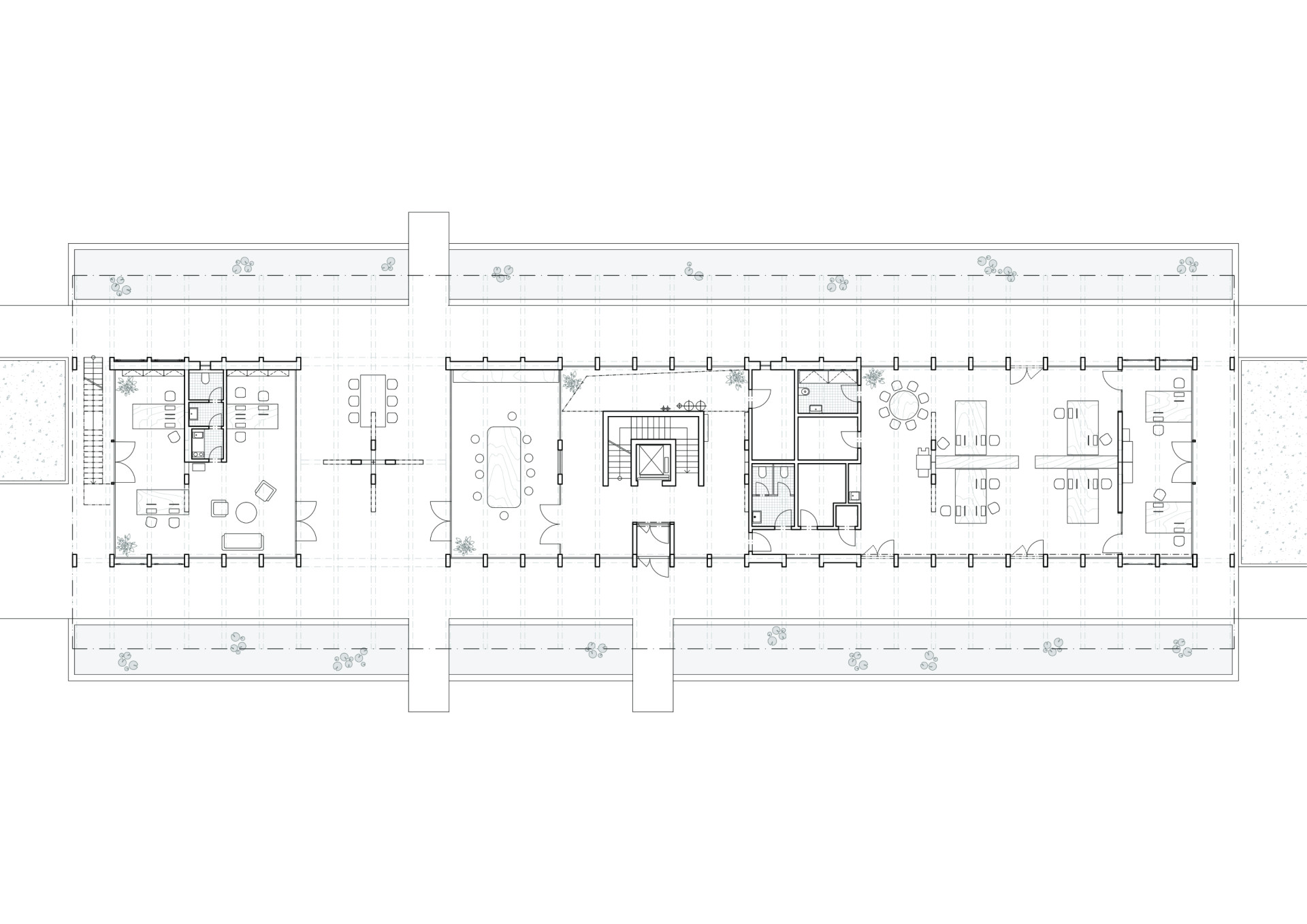
Pro rámovou nosnou konstrukci architekti využili vlajkový produkt firmy, lepené dřevěné nosníky BSH. Těžký dřevěný skelet pak posiluje ještě betonové jádro a ocelové ztužení. Značnou výhodou této modulární konstrukce je variabilita a možnost snadného přestavění vnitřních prostorů v případě potřeby.

Projekt už od okamžiku představení návrhu přitahoval velkou pozornost – a to nejen díky dřevěné konstrukci, ale i svou výraznou formou. Studio Mjölk vsadilo na archetypální tvarosloví domu s obdélníkovým půdorysem a sedlovou střechou, zvolilo pro ně však neobvyklé proporce, díky kterým se budova stává nepřehlédnutelnou dominantou svého okolí. Třípodlažní stavba měří na délku šedesát metrů a hřeben střechy se tyčí do výšky osmnácti metrů. Spodní dvě patra slouží administrativním prostorům, podkrovní prostory pak zůstaly otevřené a záměrně „nevyužité“. Vedle firemních akcí by tady měly probíhat také programy určené veřejnosti, například letní kino. Strmá střecha, pokryta z jižní strany solárními panely pokrývajícími spotřebu celé budovy a z opačné strany průhlednou krytinou, propůjčuje sídlu nezaměnitelnou siluetu.
Zásadním kritériem projektu bylo kritérium udržitelnosti ovlivňující řešení stavby od zvolené konstrukce po nakládání s energiemi. S tím souvisí také důraz na „lokálnost“ – použité dřevo pochází v drtivé míře z okolních lesů (uplatnění tu našel zejména beskydský smrk), a bylo navíc zpracováno hned na sousední lince. Protože výstavbu nezajišťoval jeden generální dodavatel, podílely se na ní také především lokální firmy a řemeslníci – jako v případě Valašské značky JANOŠÍK sídlící pouhých deset kilometrů odtud, která pro stavbu dodávala bezrámová okna zhotovená na míru tak, aby působila, jako by byla osazena přímo do dřevěné konstrukce, a tím podtrhla její vyznění. Přízemí domu je díky rozměrným oknům po celém svém obvodu maximálně prosklené, což na jednu stranu dodává stavbě na křehkosti (rámy otvíravých částí navíc materiálově odpovídají konstrukci) a současně umožňuje pronikání odrazů slunce z vodní hladiny do vnitřních prostorů. Tyto bazénky slouží pro zadržování dešťové vody svedené ze střechy pro její zpětné využití v areálu a ochlazování stavby v letních měsících.

Zatímco po Evropě můžeme pozorovat boom dřevostaveb dosahujících s přehledem dvaceti pater (zmiňme například kulturní centrum Sara v Norsku), u nás jsou moderní dřevěné stavby teprve v plenkách. „V České republice vyroste za rok dva tisíce dřevostaveb, což odpovídá zhruba půlprocentnímu podílu na celkové produkci dřeva v ČR. Naší snahou je, abychom toto mizivé množství znásobili, abychom dokázali chytře využít potenciálu, který se nám sám nabízí, a dokázali stavět domy, které nebudou ekologické jen z hlediska úspory na vytápění. Chceme se na proces výstavby ze dřeva podívat z větší dálky, pochopit principy a spojitosti, a pod touto novou optikou ho znovu složit dohromady,“ prohlašují odhodlaně architekti ze studia Mjölk.
- Ateliér: Mjölk architekti
- Země: Česká republika
- Město: Brumov-Bylnice
- Projekt: 2019
- Realizace: 2022
- Investor: Kloboucká lesní s.r.o.
- Zastavěná plocha: 475,7 m²
- Užitná plocha: 1799 m²
- Plocha pozemku: 9118 m²
- Rozměry stavby: 56 m x 18 m